EasyManua.ls Logo

Hettich UNIVERSAL 32 - Connecting diagram frequency converter (FC)

Hettich UNIVERSAL 32
49 pages
Print Icon
To Next Page IconTo Next Page
To Next Page IconTo Next Page
To Previous Page IconTo Previous Page
To Previous Page IconTo Previous Page
Loading...
46/49
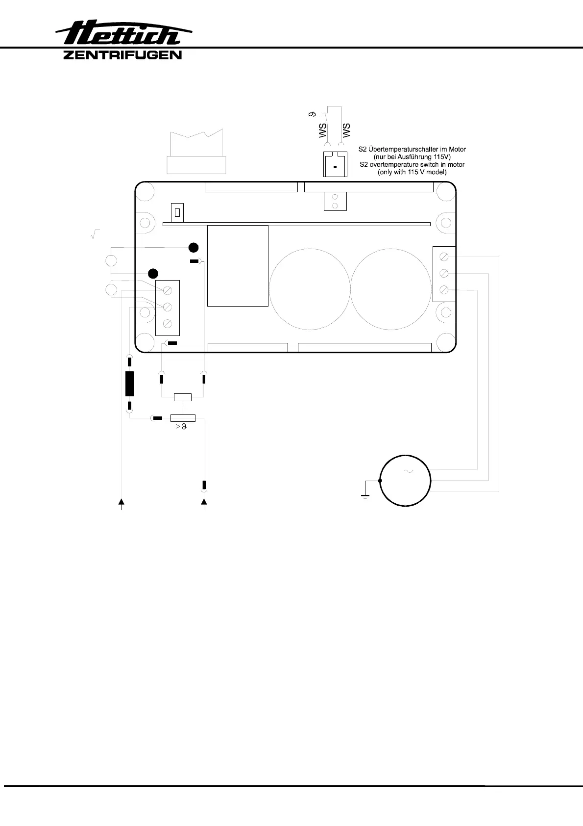
13.8. Connecting diagram frequency converter (FC)
W2
V2
U2
S101
Bremswiderstand
brake resistor
S501
S2
P10
+
+
-
P1
-
S102
U
U
DC
YE
RD
BK
N
U1
PE
U
U
AC
A2 Frequenzumrichter/
frequency converter
M1
3
Motor / motor
R1
Übertemperatursicherung für R1
overtemperature fuse for R1
F3
vom Funkentstörfilter Z1/4
from radio interference
suppression filter Z1/
4
vom Funkentstörfilter Z1/3
from radio interference
suppression filter Z1/
3
U = Netzspannung /
mains voltage
AC
U = U x 2
DC AC
zur Versorgungsplatine A1 / X9
to supply board A1 / X9
S501
1
2
S2
>
12
Netzdrossel L1
(nur bei 230 V Ausführung,
)
mains choke coil L1
(only with 230 V model,
from serial no. XXXX-02-00)
ab Werk Nr. XXXX-02-00
L1
Bremswiderstand 230 V Ausführung: 330
Brake resistor 115 V Version: 82
Motorwiderstand (kalter Motor, zwischen je 2 Leitungen)
Motor resistance value (cold motor, between 2 wires)
230 V Ausführung: 6,2
115 V Version:

Table of Contents

Related product manuals