EasyManua.ls Logo

Hitachi J300 Series

Hitachi J300 Series
145 pages
To Next Page IconTo Next Page
To Next Page IconTo Next Page
To Previous Page IconTo Previous Page
To Previous Page IconTo Previous Page
Loading...
6-3
6.2 Test Run
CAUTION
Check the following before and during the test run.
Otherwise, there is a danger of machine breakage.
Was the direction of the motor correct?
Was the inverter tripped during acceleration or deceleration?
Were the SPEED (rpm) and frequency meter correct?
Were there any abnormal motor vibrations or noise?
When overcurrent tripping or overvoltage tripping occurs during the test run, increase
the acceleration time or deceleration time.
Maximum frequency: 60 Hz
Forward operation
Factory settings
*: For sink type wiring.
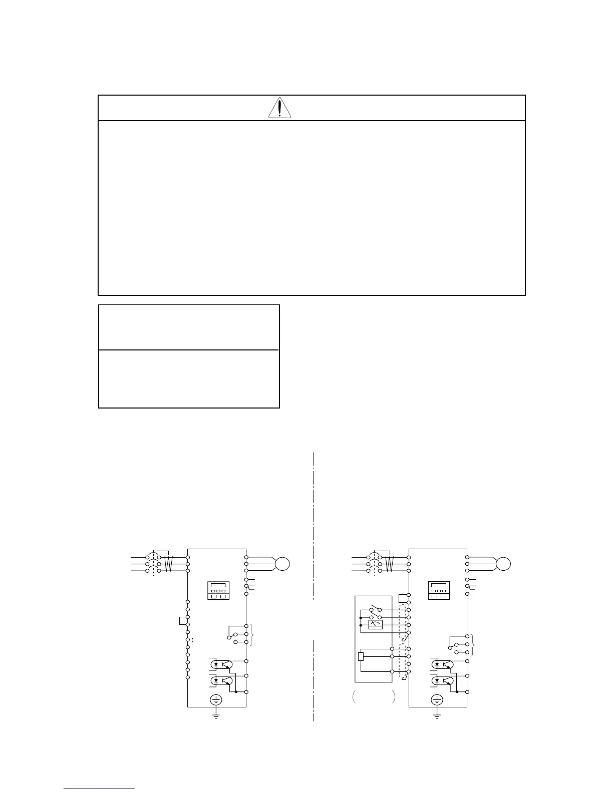
An example of a general connection diagram is shown below.
Operating with digital operator:
When setting frequency, run and stop
with digital operator.
(The same way as remote operator
(DOP) or copy with (DRW).)
Running from external command:
When setting frequency, run and stop
from external command (FW,RV Terminal.)
The following shows run from
the operation box (OPE-4MJ2,OPE-8MJ2)
(T1)U
(T2)V
(T3)W
RB
(+)
P
FW
CM1
PLC
P24
8
1
H
O
OI
L
Inverter
Ground
Digital
operator
AL
0
AL1
AL
2
11
12
Fault alarm signal
(Normal:
AL0-AL1: ON
Abnormal:
Power off:
AL0-AL1: OFF)
Inverter
Dynamic braking
resistor
Daynamic
braking unit
FW
8
FM
CM1
Operator
OPE-4MJ2
OPE-8MJ2
Frequency meter
Reverse
run/stop
Forward
run/stop
Frequency
setter
Ground
AL
0
AL1
AL
2
Motor
Fault alarm
signal
H
O
OI
L
H
O
L
ELB
L1
L2
L3
R(L1)
S(L2)
T(L3)
ELB
Three
phase
power
supply
L1
L2
L3
Three
phase
power
supply
CM2
(-)
N
PLC
P24
RB
11
12
Dynamic braking
resistor
Daynamic
braking unit
CM2
G
(PE)
(T1)U
(T2)V
(T3)W
(+)
P
R(L1)
S(L2)
T(L3)
(-)
N
G
(PE)
Digital
operator
*
*
CTi Automation - Phone: 800.894.0412 - Fax: 208.368.0415 - Web: www.ctiautomation.net - Email: info@ctiautomation.net

Table of Contents

Other manuals for Hitachi J300 Series

Related product manuals