EasyManua.ls Logo

HP ProLiant DL380 G7 - BBWC Battery Cabling; FBWC Capacitor Pack Cabling

HP ProLiant DL380 G7
111 pages
To Next Page IconTo Next Page
To Next Page IconTo Next Page
To Previous Page IconTo Previous Page
To Previous Page IconTo Previous Page
Loading...
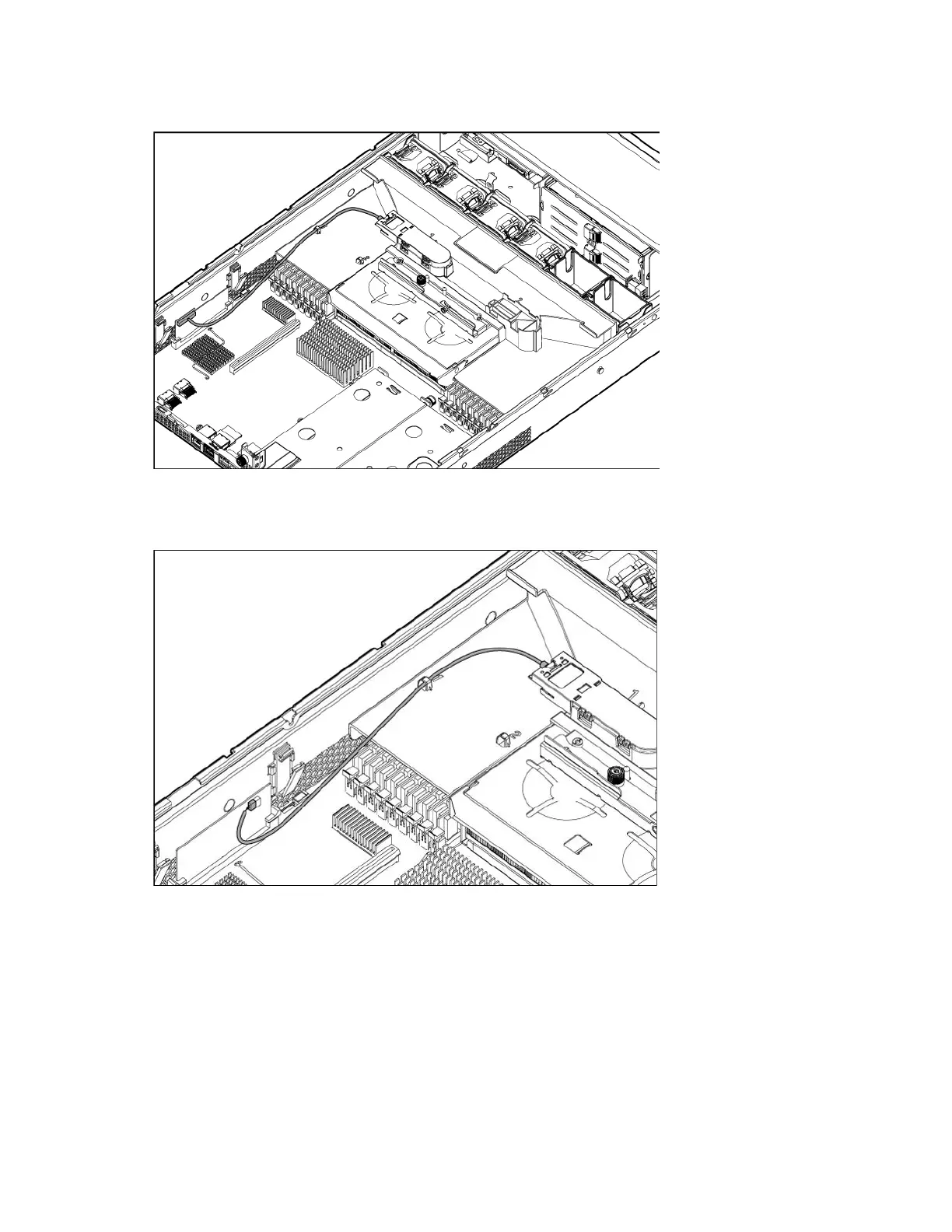
Cabling 83
BBWC battery cabling
FBWC capacitor pack cabling

Table of Contents

Other manuals for HP ProLiant DL380 G7

Related product manuals