EasyManua.ls Logo

HP StoreOnce 4500 - Internal Backplane Cabling Configurations; HPE Storeonce 2700 System Internal SAS Cabling

HP StoreOnce 4500
81 pages
To Next Page IconTo Next Page
To Next Page IconTo Next Page
To Previous Page IconTo Previous Page
To Previous Page IconTo Previous Page
Loading...
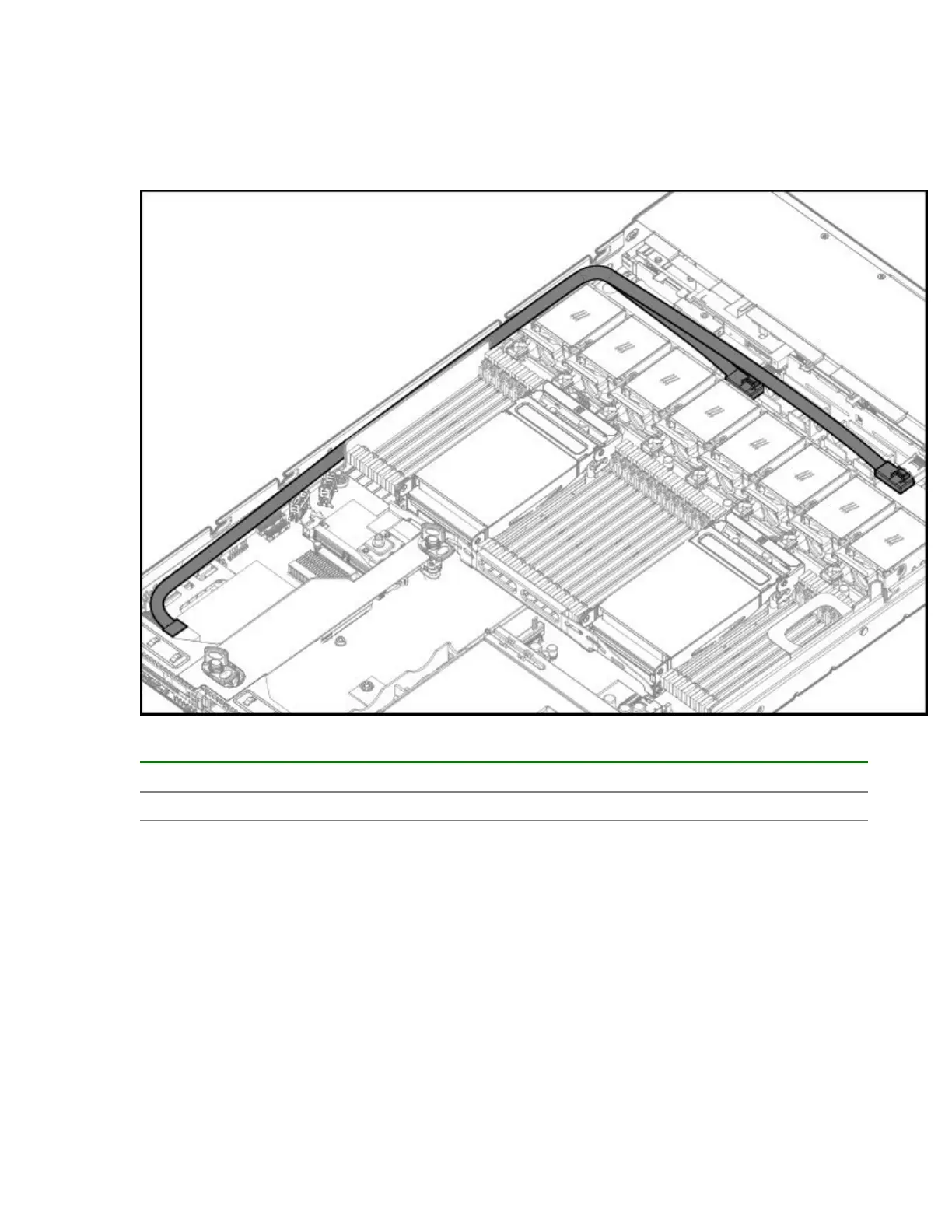
Internal backplane cabling configurations
HPE StoreOnce 2700 system internal SAS cabling
Figure 13: Internal SAS cabling for HPE StoreOnce 2700 System
From To
Port on backplane Port on RAID controller card
40 Internal backplane cabling configurations

Table of Contents

Other manuals for HP StoreOnce 4500

Related product manuals