EasyManua.ls Logo

Huawei FusionModule5000 - Page 135

Huawei FusionModule5000
198 pages
Print Icon
To Next Page IconTo Next Page
To Next Page IconTo Next Page
To Previous Page IconTo Previous Page
To Previous Page IconTo Previous Page
Loading...
FusionModule5000 Smart Modular Data Center
Maintenance Guide (ECC800)
5 Parts Replacement
Huawei Proprietary and Confidential
Copyright © Huawei Technologies Co., Ltd.
127
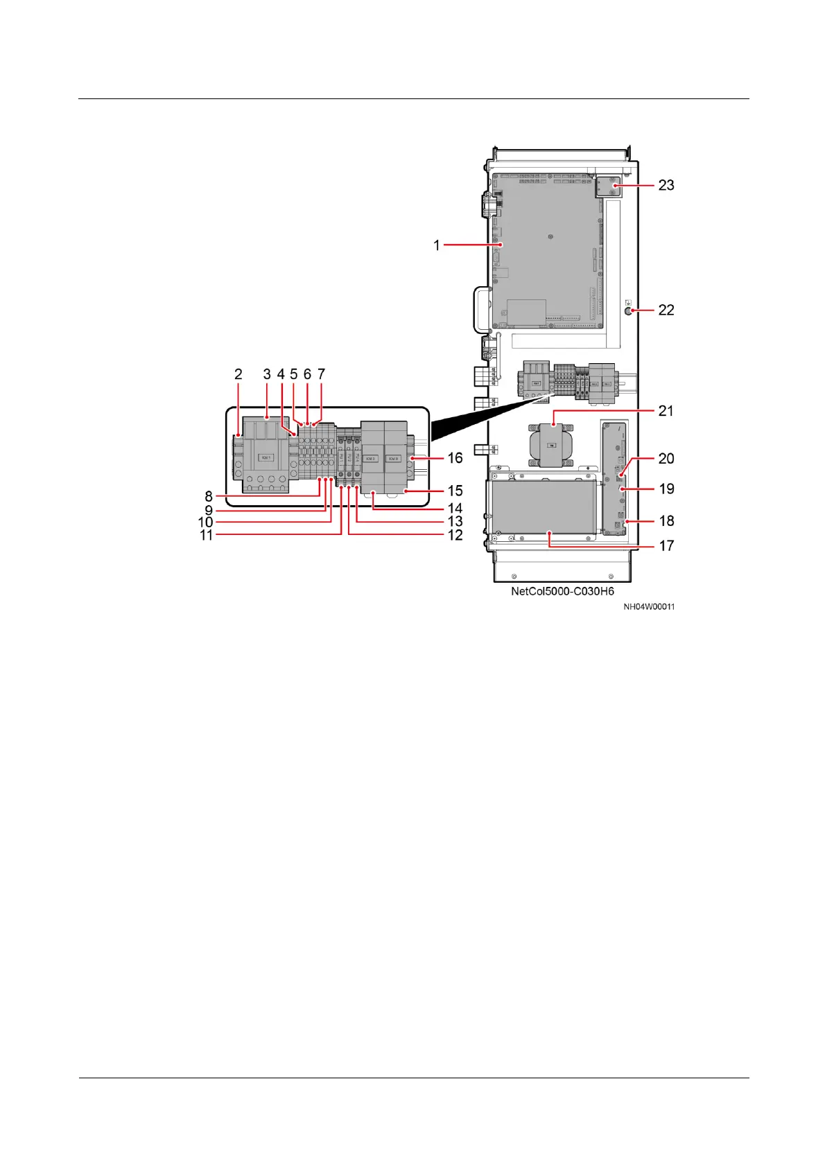
Figure 5-29 Components inside the NetCol5000-C030H6 electric control box
(1) A1 main control board
(2) Terminal fastener
(3) KM1 dual-route switch
contactor
(4) Terminal fastener
(5) X4.1 wiring terminal
(6) X4.2 wiring terminal
(7) X5.1 wiring terminal
(8) X5.2 wiring terminal
(9) X6.1 wiring terminal
(10) X 6.2 wiring terminal
(11) FU1 transformer input
fuse
(12) FU2 transformer output
fuse
(13) FU4 water pump fuse
(14) KM2 M11 water pump
relay 1
(15) KM3 M12 water pump
relay 2
(16) Terminal fastener
(17) PSU
(18) Jumper cap J11
(19) A2 power supply
backplane
(20) DIP switch SW1
(21) TC transformer
(22) M1 ground screw
(23) EL electronic label

Table of Contents

Other manuals for Huawei FusionModule5000

Related product manuals