EasyManua.ls Logo

IEMCA MASTER 880 MP-E - Description of the Versions

Default Icon
97 pages
Print Icon
To Next Page IconTo Next Page
To Next Page IconTo Next Page
To Previous Page IconTo Previous Page
To Previous Page IconTo Previous Page
Loading...
GB
2 - TECHNICAL INFORMATION MASTER 880MP E-volution
2 - Pag. 12 / 19
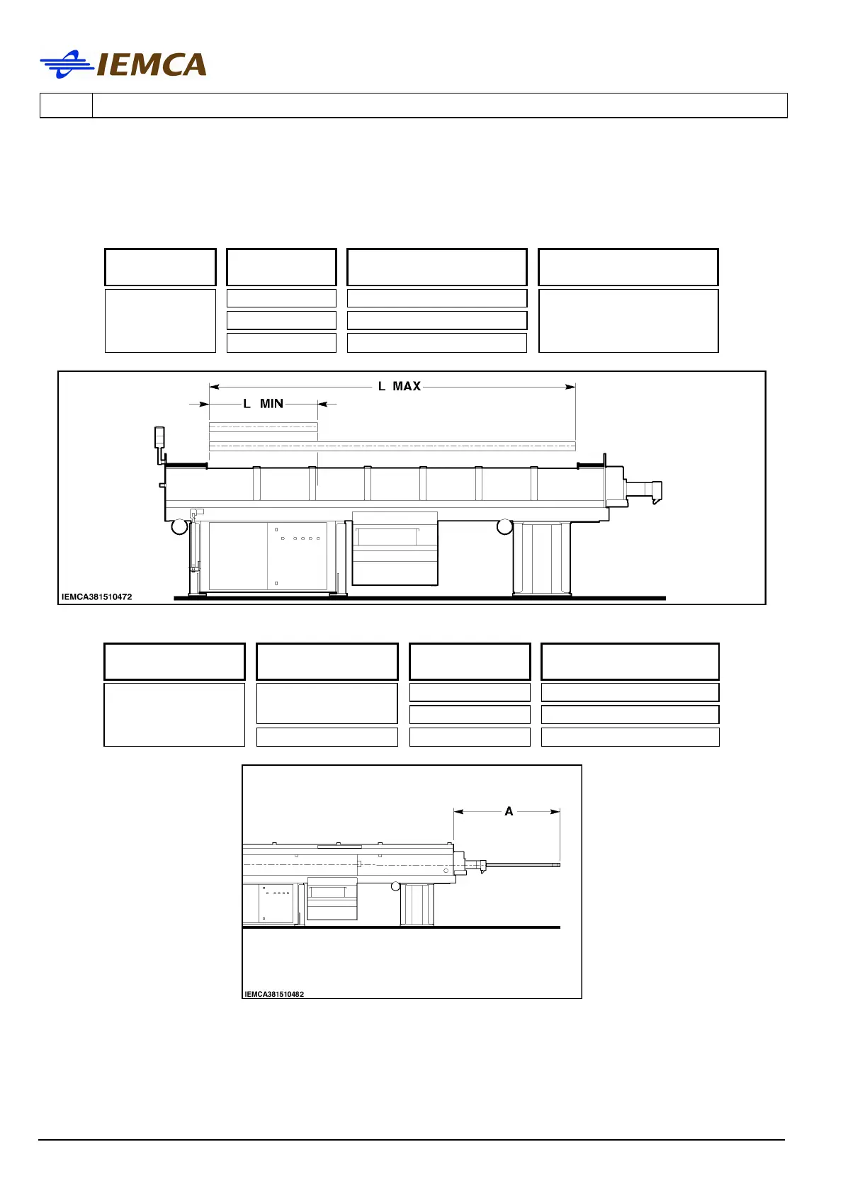
2.5 DESCRIPTION OF THE VERSIONS
Table 1. Bar length
Modello Versione Lunghezza massima
mm (ft)
Lunghezza minima
mm (ft)
33 3300 (10,8)
38 3800 (12,4)
MASTER
880 MP
Evolution
43 4300 (14,1)
1000 (3,2)
Table 2. Bar pusher max. extension
Model Version Version A - Max. extension
(mm)
L 1350
33-38-43
LL 1600
MASTER 880 MP
Evolution
38-43
XLL 1850

Related product manuals