EasyManua.ls Logo

Immergas nike star 24 3 E - Installation Regulations and Dimensions; Boiler Dimensions

Immergas nike star 24 3 E
34 pages
Print Icon
To Next Page IconTo Next Page
To Next Page IconTo Next Page
To Previous Page IconTo Previous Page
To Previous Page IconTo Previous Page
Loading...
68
RO SKIE
t /PSNFEFJOTUBMBSF
- aceste cazane nu pot  instalate în dormitoare
sau în încăperi utilizate ca baie sau duş. Nu
pot  instalate nici în locuri în care există
şemineuri deschise fără aux de aer propriu.
Trebuie instalate într-un mediu în care tem-
peratura nu poate coborî sub 0°C. Nu trebuie
să e expuse agenţilor atmosferici.
- Centralele cu cameră deschisă de tip B nu
trebuie instalate în locuri unde se desfăşoară
activităţi comerciale, artizanale sau industriale
în care se utilizează produse conţinând vapori
sau substanţe volatile (de ex vapori de acizi,
adezivi, vopsele, solvenţi, combustibili, ecc.),
precum şi pulberi (de ex. Pulberea rezulta
prin prelucrarea lemnului, pulbere de carbon,
de ciment etc) care pot  dăunătoare pentru
componentele aparatului şi îi pot compromise
funcţionarea.
Atenţie: instalarea centralei la perete, trebuie să
garanteze o susţinere stabilă şi ecientă a însuşi
generatorului.
Diblurile (furnizate de serie) în cazul în care este
prezentă o bridă de susţinere sau dispozitiv de xare
cu care e prevăzută centrala trebuie să e utilizate
exclusiv pentru a o xa pe aceasta la perete; pot
asigura o susţinere adecvată doar dacă sunt inserate
corect (după regulile tehnicii corecte) în pereţi
construiţi cu cărămizi pline sau semipline. În caz
de pereţi realizaţi din cărămizi sau blocuri forate,
pereţi despărţitori cu staticitate limitată, sau ori-
cum ziduri diferite de cele indicate, este necesar să
efectuaţi o vericare statică în prealabil sistemului
de susţinere.
N.B.: şuruburile pentru diblu cu cap hexagonal
prezente în blister, sunt folosite exclusiv pentru
xarea respectivei bride de susţinere la perete.
Aceste centrale au rol de a încălzi apa la o
temperatură inferioară celei de erbere la presiune
atmosferică.
Trebuie să e racordate la o instalaţie de încălzire
şi la o reţea de distribuţie de apă caldă menajeră
adecvată prestaţiilor şi puterii lor. .
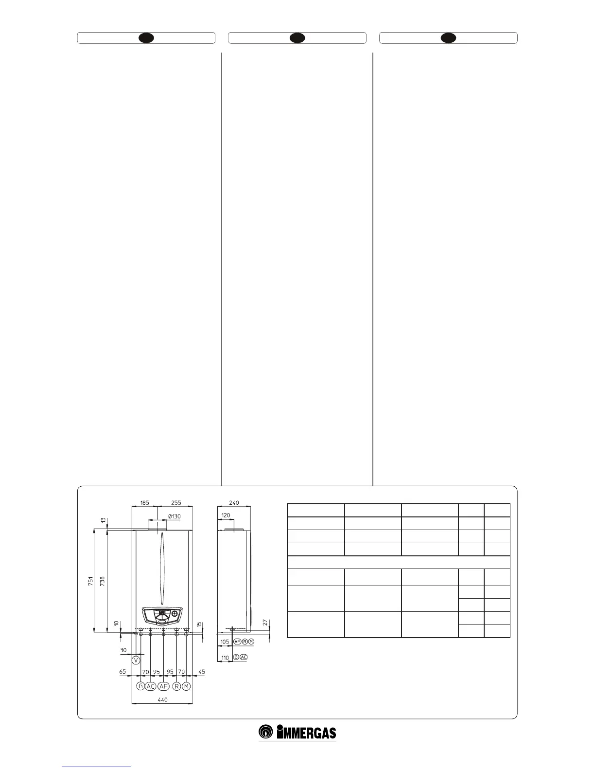
1.2 DIMENSIUNI PRINCIPALE.
Legendă (Fig. 1-1):
G - Alimentare gaz
AC - Ieşire apă caldă menajeră
AF - Intrare apă caldă menajeră
R - Retur instalaţie
M - Tur instalaţie
V - Racord electric
t *OTUBMMBUJPOSFHVMBUJPOT
- these boilers cannot be installed in bedrooms
or shower or bathrooms; ey cannot be in-
stalled in rooms with open res without their
own air ow. ey must be installed in rooms
where the temperature cannot fall below 0°C
and must not be exposed to atmospheric
agents.
- Type B open chamber boilers must not be
installed in places where commercial, artisan
or industrial activities take place, which use
products that may develop volatile vapours
or substances (e.g. acid vapours, glues, paints,
solvents, combustibles, etc.), as well as dusts
(e.g. dust deriving from the working of wood,
coal nes, cement, etc.), which may be dama-
ging for the components of the appliance and
jeopardise functioning.
Important: Wall mounting of the boiler must
guarantee stable and efficient support for the
generator.
e plugs (standard supply) are to be used only in
conjunction with the mounting brackets or xing
template to x the appliance to the wall; they only
ensure adequate support if inserted correctly (ac-
cording to technical standards) in walls made of
solid or semi-hollow brick or block. In the case of
walls made from hollow brick or block, partitions
with limited static properties, or in any case walls
other than those indicated, a static test must be
carried out to ensure adequate support.
N.B.: the hex head screws supplied in the blister
pack are to be used exclusively to x the relative
mounting bracket to the wall.
ese boilers are used to heat water to below boiling
temperature in atmospheric pressure.
ey must be connected to a heating system and
hot water circuit suited to their performance and
capacity.
1.2 MAIN DIMENSIONS.
Key (Fig. 1-2):
G - Gas supply
AC - Domestic hot water outlet
AF - Domestic cold water inlet
R - System return
M - System delivery
V - Electric attachment
1-2
t *OÝUBMBʊOÏOPSNZ
- tieto kotle nesmú byť inštalované v spálni,
v kúpelne alebo na záchode. Nesmú sa
inštalovať ani v miestnostiach, kde sa
nachádzajú otvorené ohniská (krby) bez
prívodu vlastného vzduchu. Okrem toho
musí byť inštalované v prostredí, kde teplota
nemôže klesnúť pod 0°C. Nesmú byť vystavené
poveternostným vplyvom.
- Kotle s otvorenou komorou typu B nesmú b
inštalované v miestnostiach, kde je vyvíjaná
priemyslová, umelecká alebo komerčná
činnosť, pri ktorej vznikajú výpary alebo
prchavé látky (výpary kyselín, lepidiel, farieb,
riedidiel, horľavín apod.), alebo prach (napr.
prach pochádzajúci zo spracovania dreva,
uholný prach, cementový prach apod.),
ktoré môžu škodiť zariadení a narušiť jeho
činnosť.
Upozornenie: Miesto inštalácie na stenu musí kotlu
poskytnúť stabilnú a pevnú oporu.
Hmoždinky (dodané v počtu niekoľkých kusov)
v prípade opernej konzoly alebo upínacej podložky,
ktoré sú súčasťou dodávky, sú určené výhradne k
inštalácii kotla na stenu. Adekvátnu oporu môžu
zaručiť iba ak sú správne inštalované (podľa
technických zvyklostí) do stien z plného alebo
poloplného muriva. V prípade stien z dierovaných
tehál alebo blokov, priečok s obmedzenou statikou
alebo muriva iného, než ako je vyššie uvedené, je
nutné najprv pristúpiť k predbežnému overeniu
statiky oporného systému.
Poznámka: Hmoždinkové skrutky so šesťhrannou
hlavou v blistri sa používajú výhradne na
upevnenie opornej konzoly na stenu.
Tieto kotle slúžia pre ohrev vody na teplotu nižšiu
ako bod varu pri atmosférickom tlaku.
Kotle musia byť pripojené k vykurovaciemu
systému a k rozvodnej sieti úžitkovej vody, kto
odpovedajú ich funkcii a výkonu.
1.2 HLAVNÉ ROZMERY.
Legenda (Obr. 1-2):
G - Prívod plynu
AC - Odtok teplej úžitkovej vody
AF - Odtok studenej úžitkovej vody
R - Vratný okruh systému
M - beh systému
V - Elektrická prípojka
RO IE SK (mm)
Înălţime Height Výška 751
Lăţime Width Šírka 440
Adâncime Depth Hĺbka 240
PRINDERI - ATTACHMENTS - PRÍPOJKY
GAZ GAS PLYN G 3/4”
APĂ
MENAJERĂ
DOMESTIC
HOT WATER
ÚŽITKOVÁ
VODA
AC 1/2”
AF 1/2”
INSTALAŢIE SYSTEM ZARIADENIE
R 3/4”
M 3/4”

Other manuals for Immergas nike star 24 3 E

Related product manuals