EasyManua.ls Logo

Immergas Victrix TT - Page 11

Immergas Victrix TT
Print Icon
To Next Page IconTo Next Page
To Next Page IconTo Next Page
To Previous Page IconTo Previous Page
To Previous Page IconTo Previous Page
Loading...
11
11
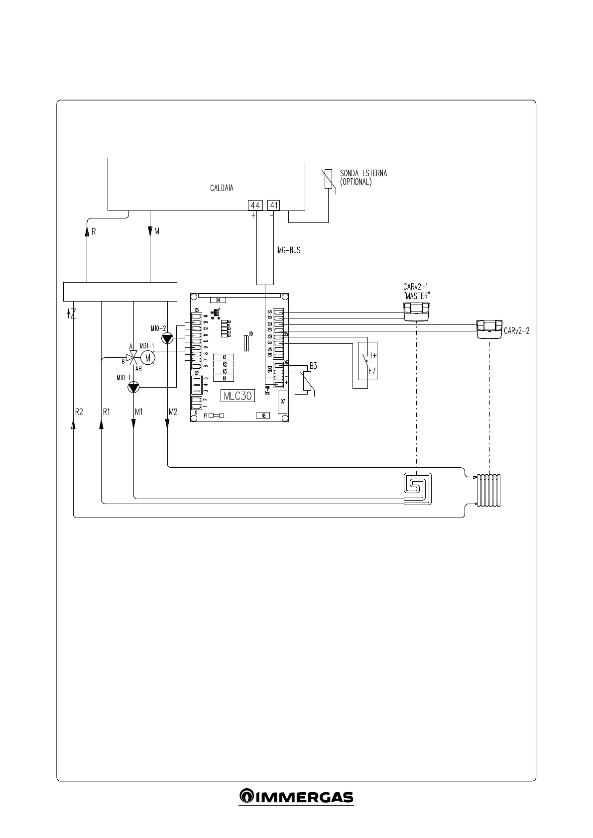
Schema idraulico kit multizone, congura-
zione 1 zona alta temperatura - 1 zona bassa
temperatura.
Legenda:
B3 - Sonda mandata zona 1 bassa temperatura
CAR
V2
-1 - Comando amico remoto
V2
zona 1 bassa temperatura
CAR
V2
-2 - Comando amico remoto
V2
zona 2 alta temperatura
E7-1 - Termostato sicurezza zona 1 bassa temperatura
M10-1 - Circolatore zona 1 bassa temperatura
M10-2 - Circolatore zona 2 alta temperatura
M31-1 - Valvola miscelatrice zona 1 bassa temperatura
M - Mandata impianto
R - Ritorno impianto

Related product manuals