EasyManua.ls Logo

IMO VXSM75-1 - Page 17

IMO VXSM75-1
114 pages
Print Icon
To Next Page IconTo Next Page
To Next Page IconTo Next Page
To Previous Page IconTo Previous Page
To Previous Page IconTo Previous Page
Loading...
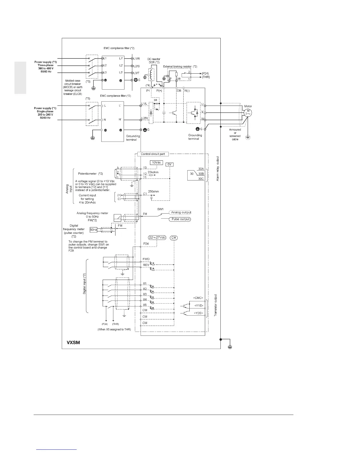
2-3 Installation and Connection
2
*1) Supply a source voltage
suitable for the rated
voltage of the inverter.
*2) Optional part. Use when
necessary.
*3) Peripheral equipment.
Use when necessary.
*4) To connect a DC reactor
(DCR) for power factor
correcting, remove the
jumper between the P1
and P (+) terminals.
Basic connection diagram
Enclosure

Table of Contents

Related product manuals