EasyManua.ls Logo

IMO VXSM75-1 - Page 90

IMO VXSM75-1
114 pages
Print Icon
To Next Page IconTo Next Page
To Next Page IconTo Next Page
To Previous Page IconTo Previous Page
To Previous Page IconTo Previous Page
Loading...
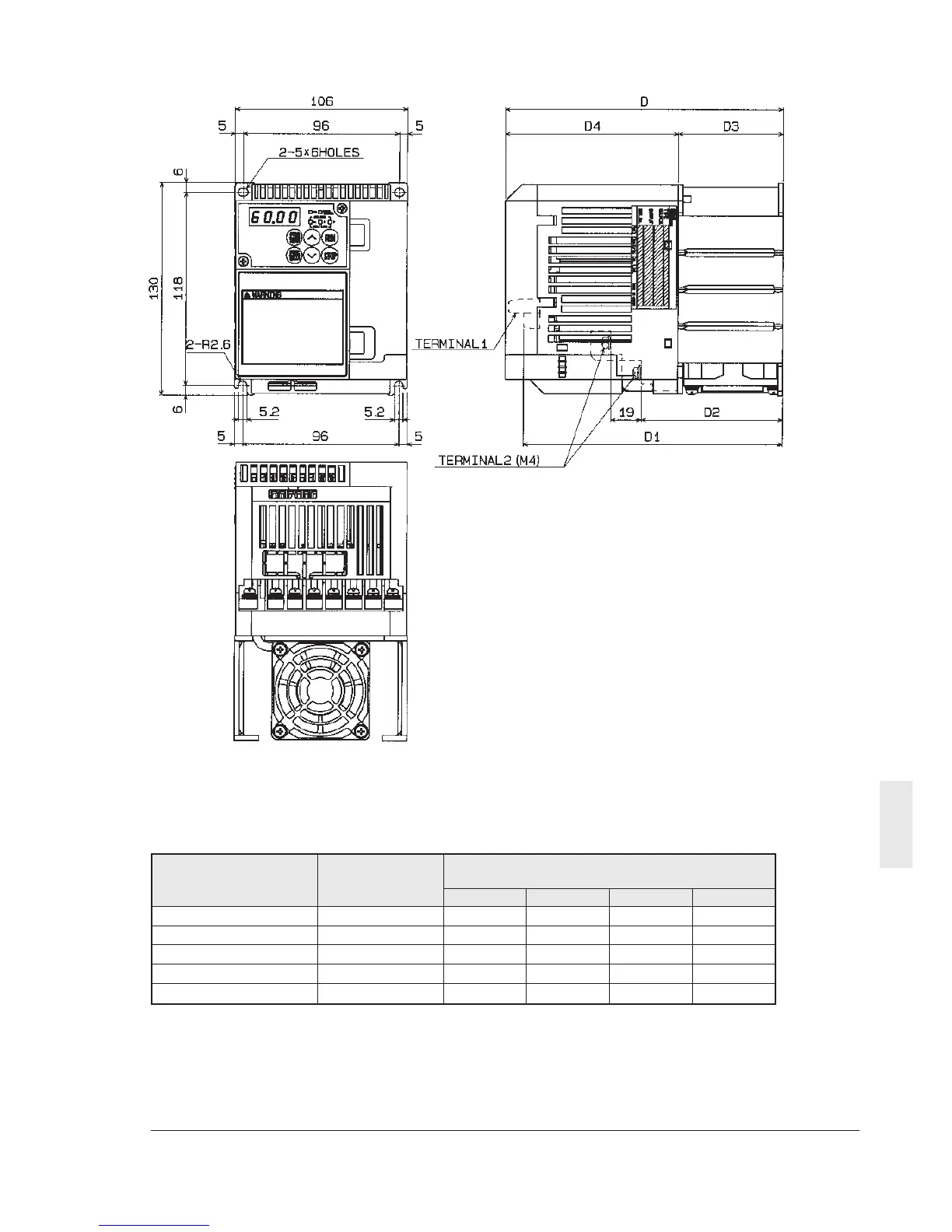
Specifications 9-8
9
Installation screw size : M4 (4 pcs)
Type Standard External dimensions (mm)
applicable
motor [kW] D D1 D2 D3
VXSM 75-1 0.75 126 115 62.5 40
VXSM 40-3 0.4 126 103 50.5 40
VXSM 75-3 0.75 150 115 62.5 64
VXSM 150-3 1.5 170 159 86.5 64
VXSM 220-3 2.2 170 159 86.5 64

Table of Contents

Related product manuals