EasyManua.ls Logo

Inficon BPG402-SE - Appendix; A: Relationship Output Signal - Pressure

Inficon BPG402-SE
54 pages
Print Icon
To Next Page IconTo Next Page
To Next Page IconTo Next Page
To Previous Page IconTo Previous Page
To Previous Page IconTo Previous Page
Loading...
tina46e1-b (2017-12) BPG402.om 49
Appendix
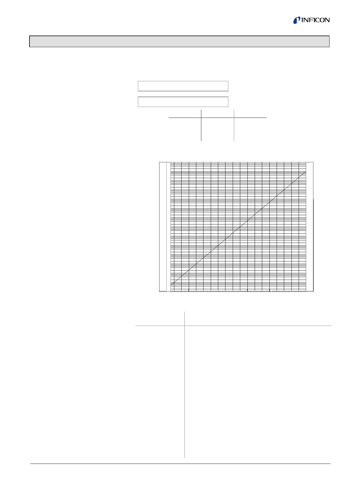
p = 10
(U - 7.75) / 0.75 + c
U = 0.75 × (log p - c) + 7.75
where U p c
[V] [mbar] 0
[V] [Pa] 2
[V] [Torr] -0.125
1E+01
1E–01
1E–03
1E–05
1E–07
1E–09
1E+03
0.0
1E+04
1E+02
1E+00
1E–02
1E–04
1E–06
1E–08
1E–10
1.0 2.0 3.0 4.0 5.0 6.0 7.0 8.0 9.0 10.0
sensor error
Measuring signal U [V]
Pressure p [mbar]
inadmissible range
inadmissible range
Output signal U
[V]
[mbar]
Pressure p
[Torr]
[Pa]
0.1 / 0.3 / 0.5
Sensor error ( 44)
0.51 … 0.774 Inadmissible range
0.774 5×10
-10
3.75×10
-10
5×10
-8
1.00 1×10
-9
7.5×10
-10
1×10
-7
1.75 1×10
-8
7.5×10
-9
1×10
-6
2.5 1×10
-7
7.5×10
-8
1×10
-5
3.25 1×10
-6
7.5×10
-7
1×10
-4
4.00 1×10
-5
7.5×10
-6
1×10
-3
4.75 1×10
-4
7.5×10
-5
1×10
-2
5.50 1×10
-3
7.5×10
-4
1×10
-1
6.25 1×10
-2
7.5×10
-3
1×10
0
7.00 1×10
-1
7.5×10
-2
1×10
1
7.75 1×10
0
7.5×10
-1
1×10
2
8.50 1×10
1
7.5×10
0
1×10
3
9.25 1×10
2
7.5×10
1
1×10
4
10.00 1×10
3
7.5×10
2
1×10
5
>10.00 Inadmissible range
A: Relationship Output
Signal – Pressure
Conversion formulae
Conversion curve
Conversion table

Table of Contents

Related product manuals