EasyManua.ls Logo

Inficon PCG554 - Gas Type Influence on Readings; Gas Type Dependence and Calibration

Inficon PCG554
72 pages
Print Icon
To Next Page IconTo Next Page
To Next Page IconTo Next Page
To Previous Page IconTo Previous Page
To Previous Page IconTo Previous Page
Loading...
24
tina56e1-f (2015-09)
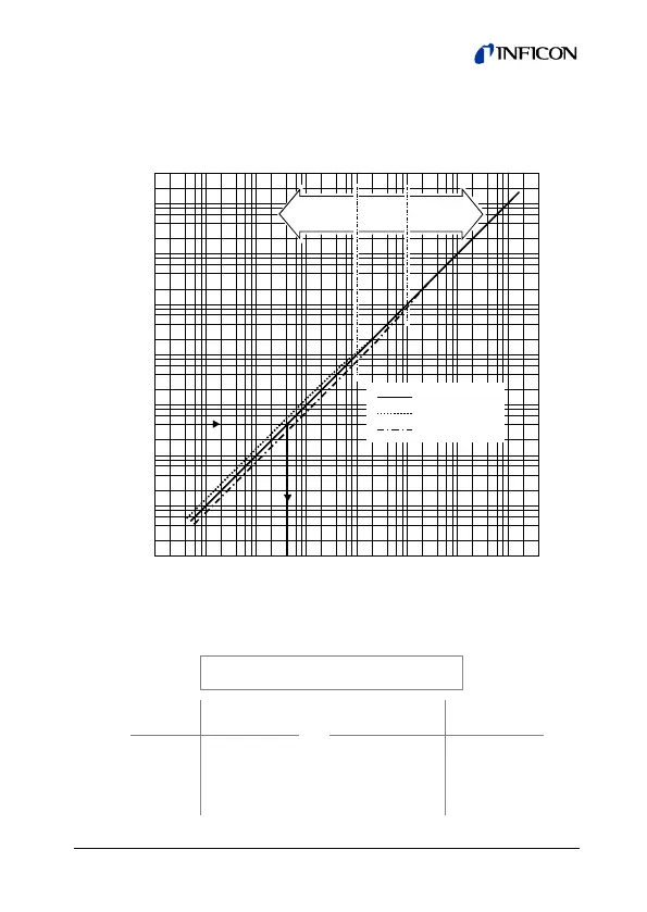
2.2 Gas Type Dependence
Indicated pressure (gauge calibrated for air)
10
2
10
1
10
0
10
–1
10
–2
8
6
4
2
10
–3
10
–4
2
4
6
10
–3
2
4
6
10
–2
2
4
62
4
6
10
0
2
4
6
10
1
10
–1
10
–4
p
eff
[mbar]
2
4
6
10
2
2
4
6
10
3
10
3
p [mbar]
2
Air, O
2
, CO, N
2
He
Ar
8
6
4
2
8
6
4
2
8
6
4
2
8
6
4
2
8
6
4
2
8
6
4
2
4
2
Capacitive
diaphragm
sensor
Crossover
range
Pirani
sensor
Calibration factors
valid for Pirani pressure range below 1 mbar
p
eff
= C × indicated pressure
Gas type Calibration
factor C
Gas type Calibration
factor C
He
Ne
Ar
Kr
Xe
0.8
1.4
1.7
2.4
3.0
H
2
air, O
2
, CO, N
2
CO
2
water vapor
Freon 12
0.5
1.0
0.9
0.5
0.7

Other manuals for Inficon PCG554

Related product manuals