EasyManua.ls Logo

Ingenico iUC150 - 6.3 Kiosk Preparation for New Installation

Ingenico iUC150
70 pages
Print Icon
To Next Page IconTo Next Page
To Next Page IconTo Next Page
To Previous Page IconTo Previous Page
To Previous Page IconTo Previous Page
Loading...
Intégration Guide_iUC150&iUC180 59/70 Copyright © 2012 Ingenico
900009816 R11 000 01/1223 All rights reserved
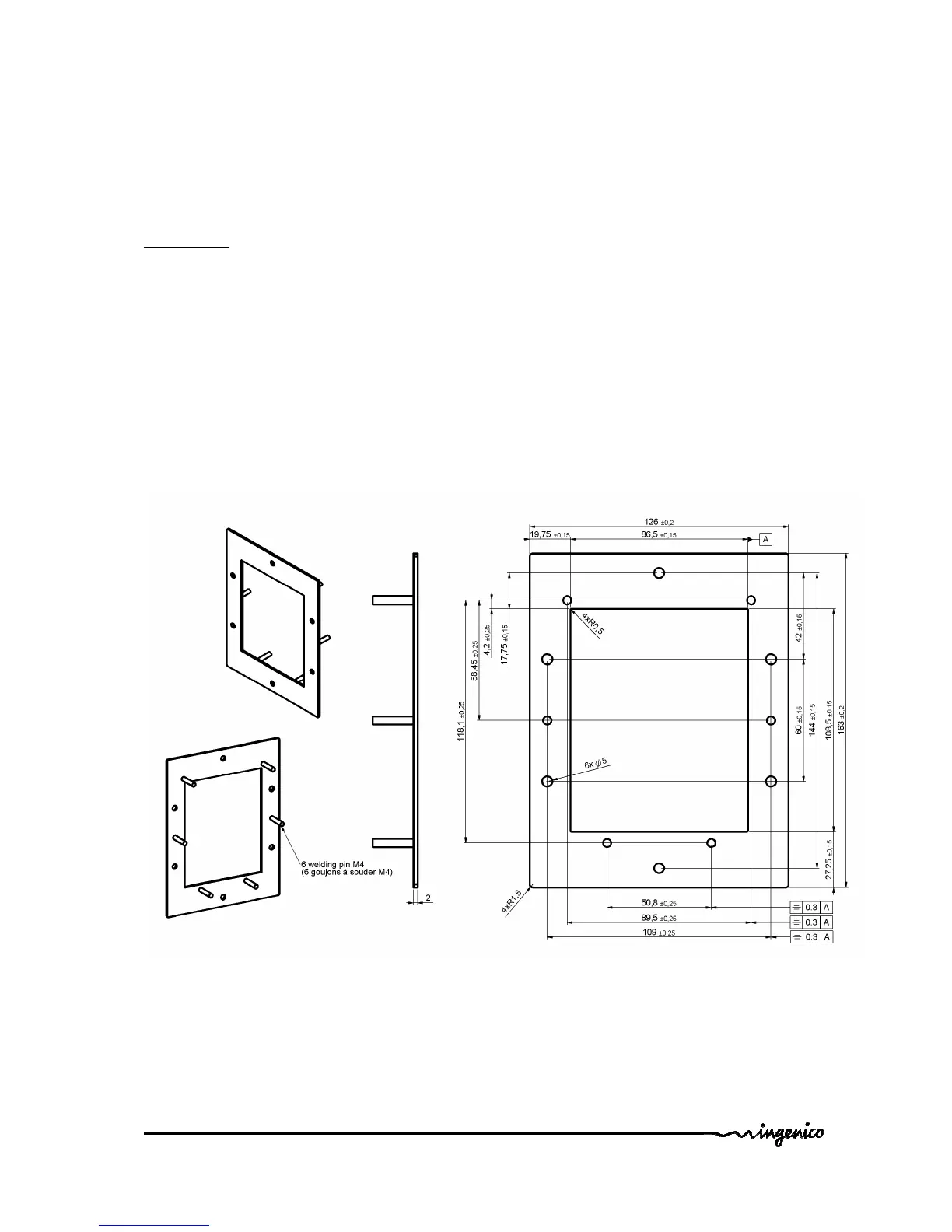
6.3 KIOSK PREPARATION FOR IUC150 OR 180 NEW
INSTALLATION
iUC150 and iUC180 use EVA mounting standard. It requires a cut out in the kiosk to
the dimensions detailed in the diagram below (all dimensions are in millimeters).
The drawing below shows the footprint of iUC150/iUC180 products.
CAUTION:
It is important that the iUC150/iUC180 footprint surface on the kiosk must be flat and
cleared of any holes and burrs to prevent from dust and water penetration in the
kiosk. (IP64 standard)
3D step files are also available upon request.
Fixing must be done by 4 M4x16mm welded studs.
Drawing of the cut-out for the iUC150 or iUC180 3D design on demand.

Table of Contents

Related product manuals