EasyManua.ls Logo

Inovance AM400 Series - Page 13

Inovance AM400 Series
28 pages
Print Icon
To Next Page IconTo Next Page
To Next Page IconTo Next Page
To Previous Page IconTo Previous Page
To Previous Page IconTo Previous Page
Loading...
13
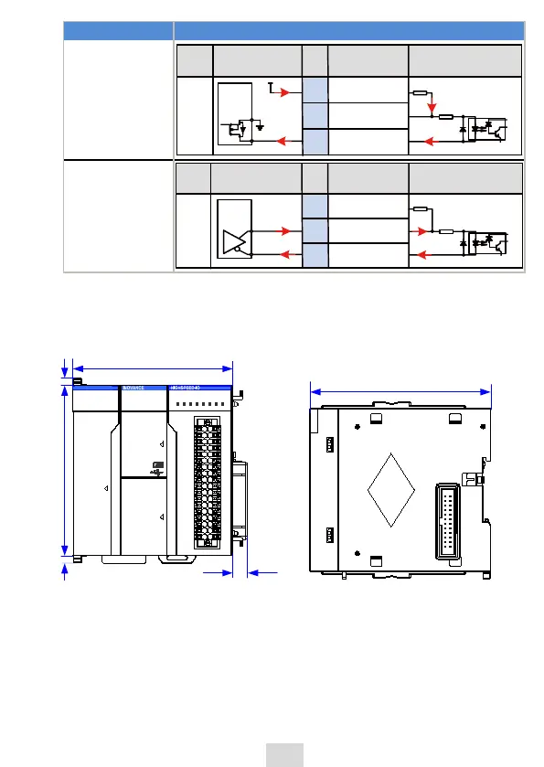
Example Wiring
(2) NPN 24 V
level input



*OU$JSDVJU
/P
"#;
&YU8JSJOH 4JHOBM/BNF
)47JOQVU
琬9O7琭
)4%*''JOQVU
琬9O%*''琭
)4JOQVU$0.
琬9O$0.琭
LĒ
Ē
7
7
*OQVU
5ZQF
/1/
$PMMFDUPS
7MFWFM
(3)
󶍽
5 V level
input



*OU$JSDVJU
/P
"#;
&YU8JSJOH 4JHOBM/BNF
)47JOQVU
琬9O7琭
)4%*''JOQVU
琬9O%*''琭
)4JOQVU$0.
琬9O$0.琭
LĒ
 Ē
*OQVU
5ZQF
%*''
TJHOBM
7MFWFM
"#;
4 Mechanical Design Reference
4.1 Dimensions
BF
SF
ERR
RUN
0
1 2 3 765
4
4 5 6 732
10
I
II
RUN
/STOP
MFK
2 765410 3
80.0
90.0
3.
9
4.0
7.
0
CN3 EtherNET CN
4 EtherCAT
CN1 RS485
AM600-CPU
1608TN
CN2 CAN
35
36
2 1
CANERR
CANRUN
95.0
Figure 3 Dimensions of CPU module (in mm)

Related product manuals