EasyManua.ls Logo

Instron AVE2 - Electromechanical Single Column Testing Machines

Instron AVE2
88 pages
Print Icon
To Next Page IconTo Next Page
To Next Page IconTo Next Page
To Previous Page IconTo Previous Page
To Previous Page IconTo Previous Page
Loading...
Chapter: Installation
32 M16-16905-EN
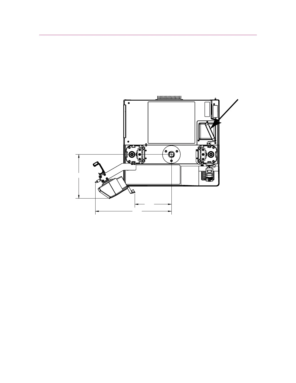
Figure 8 on page 32 shows the footprint dimensions of the AverEdge32™ configuration
on a 6800 Series testing system, including the back screen (1). Note that the mounting
bracket and back screen are installed in the T-slot closest to the outer edge of each
column.
Figure 8. Footprint shown on 6800 Series testing system
Electromechanical single column testing machines
This installation applies to single column table top machines in the following series:
6800 (e.g. 68SC1, 68SC5)
3400 (e.g. 34SC1, 34SC5)
5900 (e.g. 5943, 5944)
3300 (e.g. 3343, 3345)
5500 (e.g. 5543, 5544)
280
348
600
1

Table of Contents

Related product manuals