EasyManua.ls Logo

Integra DTR-7.7 - Connecting a Satellite, Cable, Set-top box, or Other Video Source

Integra DTR-7.7
213 pages
Print Icon
To Next Page IconTo Next Page
To Next Page IconTo Next Page
To Previous Page IconTo Previous Page
To Previous Page IconTo Previous Page
Loading...
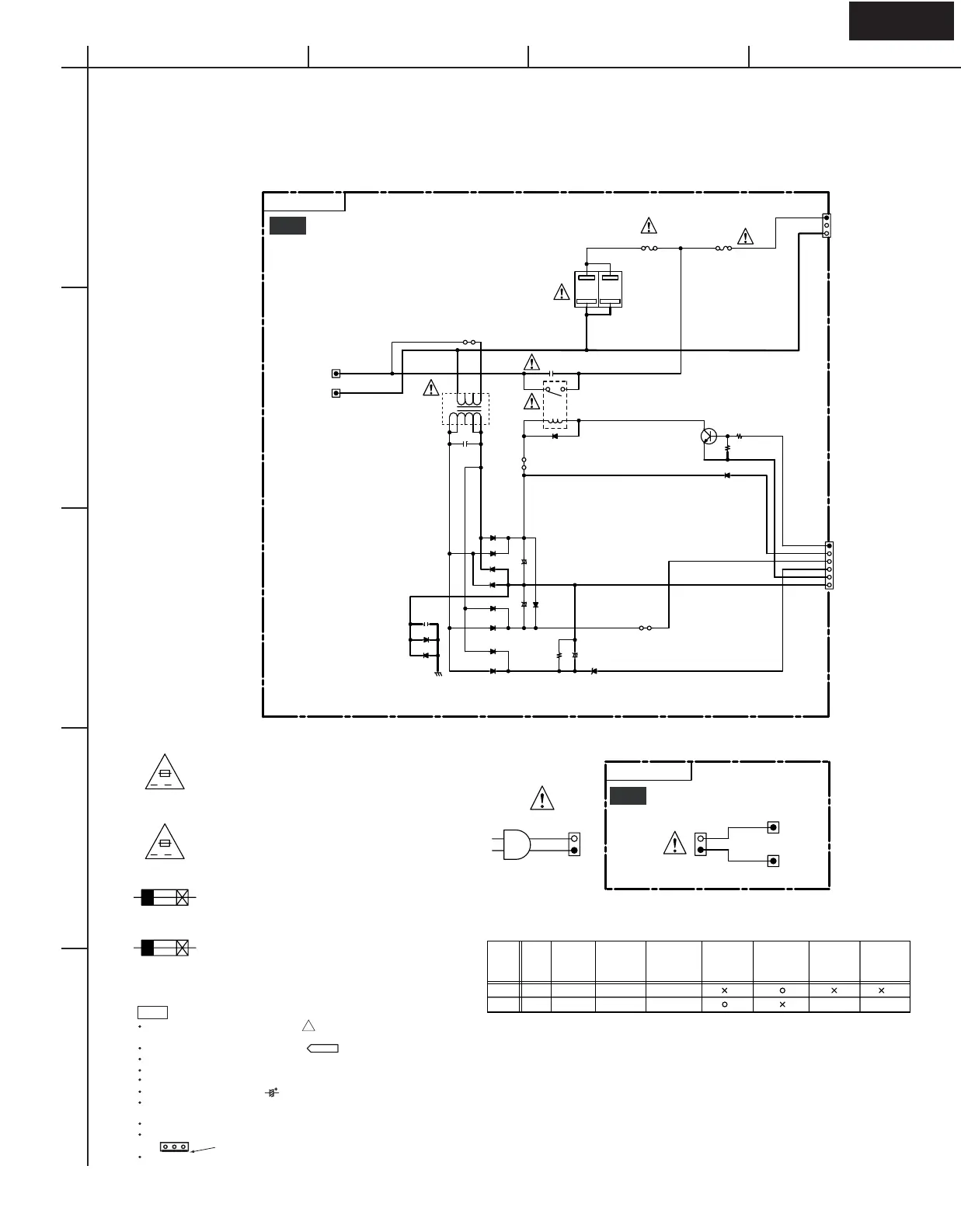
SCHEMATIC DIAGRAM-7 (SD-7)
POWER SUPPLY SECTION
DTR-7.7
DTR-7.7
A
1
2
3
4
5
BCDEFGH
CSP
+24VR
CSRLD
CSPE
SBLSP
SBRSP
SRSP
SLSP
LSP
RSP
CSP
RLGND
Z2RLD
SBRLD
CSRLD
FRLD
+22V
CSPE
RSPE
LSPE
SLSPE
SRSPE
SBLSPE
SBRSPE
RLGND
POFF1
APOWER
RLGND
+12VTRG
DGND
+10S
D-TYPE
P-TYPE
P-TYPE
D-TYPE
D-TYPE
P-TYPE
D-TYPE
P-TYPE
D-TYPE
P-TYPE
D-TYPE
P-TYPE
(1/2W)
NAETC-9001
TO NAVD-8991
SD-9:G1
TO NCAF-8678
SD-2:C5
TO NAETC-9002
SD-7:E4
D-TYPE
P/W/G-TYPE
NAETC-9002
NAPS-8999
TO POWER TRANSFORMER
PRIMARY SOCKET
*
*
*
*
*
*
*
*
*
*
*
*
*
*
*
*
*
*
F901
F903
*
*
FOR CONTINUED PROTECTION
AGAINST FIRE HAZARD, REPLACE
ONLY WITH FUSE OF SAME TYPE
AFIN D'ASSURER UNE PROTECTION
PERMANENTE CONTRE LES RISQUES
D'INCENDIE, REMPLACER UNIQUEMENT
PAR UN FUSIBLE DE MEME TYPE
ET CALIBRATION COMME INDIQUE.
THIS SYMBOL LOCATED NEAR THE FUSE INDICATES
THAT THE FUSE USED IS SLOW OPERATING TYPE
FOR CONTINUED PROTECTION AGAINST FIRE FUSE
HAZARD,REPLACE WITH SAME TYPE FUSE. FOR FUSE
RATING REFER TO THE MAKING ADJACENT TO THE SYMBOL.
CE SYMBOLE INDIQUE QUE LE FUSIBLE UTLISE EST
A LENT, E POUR UNE PROTECTION PERMANENTE,N'UTILISER
CAUTION
AND RATING INDICATED.
AV
AV
ATTENTIION
QUE DES FUSIBLES DE MEME TYPE. CE DARNIER EST
INDIQUE LA QU LE PRESENT SYMBOL EST APPOSE.
D6605
D6607
D6600
JL6602B
4
3
2
1
D6603
C6605
103Z
L6601
S1.3C
R6601
22
R6611
22
J6604
L6603
S1.3C
R6603
22
R6613
22
J6619
L6604
S1.3C
R6604
22
R6614
22
J6620
L6605
S1.3C
R6605
22
R6615
22
J6626
L6606
S1.3C
R6606
22
R6616
22
J6625
R6610
22
J6600
L6600
S1.3C
R6600
22
JL6600B
7
6
5
4
3
2
1
JL2006B
1
2
3
4
5
JL6603B
9
8
7
6
5
4
3
2
1
C6603
103Z
C6600
103Z
P6600
R
L
RL6603
1
3
45
2
6
P6605
P6607
RL6605
6
2
5
4
3
1
RL6600
5
2
6
1
3
4
R6690
10
L6602
S1.3C
R6602
22
R6612
22
J6851
C6602
103Z
RL6602
4
3
61
2
5
JL6602A
4
3
2
1
P6602
C906
4.7/50
+
C904
100/35
+
J907
C903
2200/35
+
D909
1SS133
D901
1SS133
D902
1SS133
D903
1SS133
D904
1SS133
D905
1SS133
D908
1SS133
R909
100K
D906
1SS133
D907
1SS133
D910
UDZ5.1B
D913
1SS133
R913
1K
R914
100K
Q912
KTC3199-GR
J905
C902
223J
RL902
4
3 2
1
J901
AC INLET CABLE
C912
103M/275
T902
1
2
3
4
5
6
7
8
9
D991
1SS133
D992
1SS133
P991
C991
223J
D912
1SS133
JL911A
1
2
3
4
5
6
P906A
P907A
1
3
P910
C6650
102J
C6651
102J
C6640
103J
C6641
103J
C6654
102J
C6653
102J
C6644
103J
C6643
103J
C6656
102J
C6655
102J
C6645
103J
C6646
103J
C6658
102J
C6657
102J
C6647
103J
C6648
103J
C6652
102J
C6642
103J
C6607
103Z
RL6607
6
2
5
4
3
1
P912
U16
POWER SUPPLY PC BOARD
U18
SP TERMINAL PC BOARD
U19
SP TERMINAL PC BOARD
THE COMPONENTS IDENTIFIED BY MARK ARE CRITICAL FOR SAFETY
REPLACE ONLY WITH PART NUMBER SPECIFIED.
VOLTAGE (MEASURED WITH VOLTMETER) IS DC VOLTAGE.(NO INPUT SIGNAL).
ALL PNP TRANSISTORS ARE EQUIVALENT TO 2SA1015-GR UNLESS OTHERWISE NOTED.
ALL NPN TRANSISTORS ARE EQUIVALENT TO 2SC1815-GR UNLESS OTHERWISE NOTED.
ALL DIODES ARE EQUIVALENT TO 1SS133 UNLESS OTHERWISE NOTED.
ELECTROLYTIC CAPACITORS ( ) ARE IN uF/WV.
ALL CAPACITORS ARE IN pF/50WV UNLESS OTHERWISE NOTED.
EX) 030- 3pF 330- 33pF 331- 330pF 333- 0.033uF
ALL RESISTORS ARE IN OHMS 1/4WATTS UNLESS OTHERWISE NOTED.
THE THICK LINES ON PC BOARD ARE THE PRINTING SIDE OF THE PARTS.
EX) PRINTING SIDE
CIRCUIT IS SUBJECT TO CHANGE FOR IMPROVEMENT.
!
NOTE
TO NAPS-9000
SD-8:D3
FRONT
SPEAKERS
SURROUND
SPEAKERS
SURROUND BACK
SPEAKERS
ZONE 2
SPEAKERS
R
L
R
L
R
L
TO NAETC-9001
SD-7:E1
CENTER
SPEAKER
TO NCAF-8678
SD-2:C5
DD
PA
P910
1 out
2 out 12A/250V
T5AL250V
F901
T2.5AL250V
5A/125V
F903
NPT-1520JQ
NPT-1519GQ
T902
Destination table
C6650-6658 C6640-6648
J6625
J6851
J6600
J6604
J6619
J6620
J6626
102J 103J
R6600-6606
R6610-6616
L6600-6606
AC-HAC-G
NAETC-9006
TO NAPS-8999
SD-7:B2
P906B
P907B
P908
1
2
U24
INLET PC BOARD
PA:
DD:
AC120V~60Hz
AC230-240V~50/60Hz
TYPE