EasyManua.ls Logo

Integra DTR-7.7 - Connecting an HDD-compatible Component

Integra DTR-7.7
213 pages
Print Icon
To Next Page IconTo Next Page
To Next Page IconTo Next Page
To Previous Page IconTo Previous Page
To Previous Page IconTo Previous Page
Loading...
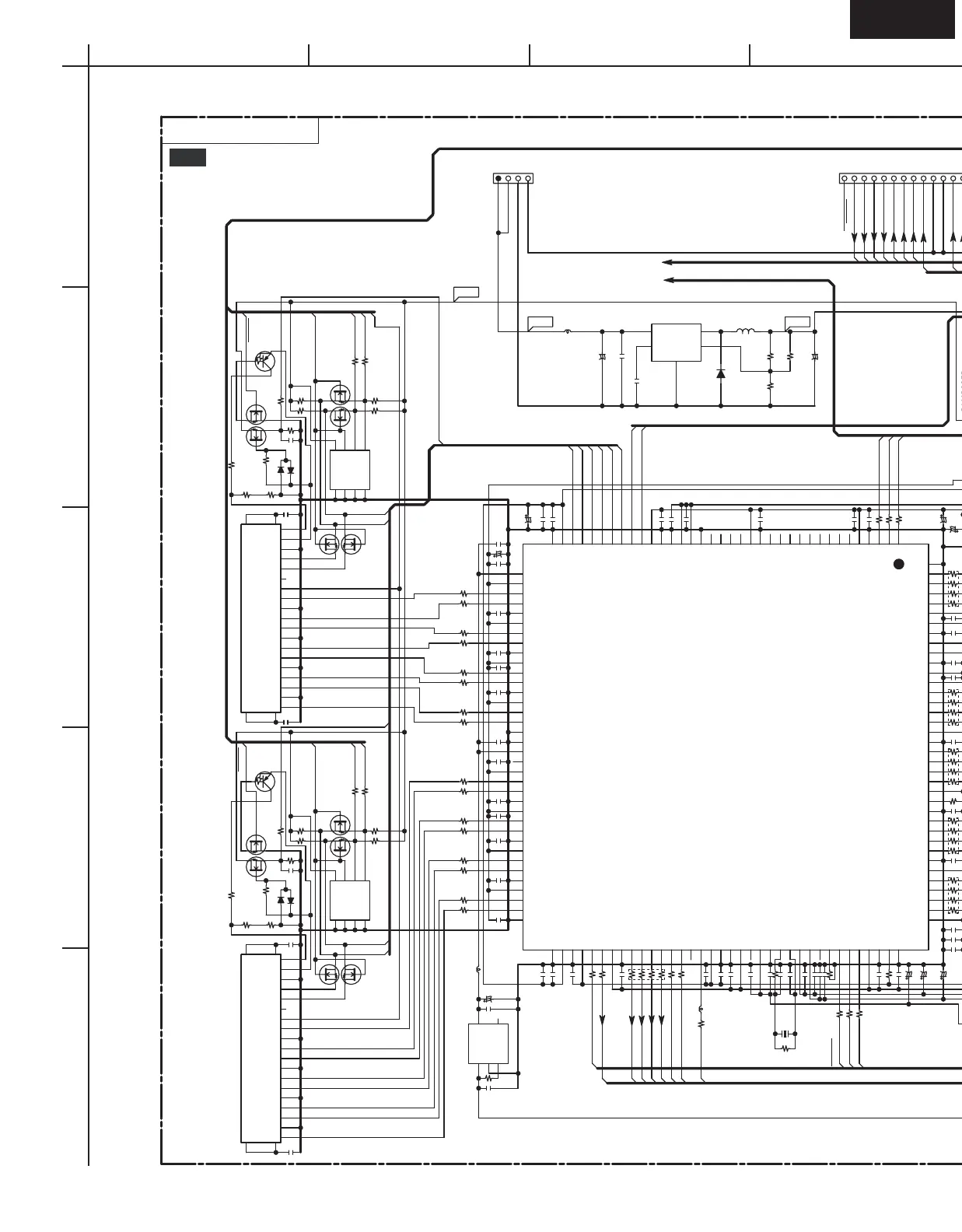
SCHEMATIC DIAGRAM-10(SD-10)
HDMI SECTION-1
DTR-7.7DTR-7.7
A
1
2
3
4
5
BCDEFGH
HDOE
VDOFF
TEST0
HDMI_POW
RTC
+3_3VHD1
TX_HPLG
+3_3VHD1
HDM_CR3
HDM_CR2
HDM_Y8
HDM_CR7
HDM_CR6
HDM_CR5
HDM_CR4
HDM_CR9
HDM_CR8
HDM_Y9
PVCC
HDM_CB6
HDM_CB7
HDM_CB8
HDM_CB9
HDM_Y2
HDM_Y3
HDM_Y4
HDM_Y5
HDM_Y8
HDM_Y9
HDM_Y7
HDM_Y6
HDM_PIXCLK
HDM_CR4
HDM_CR5
HDM_CR2
HDM_CR3
HDM_CR8
HDM_CR9
HDM_CR6
HDM_CR7
DVDA_ENH
HDM_CB6
HDM_CB5
HDM_CB4
HDM_CB3
HDM_BLNK
HDM_CB2
HDM_Y2
HDM_CB8
HDM_Y5
HDM_Y4
HDM_Y6
HDM_Y3
HDM_CB7
HDM_Y7
HDM_CB9
DVIHDMI
+3_3VPLL
+5VHD
INT_TX
+3_3VHD1
HDM_HSYNC
HDMISPF
MCK_HDMI
PCMBCK
PCMSBLR
PCMLR
PCMLRCK
PCMSLR
PCMCSW
HDMISPF
PCMLR
PCMSBLR
PCMBCK
PCMLRCK
PCMCSW
PCMSLR
RXMUTE
CEC_IO
DSCL1
DSDA1
PRODDC2
SCLDDC2
SDADDC2
SCDT
SDAODDC
SCLODDC
SCLODDC
SDAODDC
HPLGDET
MUTERX
PRODDC1
PRODDC2
INT_VSYNC
DVIHDMI
RST_RX
RST_IP
HPD_TX
HPD_TX
RST_VE
OC_FLMDO
OC_SYSRST
HPLGDET
MUTERX
INT_VD
VD_SO
FSI
FSO
FCLK
RST_TX
INT_TX
INT_RX
TXMUTE
SDAODDC
SCLODDC
VDRST
PROEP2
PROEP1
R1HPR
R2HPR
VD_SCK
DSCL0
DSDA0
R0PWR5V
R1PWR5V
DVCC
CVCC18
IOVCC
HDM_CB2
HDM_CB3
HDM_CB4
HDM_CB5
HDM_BLNK
HDM_HSYNC
HDM_VSYNC
SDA_RX
SCL_RX
DSCL1
DSDA1
VD_STB
VD_SI
+3.3VMPU
HS
FSI
FSO
FWRESET
FWFLMD0
FCLK
+3.3VMPU
+3_3VHD1
GND
DBGTXD
DSCL0
DSDA0
PRODDC1
MODE1
MODE0
DB0
DB1
DB2
DB3
OC_DDO
OC_DDI
OC_DCK
OC_DMS
SCL_VDVE
SDA_VDVE
SCLDDC1
SDADDC1
SCL_TX
SDA_TX
HS
SDA_IP
SCLDDC2
SDADDC2
DBGRXD
SDA_RX
SCL_IP
SCL_RX
HDMI_POW
R1X2P
R1X2N
R1X1P
R1X1N
R1X0P
R1X0N
R1XCP
R1XCN
CEC
TX0-
TX2-
TX2+
TX0+
TXC+
TXC-
TX1+
TX1-
+5VHD
RST_RX
SCDT
INT_RX
R0X2N
R0X1P
R0X1N
R0X0N
R0X0P
R0XCP
CEC
R0X2P
R0XCN
R2HPR
+3_3VHD1
R1PWR5V
R1HPR
+3_3VHD1
+3_3VHD1
RST_VD
R0PWR5V
VDRST
TXMUTE
VD_SCK
RXMUTE
VD_STB
HDMISPF
GND
GND
PCMLR
PCMBCK
PCMLRCK
PCMCSW
PCMSLR
PCMSBLR
MCK_HDMI
VD_SO
VD_SI
SDA_TX
RST_TX
SCL_TX
+5VHD
HDM_VSYNC
CEC
CEC_IO
+12DG
+12DG
+12DG
SCLDDC1
SDADDC1
+3_3VHD1
CEC
+1_8VHD3
+1_8VHD2
+1_8VHD3
HDM_PIXCLK
MCK_HDMI
GNDS2
GND
HDMI OUT
HDMI IN1
HDMI IN2
+5.0V
+12.0V
+3.3V
+5.0V
+1.8V
C8710
105Z
C8707
105Z
C8701
105Z
R8716
22
R8709
22
C8706
105Z
C8709
220/4
R8726
2.2K
R8727
2.2K
R8737
22x4
C8705
105Z
C8708
105Z
R8742
R8750
R8751
R8741
R8752
R8753
R8740
R8754
R8747
R8749
R8755
R8756
R8739
22
D8701
1SS355
R8324
4.7K
D8301
1SS226
R8325
47K
C8403
105Z
C8404
102J
R8407
22
R8406
22
R8404
22
R8403
22
R8405
22x4
C8407
102J
C8406
102J
C8405
105Z
C8330
105Z
C8332
105Z
C8461
105Z
Q8309
UM6K1N
R8338
4.7K
R8337
4.7K
L8404
BLM21PG221
C8419
102J
C8424
105Z
C8425
102J
C8426
105Z
C8427
102J
C8420
105Z
C8421
102J
C8422
105Z
C8402
22/4
C8401
22/4
R8408
22
R8402
22
R8401
22
R8416
22x4
R8425
22
R8426
22
R8424
22x4
R8409
22
L8506
BLM21PG221
R8511
33x4
R8512
33
C8530
102J
L8507
BLM21PG221
C8533
105Z
C8535
102J
C8536
102J
Q8603
UM6K1N
L8403
BLM21PG221
C8408
22/4
C8417
105Z
C8410
105Z
C8409
22/4
R8427
4.7K
C8416
102J
C8415
102J
C8414
105Z
C8418
22/4
C8413
102J
C8540105Z
C8538102J
C8539102J
C8548
105Z
C8551
22/4
C8554
105Z
C8552
105Z
C8553
102J
C8562
105Z
C8561
102J
C8560
105Z
R8526
33x4
C8559
102J
R8527
33x4
C8558
102J
R8525
33x4
R8524
10
C8556
102J
R8523
33x4
C8555
102J
R8522
33x4
C8532
105Z
C8531
102J
C8529
105Z
C8528
102J
C8527
102J
C8526
102J
C8524
105Z
C8525
102J
C8523
102J
C8522
102J
C8519
102J
C8521
102J
C8520
22/4
C8517 105Z
C8516
102J
C8518
22/4
R8738
47K
R8417
22x4
C8423
102J
R8418
22x4
R8423
22x4
R8333
1K
R8567
0
R8568
0
R8569
0
R8570
0
R8571
0
R8572
0
R8574
0
R8573
0
R
857
6
0
R8575
0
R8577
0
R8578
0
R8579
0
R8580
0
R8581
0
R8582
0
R8334
2.2K
R8335
2.2K
R8508
33
R8509
33
C8534 102J
R8633
1K
C8624
220/4
C8622
105Z
C8623
105Z
Q8602
XC6213B332MR
1
VIN
2
VSS
3
CE
4
NC
5
VOUT
C8591
105Z
R8729
Q8401
SII9030CTU-7
61
D13
62
D12
63
D11
64
D10
65
D9
66
IDCK
67
D8
68
D7
69
D6
70
D5
71
IOVCC
72
IOGND
73
CGND
74
CVCC18
75
D4
76
D3
77
D2
78
D1
79
D0
80
DE
81
ePAD
1
HSYNC
2
VSYNC
3
CGND
4
CVCC18
5
SPDIF
6
MCLK
7
SD3
8
SD2
9
SD1
10
SD0
11
WS
12
SCK
13
IOVCC
14
IOGND
15
CGND
16
CVCC18
17
INT
18
HPD
19
DSDA
20
DSCL
21
RSVDL
22
PGND1
23
PVCC1
24
EXT_SWING
25
AGND
26
TXC-
27
TXC+
28
AVCC
29
TX0-
30
TX0+
31
AGND
32
TX1-
33
TX1+
34
AVCC
35
TX2-
36
TX2+
37
AGND
38
PVCC2
39
PGND2
40
NC
41
CI2CA
42
RESET#
43
CSCL
44
CSDA
45
CVCC18
46
CGND
47
IOGND
48
IOVCC
49
D23
50
D22
51
D21
52
D20
53
D19
54
D18
55
D17
56
D16
57
D15
58
D14
59
CVCC18
60
CGND
HDMI Transmitter
Q8306
TC7SZ08FU
1
INA
2
INB
3
GND
4
OUTY
5
VCC
R8641
10K
R8638
10K
R8635
10K
R8636
10K
R8642
3.3K
R8643
3.3K
R8639
0
R8647
3.3K
C8681
104Z
D8601
1SS226
Q8606
BR24L02FV-W
1
A0
2
A1
3
A2
4
GND
5
SDA
6
SCL
7
WP
8
VCC
256*8 EEPROM
R8640
0
R8702
4.7K
R8734
2.2K
R8717
0
R8718
0
R8708
0
R8728
10Kx4
R8715
R8714
R8730
R8731
R8713
C8702
105Z
R8719
22
R8720
22
R8721
22
R8732
R8744
22
R8746
R8736
R8761
Q8604
UM6K1N
L8505
BLM21PG221
L8504
BLM21PG221
C8501
22/4
C8502
22/4
C8514
105Z
C8513
102J
C8515
102J
C8505
105Z
C8504
102J
R8528
33x4
C8592
100/4
R8502
33
R8503
33
Q8501
SII9033
37
PVCC0
38
AVCC
39
R0XC-
40
R0XC+
41
AGND
42
AVCC
43
R0X0-
44
R0X0+
45
AGND
46
AVCC
47
R0X1-
48
R0X1+
49
AGND
50
AVCC
51
R0X2-
52
R0X2+
53
AGND
54
TMDSPGND
55
PVCC1
56
RSVD_A
57
AVCC
58
R1XC-
59
R1XC+
60
AGND
61
AVCC
62
R1X0-
63
R1X0+
64
AGND
65
AVCC
66
R1X1-
67
R1X1+
68
AGND
69
AVCC
70
R1X2-
71
R1X2+
72
AGND
73
CGND
74
CVCC18
75
IOGND
76
IOVCC
77
MUTEOUT
78
SPDIF
79
CVCC18
80
CGND
81
SD3
82
SD2
83
SD1
84
SD0
85
WS
86
SCK
87
NC
88
MCLKOUT
89
IOVCC
90
IOGND
91
CGND
92
CVCC18
93
NC
94
AUDPVCC18
95
AUDPGND
96
XTALOUT
97
XTALIN
98
XTALVCC
99
REGVCC
100
NC
101
RSVDL
102
RESET#
103
SCDT
104
INT
105
CVCC18
106
CGND
107
CLK48B
108
IOGND
109
IOVCC
110
Q23
111
Q22
112
Q21
113
Q20
114
CVCC18
115
CGND
116
Q19
117
Q18
118
Q17
119
Q16
120
IOGND
121
ODCK
122
IOVCC
123
Q15
124
Q14
125
Q13
126
Q12
127
CGND
128
CVCC18
129
Q11
130
Q10
131
Q9
132
Q8
133
Q7
134
IOVCC
135
IOGND
136
Q6
137
Q5
138
CGND
139
CVCC18
140
Q4
141
Q3
142
Q2
143
Q1
144
Q0
145
ePAD
1
DE
2
HSYNC
3
VSYNC
4
IOGND
5
IOVCC
6
NC
7
NC
8
NC
9
EVNODD
10
DCLK
11
DR0
12
DL0
13
DR1
14
DL1
15
IOGND
16
IOVCC
17
DR2
18
DL2
19
DR3
20
DL3
21
CGND
22
VPP3318
23
CVCC18
24
CGND
25
IOGND
26
IOVCC
27
CSDA
28
CSCL
29
DSDA1
30
DSCL1
31
DSDA0
32
DSCL0
33
R1PWR5V
34
R0PWR5V
35
CVCC18
36
CGND
HDMI Receiver
C8511
105Z
R8704
4.7K
R8705
22
R8762
22
(P8704)
For Debug
1
2
3
4
5
6
7
8
9
P8702
FOR FLASH MICOM WRITER
8
7
6
5
4
3
2
1
C8703105Z
X8701
CSTCR5M00G53-B0
R8706
10K
R8707
10K
R8710
10K
R8711
2.2K
R8712
2.2K
R8733
2.2K
R8411
4.7k
R8413
4.7k
R8414
4.7k
R8415
4.7k
L8502
BLM21PG221
L8501
BLM21PG221
Q8591
BA33BCOFP
3
O
2
G
1
I
L8406
DLP2ADN900HL4L
1
2
3
4 5
6
7
8
(P8703)
2
4
6
8
10
12
14
16
18
20 19
17
15
13
11
9
7
5
3
1
Q8503
UM6K1N
R8535
10K
R8536
10K
R8539
0
R8546
3.3K
R8547
3.3K
C8581
104Z
D8501
1SS226
Q8506
BR24L02FV-W
1
A0
2
A1
3
A2
4
GND
5
SDA
6
SCL
7
WP
8
VCC
256*8 EEPROM
R8723
2.2K
R8722
2.2K
R8724
2.2K
R8725
2.2K
C8326
105Z
C8329
105Z
C8328
22/16
C8327
105Z
Q8305
NJM2860F3-05
3
BYP
2
GND
1
CONT
5
VIN
4
VO
R8323
10K
R8593
820
R8592
47K
C8587
104Z
Q8593
SI-8008TM
1
VIN
5
SS
3
GND
4
VADJ
2
SW
L8591
BLM21PG221SN1
C8586
223Z
D8591
CRS09
L8592
NCH-2541 470K
R8591
4.7K
R8501
33
Q8701
MPD70F3716GC-8EA
76
PDL5/FLMD1
77
PDL6/AD6
78
PDL7/AD7
79
PDL8/AD8
80
PDL9/AD9
81
PDL10/AD10
82
PDL11/AD11
83
PDL12/AD12
84
PDL13/AD13
85
PDL14/AD14
86
PDL15/AD15
87
PDH0/A16
88
PDH1/A17
89
P711/ANI11
90
P710/ANI10
91
P79/ANI9
92
P78/ANI8
93
P77/ANI7
94
P76/ANI6
95
P75/ANI5
96
P74/ANI4
97
P73/ANI3
98
P72/ANI2
99
P71/ANI1
100
P70/ANI0
1
AVREF0
2
AVSS0
3
P10/ANO0
4
P11/ANO1
5
AVREF1
6
PDH4/A20
7
PDH5/A21
8
FLMD0
9
VDD0
10
REGC
11
VSS0
12
X1
13
X2
14
RESET
15
XT1
16
XT2
17
P02/NMI
18
P04/INTP0
19
P04/INTP1
20
P05/INTP2/_
21
P06/INTP3
22
PP40/SDA01
23
P41/SCL01
24
P42
25
P30TXDA0
26
P31/RXDA0
27
P32/ASCKA0
28
P33
29
P34
30
P35
31
P36
32
P37
33
EVSS
34
EVDD
35
P38/SDA00
36
P39/SCL00
37
P50
38
P51
39
P52/DDI
40
P53/DDO
41
P54/DCK
42
P55/DMS
43
P90/SDA02
44
P91/SCL02
45
P92/A2
46
P93/A3
47
P94/A4
48
P95/A5
49
P96/A6
50
P97/SIB1
51
P98/SOB1
52
P99/SCKB1
53
P910/SIB3
54
P911/SOB3
55
P912/_SCKB3
56
P913/INTP4
57
P914/INTP5
58
P915/INTP6
59
PDH12/A18
60
PHD3/A19
61
PCM0/_WAIT
62
PCM1/CLKOUT
63
PCM2/_HLDAK
64
PCM3/_HLDRQ
65
PCT0/_WRO
66
PCT1/_WR1
67
PCT4/_RD
68
PCT6/ASTB
69
BVSS
70
BVDD
71
PDL0/AD0
72
PDL1/AD1
73
PDL2/AD2
74
PDL3/AD3
75
PDL4/AD4
C8704
4.7/50
C8537
105Z
C8550
22/4
L8508
BLM21PG221
X8501
28.332MHz
R8515
1M
R8518
100
R8519
100
R8520
100
C8546
105Z
C8545
102J
C8547
102J
C8544
105Z
R8517
4.7K
C8542
070D
C8543
070D
C8541
102J
R8516
33
L8509
BLM21PG221
C8549
102J
R8521
10K
C8589
22/4
C8698
102J
C8699
102J
P8501
23
Shield
21
1
D2+
2
D2 Shield
3
D2-
4
D1+
5
D1 Shield
6
D1-
7
D0+
8
D0 Shield
9
D0-
10
CK+
11
CK Shield
12
CK-
13
CERemote
14
NC
15
DDC CLK
16
DDC DATA
17
GND
18
+5V
19
HP DET
20
22
Shield
C8599
102J
P8302
1
D2+
2
D2 Shield
3
D2-
4
D1+
5
D1 Shield
6
D1-
7
D0+
8
D0 Shield
9
D0-
10
CK+
11
CK Shield
12
CK-
13
CERemote
14
NC
15
DDC CLK
16
DDC DATA
17
GND
18
+5V
19
HP DET
20
22
Shield
23
Shield
21
C8398
102J
C8399
102J
P8601
23
Shield
21
1
D2+
2
D2 Shield
3
D2-
4
D1+
5
D1 Shield
6
D1-
7
D0+
8
D0 Shield
9
D0-
10
CK+
11
CK Shield
12
CK-
13
CERemote
14
NC
15
DDC CLK
16
DDC DATA
17
GND
18
+5V
19
HP DET
20
22
Shield
R8541
10K
R8538
10K
Q8308
DTA144EE
R8534
10K
R8634
10K
Q8605
UM6K1N
R8646
3.3K
C8598
102J
R8645
1K
R8545
1K
R8748
R8757
100K
R8758
100K
P8003B
TO NADG-8996 SD-6:D1
18
17
16
15
14
13
12
11
10
9
8
7
6
5
4
3
2
1
L8405
BLM21PG221
R8452
1K
C8451
105Z
C8452
105Z
C8453
220/4
Q8404
XC6213B332MR
1
VIN
2
VSS
3
CE
4
NC
5
VOUT
D8461
1SS226
R8540
0
R8462
27K
C8585
470/16
+
C8588
470/16
+
JL8001B
1
2
3
4
R8341
100
C8412
105Z
C8411
102J
R8410
560
UM6K1N
Q8504
Q8510
DTA144EE
Q8505
UM6K1N
L8701
220M
Q8610
DTA144EE
R8422
22
L8407
DLP2ADN900HL4L
1
2
3
4 5
6
7
8
Q8592
BA18BCOFP
3
O
2
G
1
I
C8594
100/4
C8593
105Z
L8401
BLM21PG221
L8402
C8595
105Z
C8596
100/4
Q8595
BA18BCOFP
3
O
2
G
1
I
R8421
22x4
100D
R8543
3.3K
R8542
3.3K
R8513
33
L8517
BK1608LL241
R8514
47
NAVD-8824(1/2)
HDMI PC BOARD
U08
X8701
R8739-R8742
R8746-R8756
22
R8424
TO NADG-8996 SD-6:E1
R8712-8715
R8729-8732
R8736,R8761
22
MPU DATA
VIDEO DATA
T0 HDMI SECTION-2
MICRO PROCESSOR FOR HDMI
L8401,L8402
R0PWR5V
SD-11:H4
SPDIFOUT
<Note>
SD-x:XY is short for Shcematic Diagram-x and
each socket's location, X=A to H, Y=1 to 5.

Other manuals for Integra DTR-7.7

Related product manuals