EasyManua.ls Logo

Intel BOXD865GVHZ - Memory Configurations; Characteristics of Dual;Single Channel Configuration With;Without Dynamic Mode; Memory Channel Configuration

Intel BOXD865GVHZ
132 pages
Print Icon
To Next Page IconTo Next Page
To Next Page IconTo Next Page
To Previous Page IconTo Previous Page
To Previous Page IconTo Previous Page
Loading...
Product Description
23
1.6.1 Memory Configurations
The Intel 82865GV GMCH component provides two features for enhancing memory throughput:
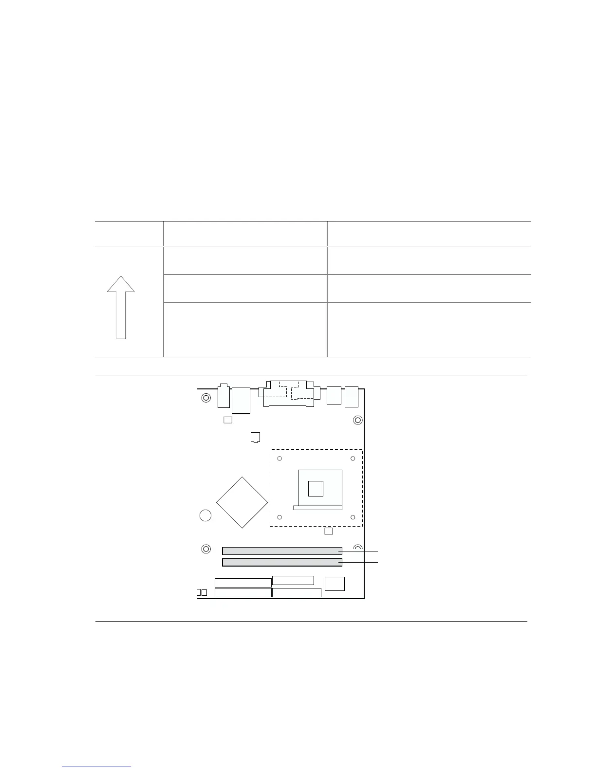
Dual Channel memory interface. The board has two memory channels, each with a single
DIMM socket, as shown in Figure 3
Dynamic Addressing Mode. Dynamic mode minimizes overhead by reducing memory
accesses
Table 6 summarizes the characteristics of Dual and Single Channel configurations with and
without the use of Dynamic Mode.
Table 6. Characteristics of Dual/Single Channel Configuration with/without Dynamic Mode
Throughput
Level
Configuration
Characteristics
Highest Dual Channel with Dynamic Mode DIMMs matched
(Example configuration shown in Figure 4)
Single Channel with Dynamic Mode Single DIMM
(Example configuration shown in Figure 5)
Lowest
Single Channel without Dynamic Mode DIMMs not matched
(Example configuration shown in Figure 6)
OM16404
Channel A
Channel B
Figure 3. Memory Channel Configuration

Table of Contents

Related product manuals