EasyManua.ls Logo

Intel BOXD865GVHZ - I;O Shield; I;O Shield Dimensions

Intel BOXD865GVHZ
132 pages
Print Icon
To Next Page IconTo Next Page
To Next Page IconTo Next Page
To Previous Page IconTo Previous Page
To Previous Page IconTo Previous Page
Loading...
Technical Reference
77
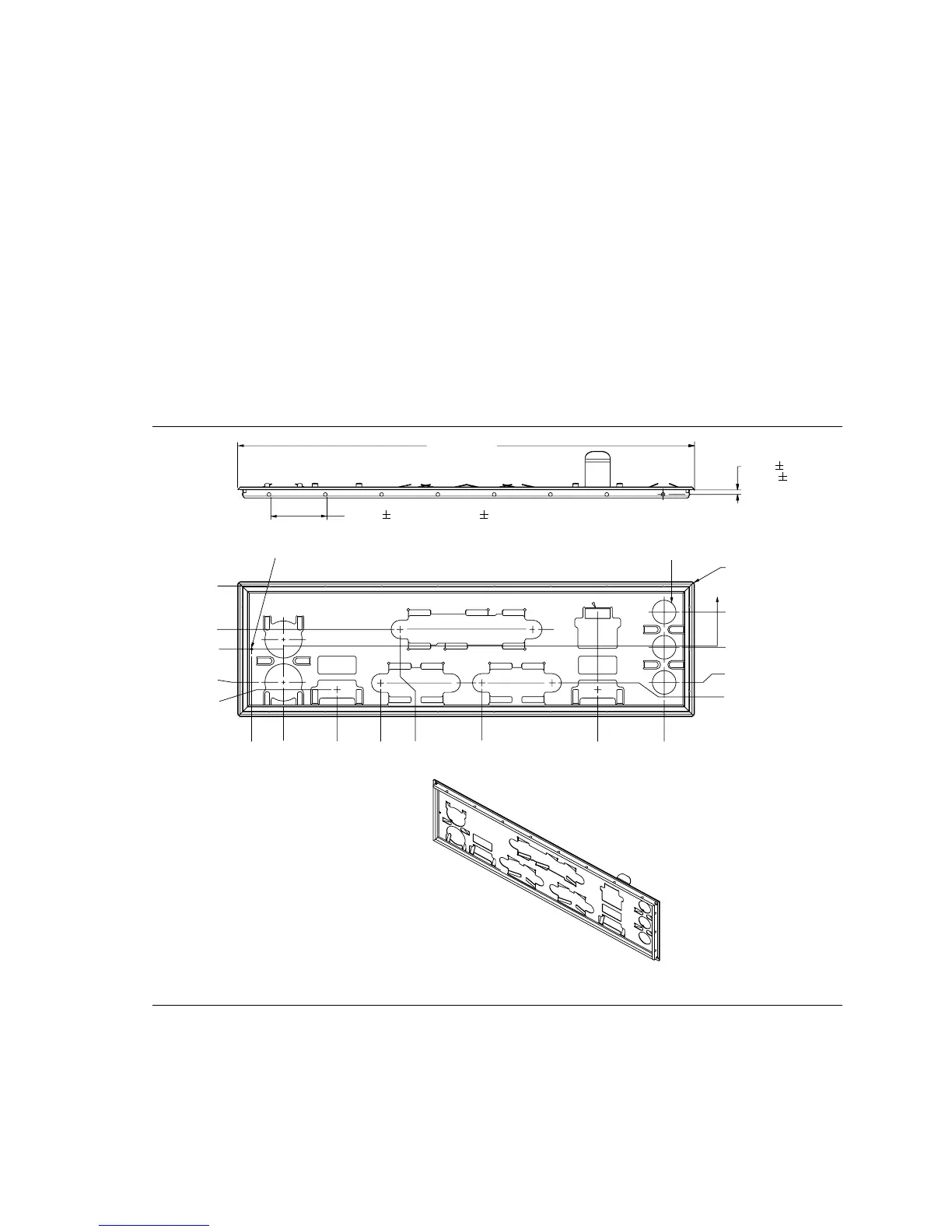
2.10.1 I/O Shield
The back panel I/O shield for the Desktop Board D865GVHZ must meet specific dimension and
material requirements. Systems based on this Desktop Board need the back panel I/O shield to
pass certification testing. Figure 23 shows the I/O shield. Dimensions are given in inches to a
tolerance of ±0.02 inches.
The figure also indicates the position of each cutout. Additional design considerations for I/O
shields relative to chassis requirements are described in the ATX specification. See Section 1.4 for
information about the ATX specification.
NOTE
The I/O shield drawings in this document are for reference only. An I/O shield compliant with the
ATX chassis specification 2.03 is available from Intel.
OM11487
0.063 0.005
[1.600 0.120]
8X R0.5 MIN
0.472
[12.000]
0.465
[11.810]
0.027
[0.690]
0.519
[13.190]
3x Dia 0.330 [8.380]
6.390
[162.300]
0.787 0.010 TYP [20 0.254]
3x Dia 0.039 [1.000]
0.884
[22.450]
0.276
[7.012]
0.465
[11.811]
0.567
[14.400]
0.000
[0.000]
0.000
[0.000]
1.807
[45.892]
2.081
[52.854]
3.219
[81.768]
4.840
[122.950]
5.771
[146.577]
A
Pictorial
View
0.447
[11.345]
1.195
[30.360]
REF
Figure 23. I/O Shield Dimensions

Table of Contents

Related product manuals