EasyManua.ls Logo

Jackson AVENGER HT-E - Specifications; Machine Dimensions and Connections

Jackson AVENGER HT-E
60 pages
Print Icon
To Next Page IconTo Next Page
To Next Page IconTo Next Page
To Previous Page IconTo Previous Page
To Previous Page IconTo Previous Page
Loading...
1
07610-004-04-18-R
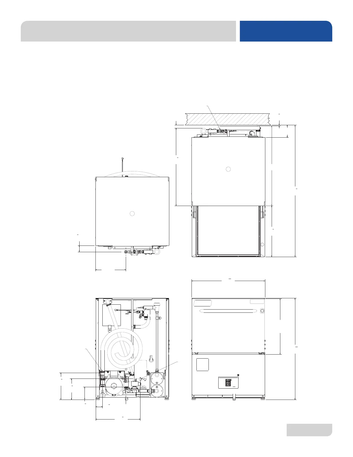
MACHINE DIMENSIONS
SPECIFICATIONS
16
3
4
[426 mm]
25
5
8
[650 mm]
33
5
16
[846 mm]
14
[356 mm]
Dish
Clearance
6
7
8
[175 mm]
14
5
8
[373 mm]
24
3
16
[615 mm]
LEGEND:
A- Water Inlet - 3/4" Male Garden Hose Thread (M-GHT)
(Connect to a true 1/2" ID water line)
*Note: Water inlet dimensions for units
supplied with a PRV will be *8 1/8, **10 1/2
B- Electrical Connection
C- Drain Connection - 6' coiled drain hose.
Shipped inside machine. Must be installed
no more than 24" AFF
All dimensions from floor can be increased
1" with adjustable feet supplied.
FRONT
Door Open
TOP
C
B
B
8
7
8
[225 mm]
2
1
4
[57 mm]
See note above
for water inlet
dimensions, for a
machine supplied
with a PRV
4
1
4
[106 mm]
10
[254 mm]
2
1
8
[53 mm]
26.3
[668.1]
1
4
[6 mm]
4
[102 mm]
43
1
4
[1100 mm]
1
[25 mm]
above the oor.

Other manuals for Jackson AVENGER HT-E

Related product manuals