EasyManua.ls Logo

Jandy Hi-E2 EHe - Page 12

Jandy Hi-E2 EHe
36 pages
Print Icon
To Next Page IconTo Next Page
To Next Page IconTo Next Page
To Previous Page IconTo Previous Page
To Previous Page IconTo Previous Page
Loading...
Page 10
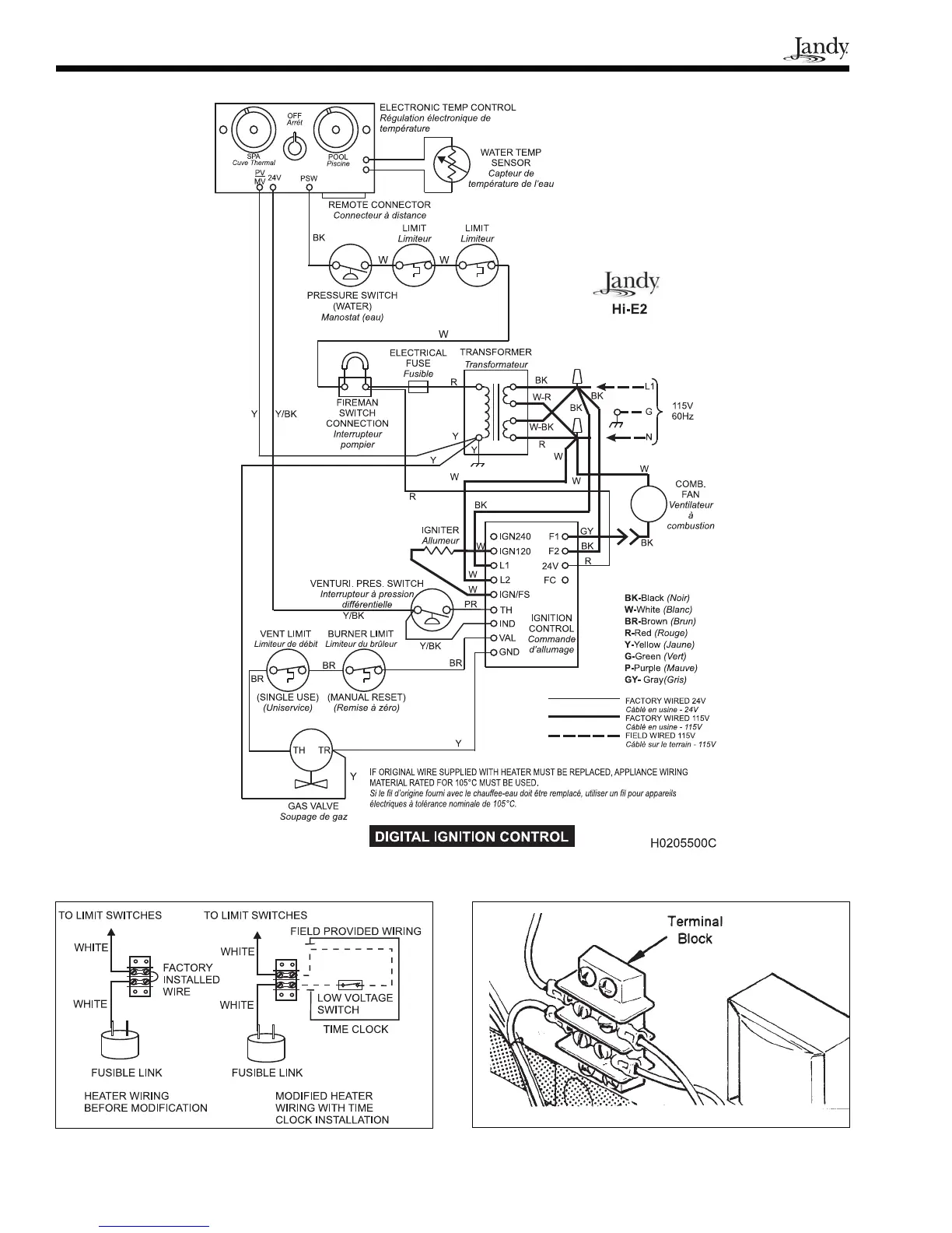
Figure 17. Typical time clock wiring.
Figure 16. Wiring diagram, Hi-E2 pool heater.
Figure 18. Terminal block for fi reman’s switch or remote
control wiring.

Table of Contents

Related product manuals