EasyManua.ls Logo

Jandy Hi-E2 EHe - Replacement Parts List

Jandy Hi-E2 EHe
36 pages
Print Icon
To Next Page IconTo Next Page
To Next Page IconTo Next Page
To Previous Page IconTo Previous Page
To Previous Page IconTo Previous Page
Loading...
Hi-E2
Page 31
Key Model ORDER
No. Description No. PART NO:
MAINTENANCE AND SERVICE COMPONENTS
Limestone Gravel All R0306200
(condensate neutralizer)
Combustion Air Filter All R0308000
JACKET ASSEMBLY
1 Base Panel 220 R0347103
350 R0347105
2 Frame Support Assembly 220 R0301503
350 R0301505
3 Back Panel 220 R0347203
350 R0347205
4 Left Side Panel All R0347300
5 Right Side Panel All R0347400
6 Temperature Control Panel Assy 220 R0347503
350 R0347505
7 Door 220 R0347603
350 R0347605
8 Inlet/Outlet Header Panel All R0347700
9 Right Top Side Panel All R0347800
W
34
1
/
16
"
5"
6
3
/
8
"
4
1
/
16
"
Vent Collar
13"
3
5
/
8
"
3
5
/
8
"
2
1
/
8
"
16
5
/
8
"
1
1
/
16
"
23
1
/
2
"
10"
21
5
/
16
"
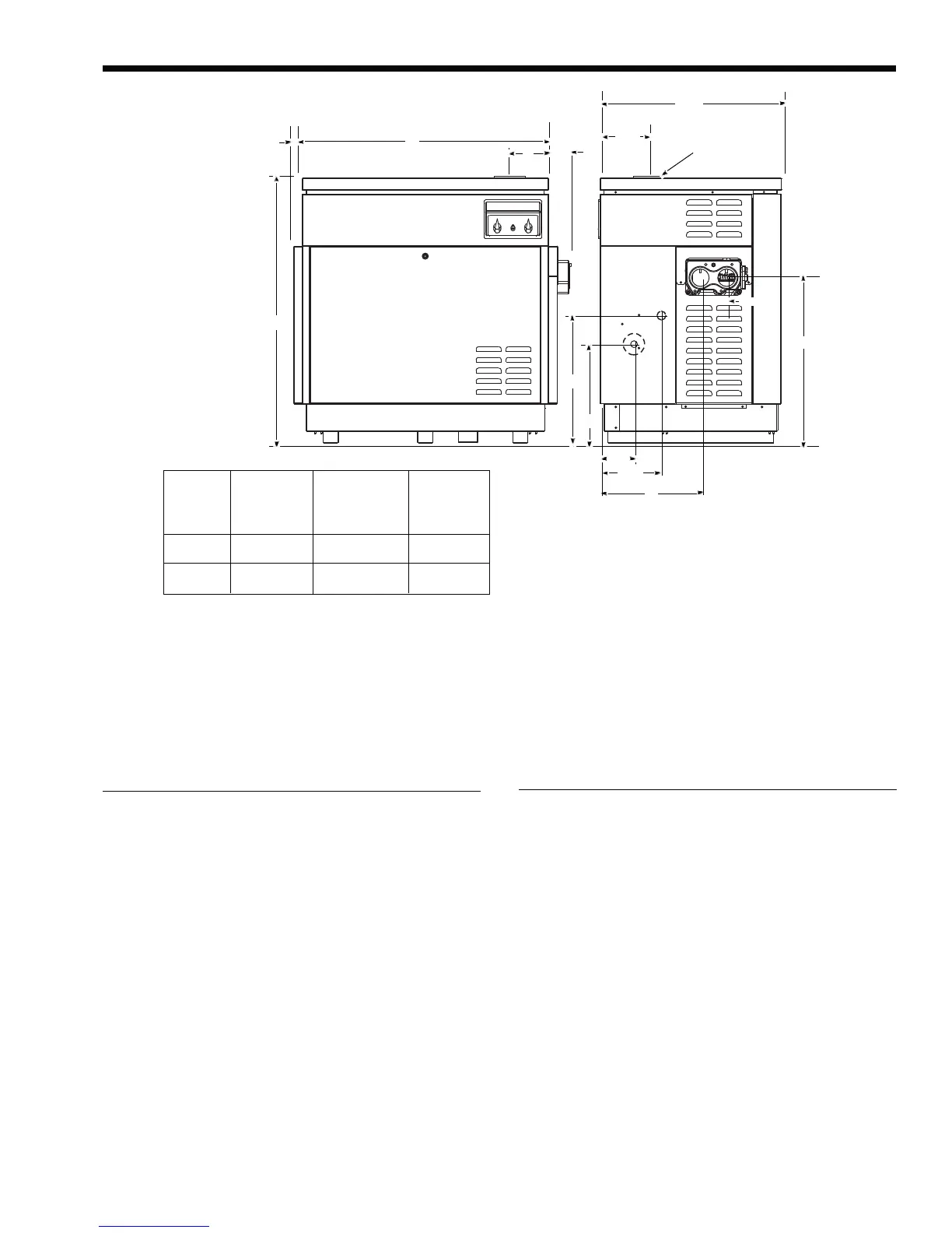
Model Width Input Shipping
No. W Weight
220 22
5
/
8
220,000 206 lbs.
350 31
7
/
8
350,000 252 lbs.
SECTION 6.
Replacement Parts
6A. Parts List
To order or purchase parts for the Jandy Hi-E2 pool/spa heater, contact your nearest dealer or distributor. If
they cannot supply you with what you need, contact the Customer Service Manager at Jandy.
10 Return Header Panel All R0347900
11 Front Kick Panel 250 R0348003
350 R0348005
12 Top Panel 220 R0348103
350 R0348105
Jacket Hardware Kit (Note 1) All R0302100
Internal Hardware Kit (Note 1) All R0302500
WATER SYSTEM
13 Heat Exchanger Assy, Complete 220 R0303803
350 R0303805
14 Heat Exchanger Tube Assy 220 R0304103
350 R0304105
15 Inlet/Outlet Header All R0303900
16 Return Header All R0304000
17 Gasket, Header All R0304300
18 By-Pass Valve Assembly All R0304400
19 Flow Control Cap All 10557400
20 By-Pass Valve Gasket All R0011400
Key Model ORDER
No. Description No. PART NO:

Table of Contents

Related product manuals