EasyManua.ls Logo

Jandy Lite 2 LG - Gas Supply and Piping; Electrical Wiring

Jandy Lite 2 LG
32 pages
Print Icon
To Next Page IconTo Next Page
To Next Page IconTo Next Page
To Previous Page IconTo Previous Page
To Previous Page IconTo Previous Page
Loading...
Page 9LITE 2 MODEL LG POOL AND SPA HEATER
2H. Electrical Wiring
2H-1. General Information
WARNING
Do not connect the heater to any external
source of electricity. The Jandy Lite 2 Model
LG heater has a built-in thermoelectric
generator. It provides a completely self-
contained electrical system. Any attempt to
make electrical connections to an external
source will damage the heater, and could be
dangerous.
Liners should be sealed at both top and bottom.
Drainage points should be provided at the bottom of
all vertical flue sections. Drain pipes should be:
1. No less than 25 mm inside diameter.
2. Made from acid condensate resistant material
(e.g., stainless steel).
3. Positioned so that pipe runs and discharge
points are not subject to the effects of frost
and flue gases cannot leak into the boiler
room.
2G. Gas Supply and Piping
If there is any doubt regarding the capacity of
any existing service pipes or the size required for new
service pipes then the advice of the gas supplier
should be requested. Installation pipework should be
fitted and tested for gas soundness in accordance
with Table 3.
Zodiac Pool Systems, Inc., recommends the gas
inlet pipe sizes listed in Table 6.
Provide and fit a gas service cock and union
external to the heater for servicing purposes (see
Figure 9).
Before operating the heater, test for gas sound-
ness in accordance with the publications listed in
Table 3. Do not use a naked flame. If the supply gas
pressure is less than required, check for undersized
pipe between the tank and the heater, a restrictive
fitting, or an empty tank.
Table 6. Pipe Size Requirements
Distance from Gas Meter
Model 0-15 m 15-30 m 30-60 m
Size mm mm mm
125 22 28 28
175 28 28 35
250 28 35 35
325 35 35 42
400 35 42 42
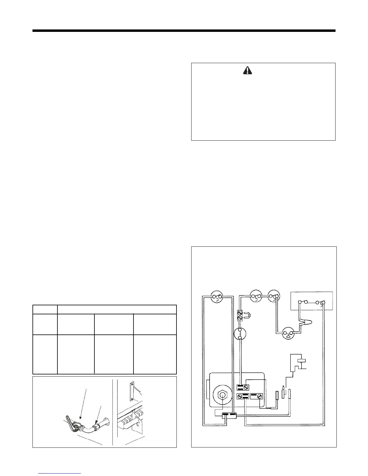
Figure 10 shows a typical wiring diagram for the
LG heater. The heater wiring diagram can also be
found on the inside of the heater.
2H-2. Auxiliary Time Clock Wiring
If a time clock is to be installed to control the
filter pump operation, we recommend (for the reason
of efficiency) the clock have its own low voltage
(Fireman's) switch to turn off the heater before
turning off the pump. The switch should shut off the
Figure 9. Fitting a gas service cock. Figure 10. Typical wiring diagram.
Gas Cock
Union
Lite 2 LG
Heater Wiring Diagram
If any of the original wire as supplied with
the heater must be replaced, appliance
wiring material rated for 105°C must be
used. Where marked
______
, appliance
wiring material rated for 200°C must be
used.
Manual Reset
Thermostat
High Limit
Switch
High Limit
Switch
Temperature
Control
On/Off
Pressure
Switch
Fireman
Switch
Connection
Fusible
Link
Piezo
Ignitor
Thermocouple
A=Black
B=White
C=Yellow
D=Red
CC
B
B
B
A
B
D
TH/PP
PP
TH
B
A
B
A
A
A

Table of Contents

Related product manuals