EasyManua.ls Logo

JLG 40H+6 - Wiring Diagram - 110 V Generator (Deutz)

JLG 40H+6
152 pages
Print Icon
To Next Page IconTo Next Page
To Next Page IconTo Next Page
To Previous Page IconTo Previous Page
To Previous Page IconTo Previous Page
Loading...
SECTION 3 - TROUBLESHOOTING
3-22 – JLG Lift – 3120240
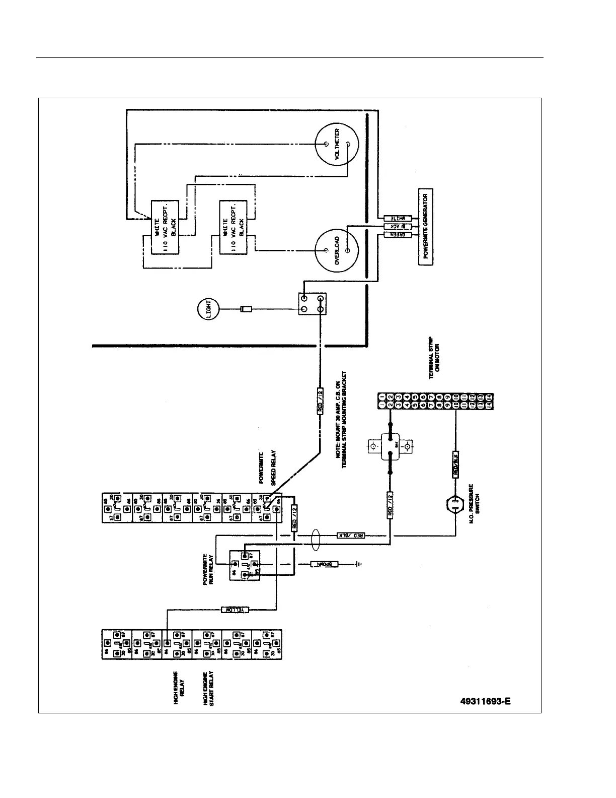
Figure 3-3. Wiring Diagram - 110v Generator (Deutz).

Table of Contents

Related product manuals