EasyManua.ls Logo

JLG 40H+6 - Engine W; Hydraulic Controls) (Sheet 2 of 2)

JLG 40H+6
152 pages
Print Icon
To Next Page IconTo Next Page
To Next Page IconTo Next Page
To Previous Page IconTo Previous Page
To Previous Page IconTo Previous Page
Loading...
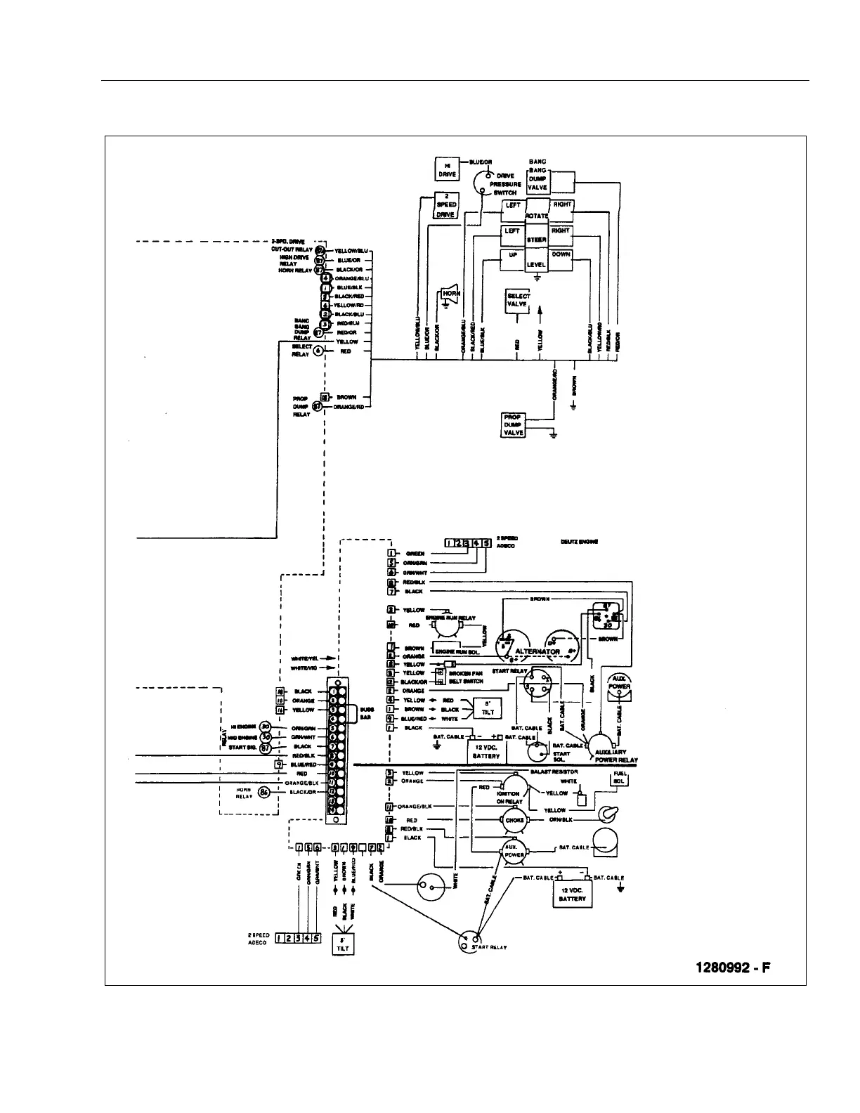
SECTION 3 - TROUBLESHOOTING
3120240 – JLG Lift – 3-29
Figure 3-10. Wiring Diagram - Standard (Deutz F2l511/f3l912 & Wisconsin
Engine W/ Hydraulic Controls) (Sheet 2 Of 2).

Table of Contents

Related product manuals