EasyManua.ls Logo

JLG 40H+6 - Engine W; Hydraulic Controls) (Sheet 1 of 2)

JLG 40H+6
152 pages
Print Icon
To Next Page IconTo Next Page
To Next Page IconTo Next Page
To Previous Page IconTo Previous Page
To Previous Page IconTo Previous Page
Loading...
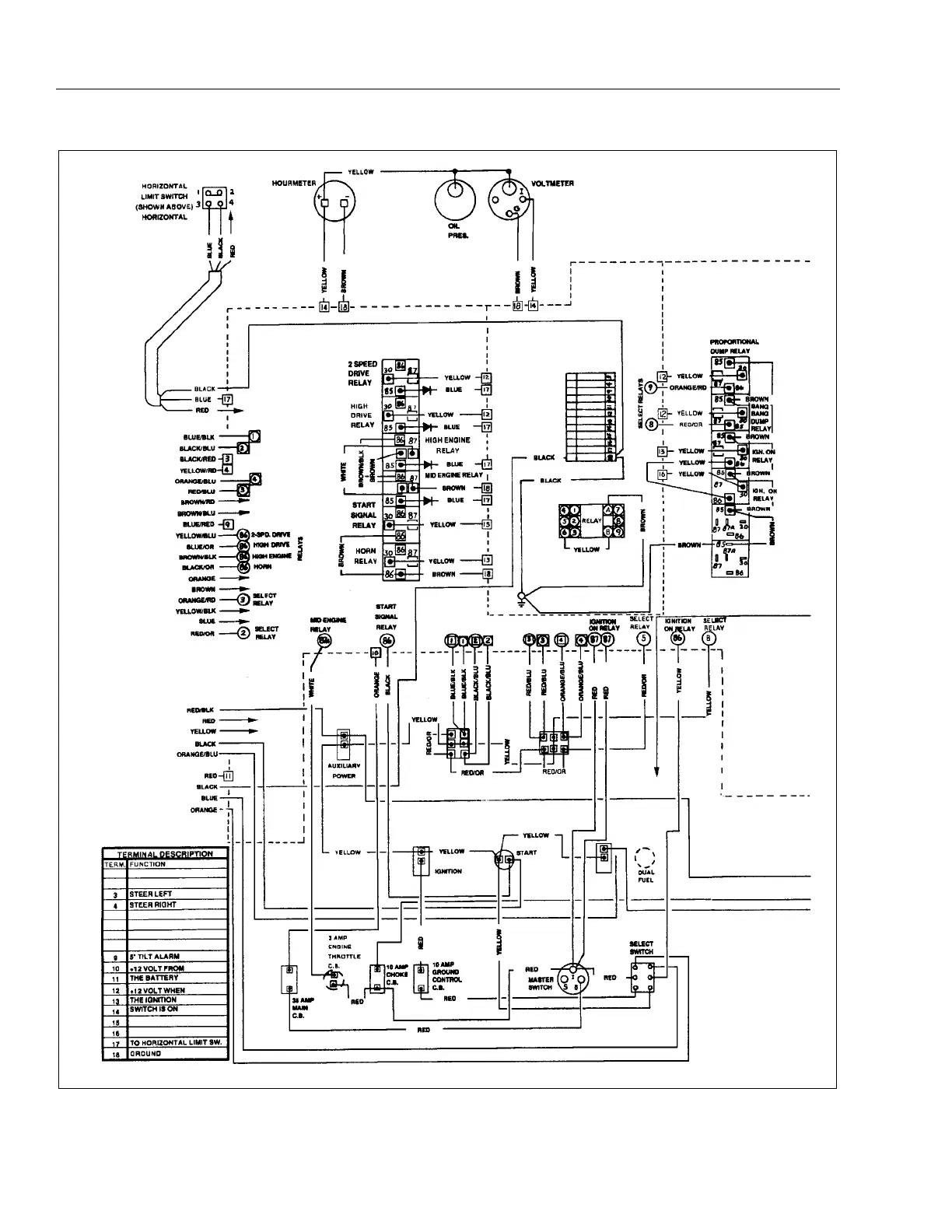
SECTION 3 - TROUBLESHOOTING
3-28 – JLG Lift – 3120240
Figure 3-9. Wiring Diagram - Standard (Deutz F2l511/f3l912 &
Engine W/ Hydraulic Controls) (Sheet 1 Of 2).

Table of Contents

Related product manuals