EasyManua.ls Logo

JRC JMA-9133-SA - B.6.4 Nke-1125 (Ac220 V)

JRC JMA-9133-SA
572 pages
To Next Page IconTo Next Page
To Next Page IconTo Next Page
To Previous Page IconTo Previous Page
To Previous Page IconTo Previous Page
Loading...
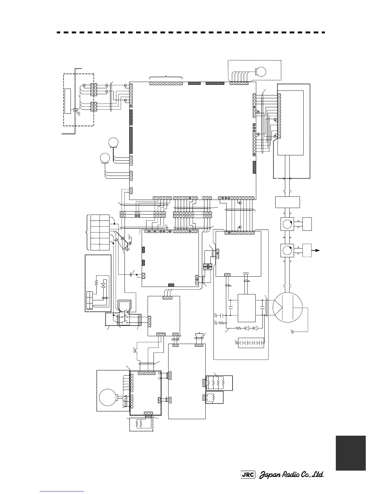
JMA-9100 Instruction Manual > B.DRAWINGS > B.6 Interconnection Diagram of Scanner Unit
B23
B
B.6.4 NKE-1125 (AC220V)
Fig B-20: Interconnection Diagram of NKE-1125 (AC220V)
NKE-1125PM (AC220V)
空中線機内接続図
14.VDE
12.VD_DC
15.VD
9.TGT
10.TGTE
13.TNL
11.TNI
1.BS3
2.BS2
3.BS1
4.TNC
5.+5V
6.-15V
7.+15V
RECEIVER UNIT NRG-162A
RECEIVER CIRCUIT CMA-866A
J101
BM15B-XASS-TE
T/R CONTROL CIRCUIT
CMC-1205R
1.MONI
2.GS
3.GSE
4.TGT
5.TGTE
6.TNL
7.-15V
8.TNI
9.+15V
10.GND
11.TRG2
1.BS3
2.BS2
3.BS1
4.TNC
5.MicPS
6.VDINE
7.VDIN
8.+5V
1.RXD
2.TXD
3.+5V
4.GND
1.SHORT
2.MA G I
3.X 1
4.X 2
5.T I
6.T IE
7.+15V
8.GND
9.NC
10.NC
11.NC
12.NC
1.HMCNT
2.+15V
3.GND
1.+15V
2.+12V
3.GND
4.GND
5.-15V
6.10V
7.10VE
8.+5V
1.MC T
2.MBK
3.TISTOP
4.G ND
5.MP S
6.MI ER
1.T IY
2.TIYE
3.BP
4.BPE
5.BZ
6.BZE
1.+12V
2.GN D
3.FAN_ERR1
1.HTER1
2.HVGATE1
3.TISTOP1
4.GND
5.CNT
6.+5V
7.+15V
8.STABY_REQ
9.NC
1.PW 1
2.PW 2
3.PW 3
4.+24V
5.GN D
1.BP+
2.BP-
3.BZ+
4.BZ-
5.TRIG+
6.TRIG-
7.MTR+
8.MTR-
9.MTRE
10.VD+
11.VD-
1.VD
2.VD E
3.MTR+
4.MTR-
J1118
J1103J1104 J1111
J1191
J1110
J1109
TB101
J8
J1106
J1112 J1113
IL -G- 1 2P
IL-G-8P
IL-G-11P
B6P-SHF
IL-G-9P
MSTBA2.5/11-G
IL-G-5P
B3P-SHF
IL-4P
B8P-SHF
IL-G-3P
MAG
POWER SUPPLY
CIRCUIT
CBD-1682A
1.+15V
2.+12V
3.+8V
4.GND
5.-15V
6.X1
7.X2
8.+5V
1.MC T
2.MBK
3.HS P
4.HT ER
5.TISTOP
6.C 2
7.GND
8.MP S
9.MI ER
2.1A
1.2A
2.1A
1.2A
2.1A
1.2A
1.MH
2.NC
3.MN
1.MH
2.NC
3.MN
1.X 1
2.X 2
No.2
No.1
2
1
4
35
6
FILTER
J1004
J1003
J 5J 4 J 3
J1001
J1002
J2102
J2101
J2103
ANTENNA
1.SHO RT
2.MAG I
3.X1
4.X2
5.TI
6.TIE
7.+15V
B9P-SHF
B8P-SHF
1586514-2
350209-1
IL-10P
350209-2
350209-1
350428-1
MODULATOR
CIRCUIT
CPA-264
MODULATOR UNIT
INT ERCONNECTIO N
CMB-404
D.L
①②
GRN
YEL
C201
0.01 U F 1K V
C202
0.22UF 200V
R202
2.7KΩ
1/2 W
C203
0.22UF
200V
T1
R201
150Ω
8W
H-7LPRD0122
CD202
CD201
MD-12N1MD-12N1
NJC3901M
A101 102
P3001
P1109
P1110
P1104
P1103
P1003
P1004
P1111
PULSE
TRANS
P3
P2103
DUMMY
A103
(W001)
(W003)
P1002
1.+12V
2.GN D
3.FAN _ERR2
J1114
IL-G-3P
1.+12V
2.C2
J1105
IL-G-2P
P1105
MODULATOR UNIT NMA-550
SCANNER UNIT INTERCONNECTION
CAX-11
(W106)
(W103)
(W104)
(W105)
ZCRD1255※
ZCRD1257
J1
IL-G-6P
J2
IL- G -4P
ZCRD1256※
A301
NJS6930
ZCRD1252※
ZCRD1258※
ZCRD1251※
ZCRD1253
(W004)
(W207)
ZCRD1263※
ZCRD1254※
1.φZ
2.φZE
3.φ A
4.φB
5.+12V
6.GND
J13
IL-6P
50/60W
RED
WHT
DISPLAY UNIT
P2101
P2102
8.GND
1.M+
2.M-
1586 514- 2
NJC4002
9.NC
10.NC
B02P-NV(LF)(SN)
S. G.
S.G.S.G.
8.G N D
1
2
3
4
5
6
7
8
9
10
1
2
3
4
5
6
7
8
9
10
WHT
BLK
P1118
BLU
WHT
BLK
BLU
P1301
J1301
(W006)
1
2
3
4
1
2
3
4
5
6
5
6
7
8
7
8
SE
YEL
BLK
BLU
WHT
RED
SHIELD
B102
ENCODER CHT-71A
P13
(W017)
FAN
RED
BLU
YEL
B201
B202
FAN
RED
BLU
YEL
P1113 P1114
RED
WHT
ZCRD1262
(W206)
12
BLK.T
21 3
3
BLK.T
(W107)
ZCRD1259※
J1303
P1303
P1302
J1302
(W201)
ZCRD1260※
W101
W101
1.PTI
2.PT E
3.LVR
4.PM S
5.GN D
6.TXI
7.T X E
8.NC
IL-8P
1.PTI
2.PTE
1.LVR
2.PMS
3.E
3.TXI
4.TXE
J82
J81
PM
P81
P82
WHT
BLK
BLU
RED
BLK
WHT
BRN
NJU-85
ZCRD1280※
(W018)
ZCRD1277※
X25kW,2ニット
S.G.
NJC3901M
H-7BFRD0002
H-7BFRD0002
M1568BS
V101
NJC9952
A104
CFR-229
MAG FILTER
CIRCUIT
S.G.
220pF×5
HEATER
CONTROL PART
CHG-216
(OPTION)
+48V
+48VG
U1
V1
W1
U1
W1
V1
DISPLAY UNIT
TB102
+48V
+48VG
(W301)
S101
S-32F
2
1
7
5
4
8
RED.T
RED.T
BLK.T
BLK.T
ZCRD1264※
(W302)
ZC RD1265※
+12V
ZCRD1261※
(W203)
SAFETY SWITCH
CSD-654
to CCB-6 55 J1941
ZCRD1537
(W308)
UVUTH
UVUTH
TH101
W401 7ZCRD1508※
TR101
100W)
TB105
WHT.T
WHT.T
WHT
BLK
BLU
ZCRD1454※
(W305)
P1212
BRAKE CIRCUIT
CFA-25 3
J1501
1.VERR
2.E
H-7EPRD0034
B201
J1505
PC1501
P1501
B2P-VH
P1505
P1201
RELAY FILTER
CIRCUIT
CSC-656
PC1201
IL-3P
1.HMCNT
2.+15V
3.G ND
P1211
J1212
1.VERR1
2.E
J1201
J1211
1.U1
3.V1
2.NC
4.NC
B4P-VH
IL-2P
1.VERR1
2.E
1.VERR
2.E
1.P
2.NC
3.N
1.P
2.N
1.BKH1
3.BK H2
1.B KS1
2.BKS2
1.+12V
2.NC
3.+12VE
P1941
J1941
J1903
P1903
J1905
P1905
J1912 P1912
BRAKE CONTROL CIRCUIT
CCB-655
P1502
J1921
P1921
J1911
P1911
to TB102
RED
BLK
IL-2P
B2PS-VH
S3B-XH-A
1-350210-0
1-350209-0
1-480700-0
ZC RD1537※
(W308)
ZCRD1536※
(W307)
ZCRD1452
(W303)
WC1
ZCRD1538※
(W309)
ZCRD1539※
(W310)
CBP-203
H-7BDRD0050
2.NC
4.NC
1.S1
2.S2
3.S3
4.S4
5.S5
6.S6
J1502
J1503
3.M2
1.M1
5.M3
P1503
MOTOR
MOTOR
B101
BRAKE CIRCUIT B
CFA-260
BRAKE CIRCUIT A
CFA-259
R1
R2
R3
R4
R1
120Ω
30W
330Ω
30W
×4
×1
2.NC
3.MV2
1.MU2
2.NC
4.NC
5.NC
6.G ND
B6P-VH
(W304)
ZCRD1314※
R1
R2
P1504
1.R1
3.R2
J1504
B3P-VH
2.NC
P1202
1.MU2
3.MV2
J1202
2.GND
B3P-NV
1.2kΩ
30W
×2
AC220V
MOTOR DRIVER
CBD-2000
C.G.
WHT
RED
RED

Table of Contents

Other manuals for JRC JMA-9133-SA

Related product manuals