EasyManua.ls Logo

Keyscan CA8500B - Figure 43 - Terminate Floor Wiring EC1500 B

Default Icon
142 pages
Print Icon
To Next Page IconTo Next Page
To Next Page IconTo Next Page
To Previous Page IconTo Previous Page
To Previous Page IconTo Previous Page
Loading...
Keyscan Inc. Technical Guide (PC109x - 07.15)
62
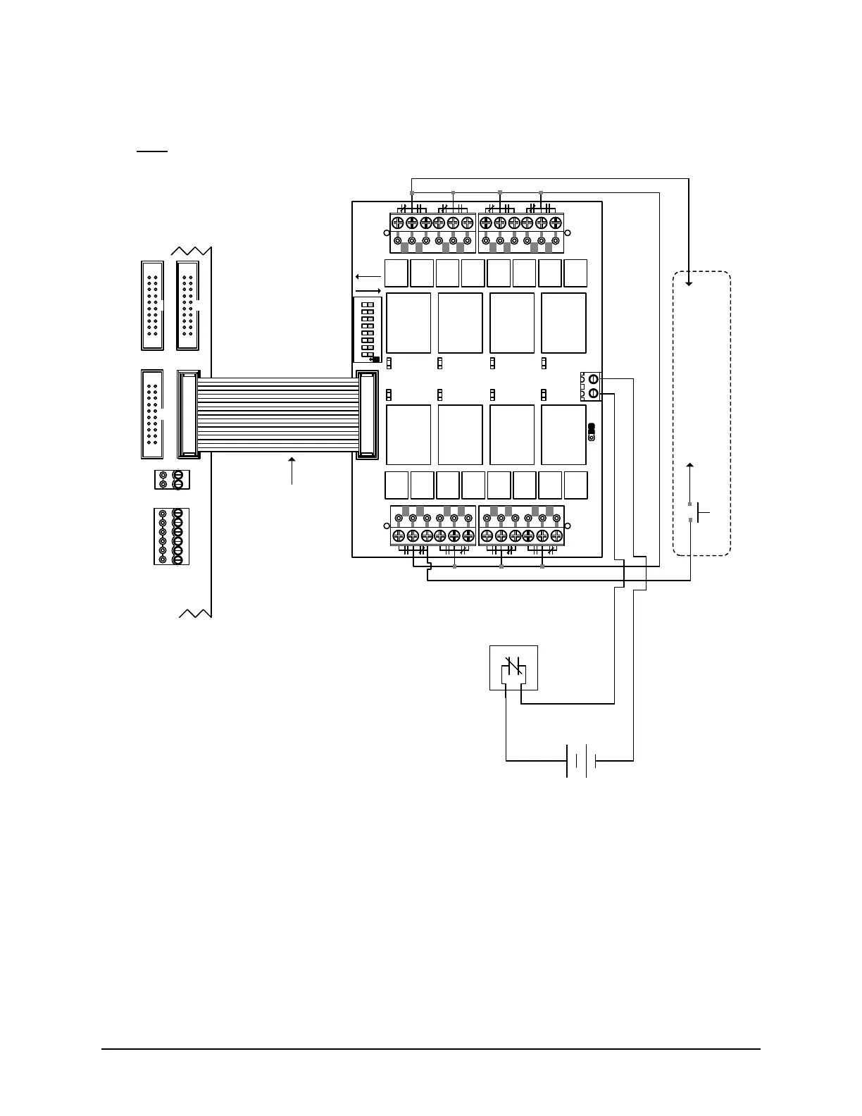
Figure 43 Terminate Floor Wiring EC1500B
OCB-8
Current 230 mA
Relays Form C contacts
5 A / 30 VDC
10 A / 24 VAC
KI-00134E-10-14
+
-
OCB-8 ribbon cable
connects to CONTROL 1
(Floors 1 to 8)
connects to
floor call
button
connects to
common on
elevator
control
circuit
elevator
button
EC 1000 Control 1 OCB-8 Floor Outputs 1 8
EC 1000 Control 2 OCB-8 Floor Outputs 9 16* (optional)
EC 1000 Control 3 OCB-8 Floor outputs 17 24* (optional)
EC 1000 Control 4 OCB-8 Floor Outputs 25 32* (optional)
EC 1000 Control 5 OCB-8 Floor Outputs 33 40* (optional)
* OCB-8s must be purchased separately.
Ensure all elevator hardware complies with all fire code
regulations.
AUX 12 V or
ACU 12 V
on DPS-15
Elevator Board
Cut View
CONTROL
2
CONTROL
5
RS-232 (COM4)
CTS
DTR
DCD
RD
TD
GND
TAMPER (TB3)
SWITCH
+
-
CONTROL
4
S1
TB1
J1
OUTPUT
CONTROL
BOARD
K1
K2
K3 K4
K5K6K7K8
LE D ON =
RELAY
ENERGIZ ED
O
N
1 2 3 4 5 6 7 8
ACU
EXT
12V
GND
H1
TB2
TB3
TB4
OCB8
PC1102
RELAY
REV.
NORMAL
KEYSCAN
INC.
Floor
Output
1
(DIP
Switch 1)
Floor
Output
2
(DIP
Switch 2)
Floor
Output
3
(DIP
Switch 3)
Floor
Output
4
(DIP
Switch 4)
Floor
Output
5
(DIP
Switch 5)
Floor
Output
6
(DIP
Switch 6)
Floor
Output
7
(DIP
Switch 7)
Floor
Output
8
(DIP
Switch 8)
Relay
Power
Fire Panel
trips on alarm
N.C.
Relay Rev/Normal
DIP Switch 1 Floor Output 1
DIP Switch 2 Floor Output 2
DIP Switch 3 Floor Output 3
DIP Switch 4 Floor Output 4
DIP Switch 5 Floor Output 5
DIP Switch 6 Floor Output 6
DIP Switch 7 Floor Output 7
DIP Switch 8 Floor Output 8
Set DIP switches on Reverse
red stripe
Set jumper on J1 for EXT

Table of Contents

Other manuals for Keyscan CA8500B

Related product manuals