EasyManua.ls Logo

Kingsman MDV30 - Locating Your Appliance

Default Icon
47 pages
Print Icon
To Next Page IconTo Next Page
To Next Page IconTo Next Page
To Previous Page IconTo Previous Page
To Previous Page IconTo Previous Page
Loading...
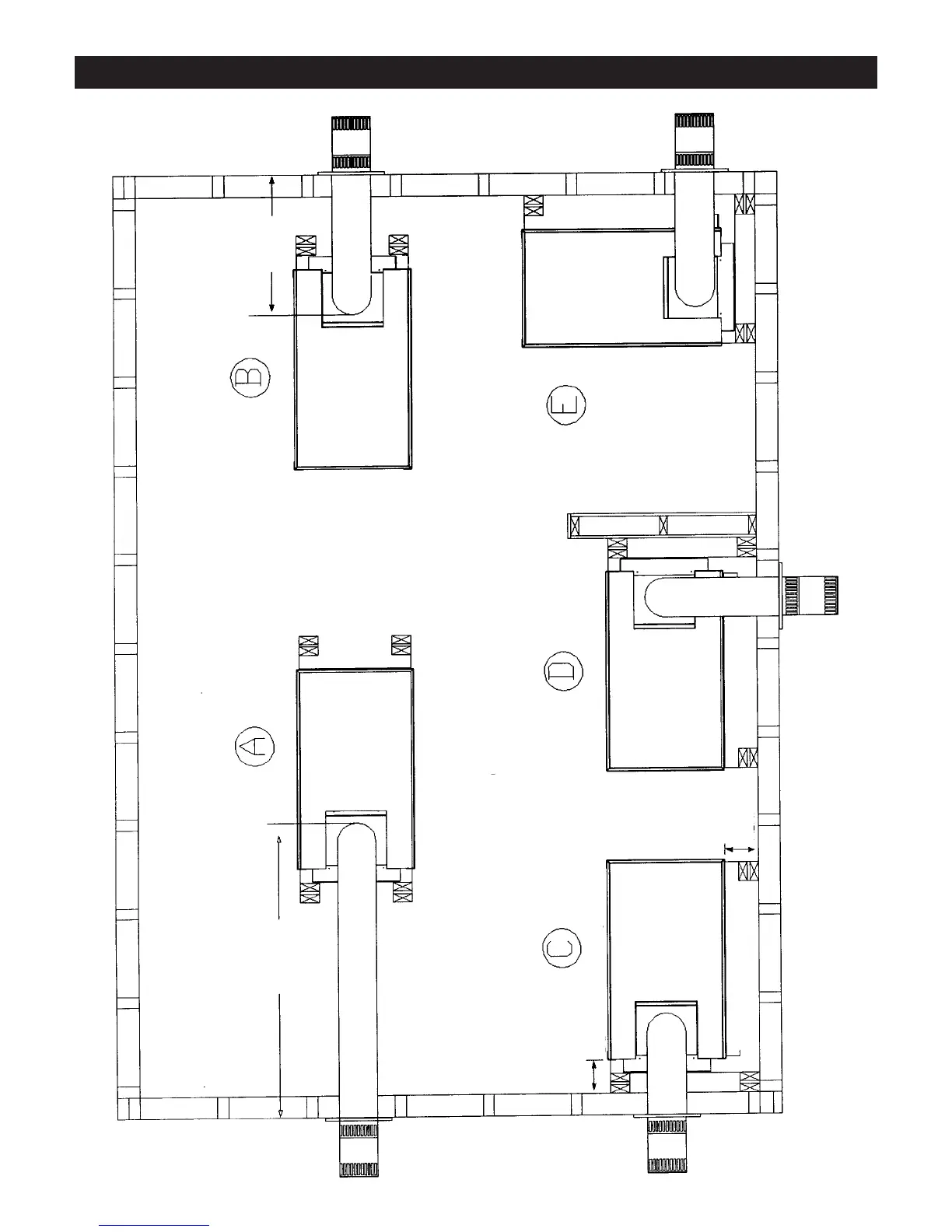
TOP VIEW
PENINSULA
RIGHT CORNER
TOP VIEW
SEE THRU TOP
VIEW
20'-0"
6.0"
MIN.
MIN.
6.0"
ALL UNITS CAN BE VENTED VERTICAL
MAX. Horizontal Run
With Required Vertical Run
LEFT CORNER-
TOP VIEW
LEFT CORNER
TOP VIEW
MAX.
36.0"
Horizontal Run
With Min. Vertical
Run
RIGHT BURNER SYSTEM
LEFT BURNER SYSTEM
LEFT BURNER SYSTEM
LEFT BURNER SYSTEM
RIGHT BURNER SYSTEM
RIGHT BURNER SYSTEM
LEFT BURNER SYSTEM
3
Locating your Appliance

Related product manuals