EasyManua.ls Logo

Kingsman MDV30 - See through Framing & Facing Requirements

Default Icon
47 pages
Print Icon
To Next Page IconTo Next Page
To Next Page IconTo Next Page
To Previous Page IconTo Previous Page
To Previous Page IconTo Previous Page
Loading...
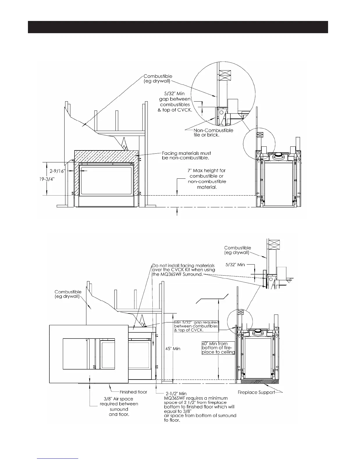
Note: When CVCK is used, a CVCK Kit must be installed on Both sides of the unit.
MDV31 with MQ36SWF Surround
See Through - FRAMING & FACING REQUIREMENTS
MDV31 with CVCK (Clean View Circulating Kit)
10

Related product manuals