EasyManua.ls Logo

Kollmorgen S700

Kollmorgen S700
216 pages
Go to English
To Next Page IconTo Next Page
To Next Page IconTo Next Page
To Previous Page IconTo Previous Page
To Previous Page IconTo Previous Page
Loading...
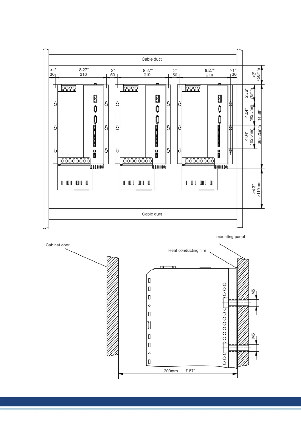
S700 Safety Guide | 6 Appendix
6.1.2.4 Mounting S748 with cold plate
Material: six M5 hexagon socket screws to ISO 4762, tool required : 4 mm Allen key.
202 Kollmorgen | September 2015

Table of Contents

Other manuals for Kollmorgen S700

Related product manuals