EasyManua.ls Logo

Kollmorgen SERVOSTAR 300

Kollmorgen SERVOSTAR 300
88 pages
To Next Page IconTo Next Page
To Next Page IconTo Next Page
To Previous Page IconTo Previous Page
To Previous Page IconTo Previous Page
Loading...
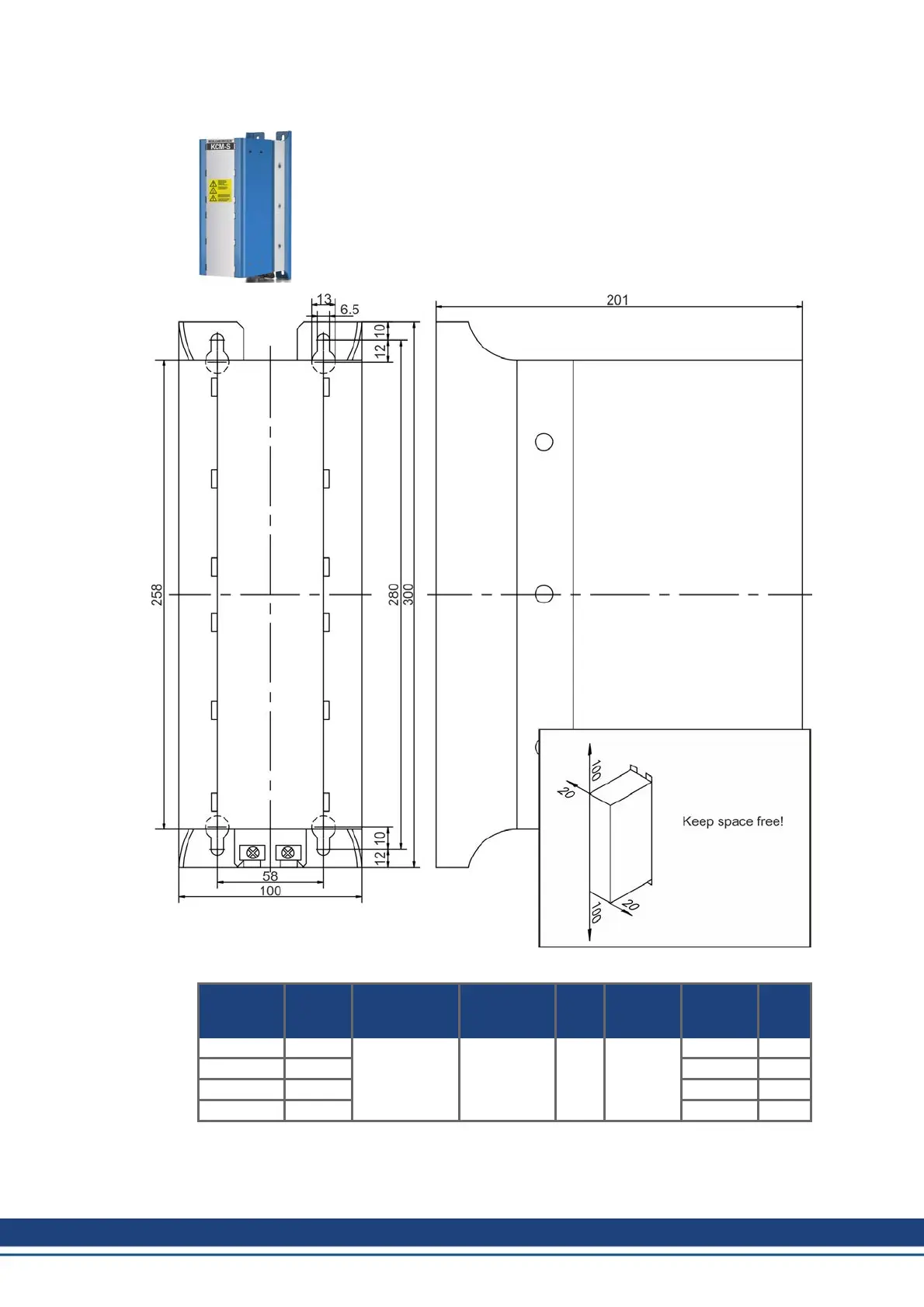
Accessories Europe | 9 Capacitor Modules
9.5 KCM Module
Observe the safety instructions p. 38 and in the instruction manual
of the servo amplifier.
Permissible assembly type: Vertical, ground connections at the bottom.
Other assembly positions are not permitted. Observe the required free space
to next device. Ensure there is unobstructed convection for cooling pur-
poses.
Technical Data
Type
Storage
Capacity
[Ws]
Rated supply
voltage
[V=]
Peak supply
voltage
[V=]
Power
[kW]
Protection
Class
Inception
voltage
[V=]
Weight
[kg]
KCM-S200 1600
max 850 VDC
max 950VDC
(30s in 6min)
18 IP20
calculated 6.9
KCM-P200 2000 470 VDC 6.9
KCM-E200 2000 - 4.1
KCM-E400 4000 - 6.2
40 Kollmorgen | December 2014

Table of Contents

Other manuals for Kollmorgen SERVOSTAR 300

Related product manuals