EasyManua.ls Logo

KZ CONNECT - GFCI Protection

Default Icon
101 pages
Print Icon
To Next Page IconTo Next Page
To Next Page IconTo Next Page
To Previous Page IconTo Previous Page
To Previous Page IconTo Previous Page
Loading...
70
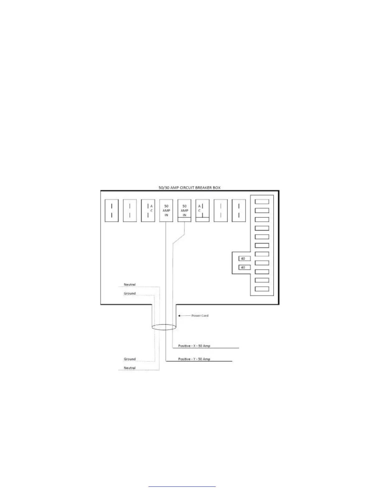
Actually, these two positive wires added together are 240-volt AC
service, yet serve two separate banks as the external sticker
indicates. A 50 amp main breaker will distribute current to separate
banks, verifying 240 volts are present. There are no 240 volt
appliances in this coach.
If use of a “reducing adapter or pigtail is needed because 50 amp
four prong service is not available, several things must be
remembered.
1. A “reducing adapter prevents you from using 50 amp service as
designed, permitting only 30 amps to enter.
2. Should you choose to plug your camper power cord into a
building receptacle, BE SURE IT DOES NOT have (2) two
positive wires which will be 240 volt A.C. power.
GFCI Protection
Each coach has a GFCI, Ground Fault Circuit Interrupter,
protection receptacle installed into the circuitry. In the event of a
PDF created with pdfFactory trial version www.pdffactory.com

Table of Contents

Related product manuals