EasyManua.ls Logo

LEGRAND DMX3 1600 - Raccordements Pour la Version Fixe

LEGRAND DMX3 1600
104 pages
Go to English
Print Icon
To Next Page IconTo Next Page
To Next Page IconTo Next Page
To Previous Page IconTo Previous Page
To Previous Page IconTo Previous Page
Loading...
28
DMX
3
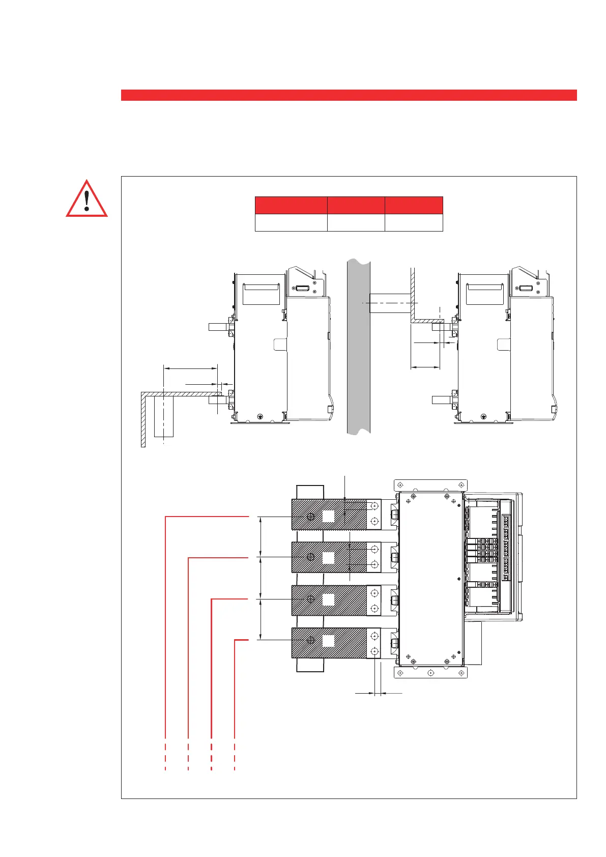
13. Raccordements pour la version fixe
L3
L2
L1
N
707070
25
ø11
15
11mm
"X"max (mm)
11mm
"X"max
(mm)
Le support de
barres doit être
constitué d’un
matériau isolant
et dimensionné
en fonction
des barres
pour ne pas
compromettre
les performances
en conditions de
court-circuit
Icc (kA) 42 50
“X” max (mm) 350 300

Related product manuals