EasyManua.ls Logo

Leisure UNITY 2017 - Safety

Leisure UNITY 2017
130 pages
Print Icon
To Next Page IconTo Next Page
To Next Page IconTo Next Page
To Previous Page IconTo Previous Page
To Previous Page IconTo Previous Page
Loading...
Unity Motorhome
14
Introduction
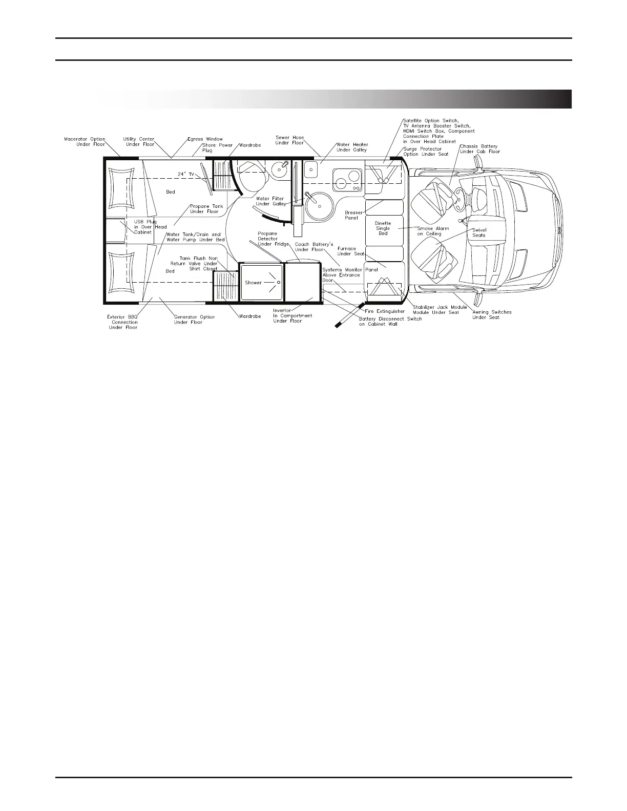
U24TB Floor Plan

Table of Contents