EasyManua.ls Logo

Leisure Unity - Page 18

Leisure Unity
128 pages
Print Icon
To Next Page IconTo Next Page
To Next Page IconTo Next Page
To Previous Page IconTo Previous Page
To Previous Page IconTo Previous Page
Loading...
Unity Motorhome
1
Introduction
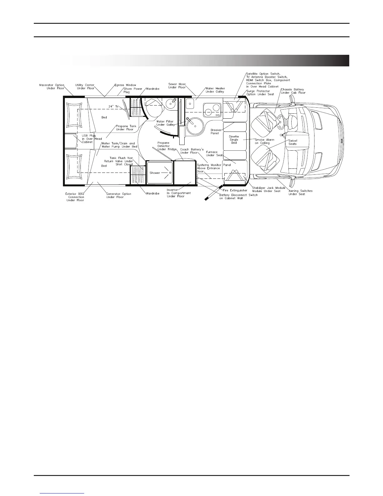
2 loor lan

Table of Contents

Related product manuals