EasyManua.ls Logo

Lenze E82MV152_4B - Page 205

Lenze E82MV152_4B
270 pages
Print Icon
To Next Page IconTo Next Page
To Next Page IconTo Next Page
To Previous Page IconTo Previous Page
To Previous Page IconTo Previous Page
Loading...
Appendix
Signal flow charts − Standard−I/O
14−4
L
EDB82MV752 EN 5.2
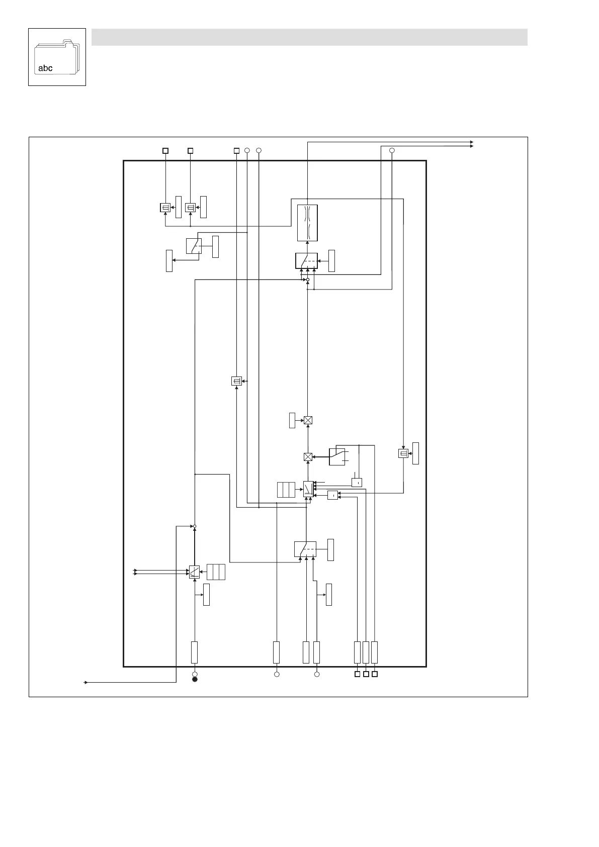
14.3.2 Process controller and setpoint processing (PCTRL1)
PCTRL1
DCTRL1-QSP DCTRL1-CINH
C0412/3
PCTRL1-NADD
C0105
C0220
C0221
+
C0181
PCTRL1-SET2
C0049
Link between main
and additional setpoint
PCTRL1-RFG1
2
0
C0412/5
PCTRL1-ACT
C0412/4
PCTRL1-SET1
1
PCTRL1-SET3
C0145
C0071
C0070
C0072
1
>
C0410/18
PCTRL1-I-OFF
C0410/21
PCTRL1-STOP
C0410/19
PCTRL1-OFF
STOP
Imax,
Auto-DCB,
LU, OU
1
>
0
1
CINH, DCB
C0074
C0184
RESET
+
0
2
1
C0238
C0011
-C0011
PCTRL1-NOUT
PCTRL1-OUT
PCTRL1-QMIN
PCTRL1-NMIN
C0010
PCTRL1-ACT
C0017
PCTRL1-SET=ACT
PCTRL1-SET
NSET1-NOUT
C0138
C0239
MCTRL1
2
0,1
C0238
C0051
+
2
1
PCTRL1-SET3
8200vec519
Fig. 14−3 Signal flow in the process controller and setpoint processing

Table of Contents

Related product manuals