EasyManua.ls Logo

Lenze EMB9352-E - Unités de Freinage Avec Résistance de Freinage Commune

Lenze EMB9352-E
Print Icon
To Next Page IconTo Next Page
To Next Page IconTo Next Page
To Previous Page IconTo Previous Page
To Previous Page IconTo Previous Page
Loading...
Installation électrique
Connexion en parallèle
Unités de freinage avec résistance de freinage commune
6
139
EDBMB935X DE/EN/FR 11.0
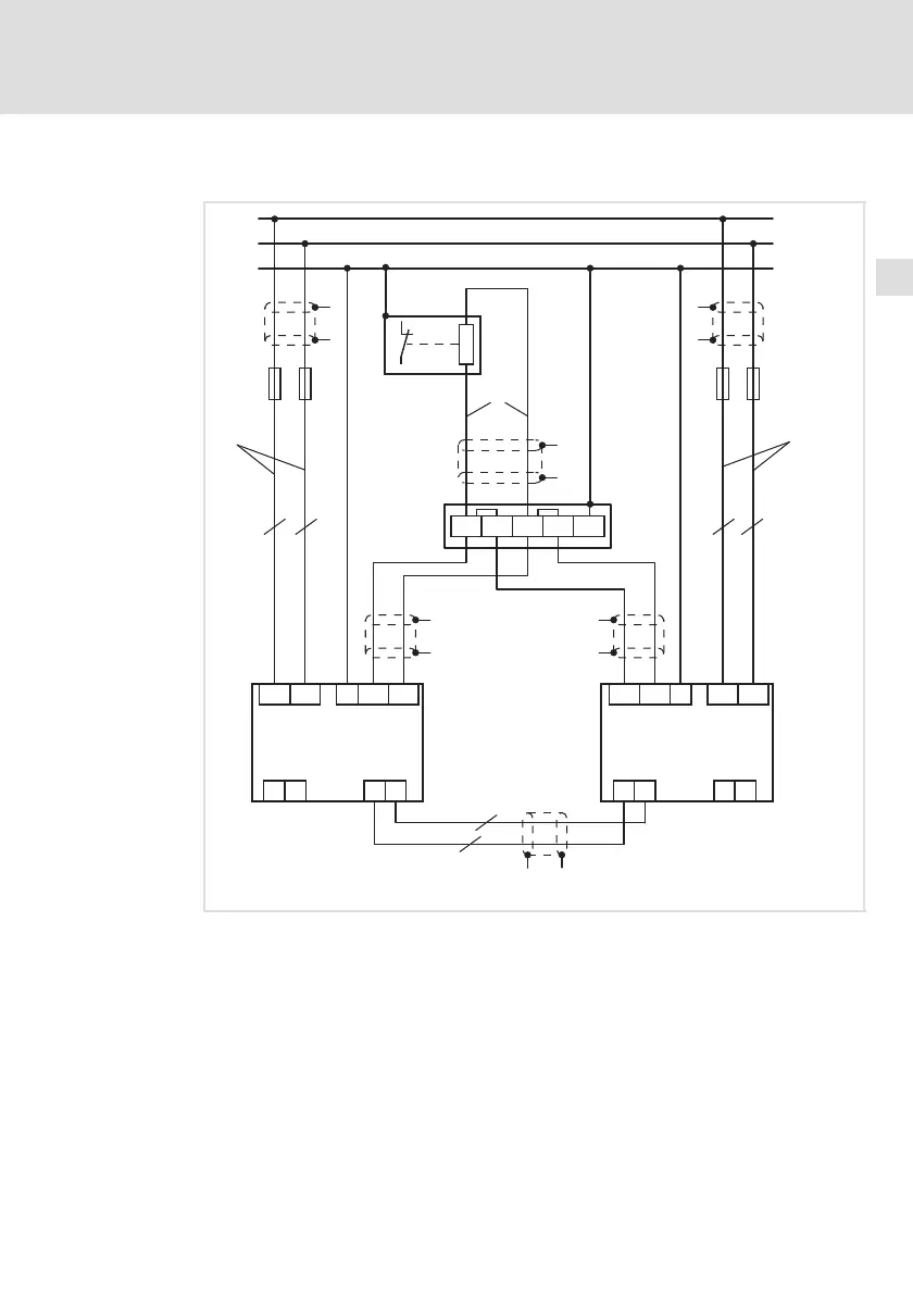
6.7.2 Unités de freinage avec résistance de freinage commune
Maste
r
+UG
-UG
E1
9352
Z1
E2 A1 A2
PE
RB1
RB2
+UG
-UG
PE
F1-F2
Slave
RB1
RB2
E1
9352
Z2
E2 A1 A2
PE
+UG
-UG
F3-F4
Z3
RB1 RB1 RB2 RB2
"
"
"
"
X1
PE
"
"
"
"
"
"
"
"
£
1m, 4mm
2
£
1m, 4mm
2
£
2m
£
2m
£
1m, 4mm
2
£
1m, 4mm
2
0
0
1
JRB
9350br_013
Fig. 11 Connexion en parallèle de 2 hacheurs de freinage à une résistance de freinage
Z1 Hacheur de freinage 1 = maître
Z2 Hacheur de freinage 2 = esclave
Z3 Résistance de freinage
F1 ... F4 Fusibles du bus CC
X1 Bornier
JRB Contact thermique à intégrer dans le système de surveillance de la
température
Différence de longueur entre les 4 câbles : £ 0,05 m
Longueur du câble entre l’unité de freinage et la résistance de freinage :
£ 8 m

Table of Contents

Related product manuals