EasyManua.ls Logo

LMF Clima LCM - Page 81

Default Icon
Print Icon
To Previous Page IconTo Previous Page
To Previous Page IconTo Previous Page
Loading...
firmware 0.06 Rev.03 E/ E
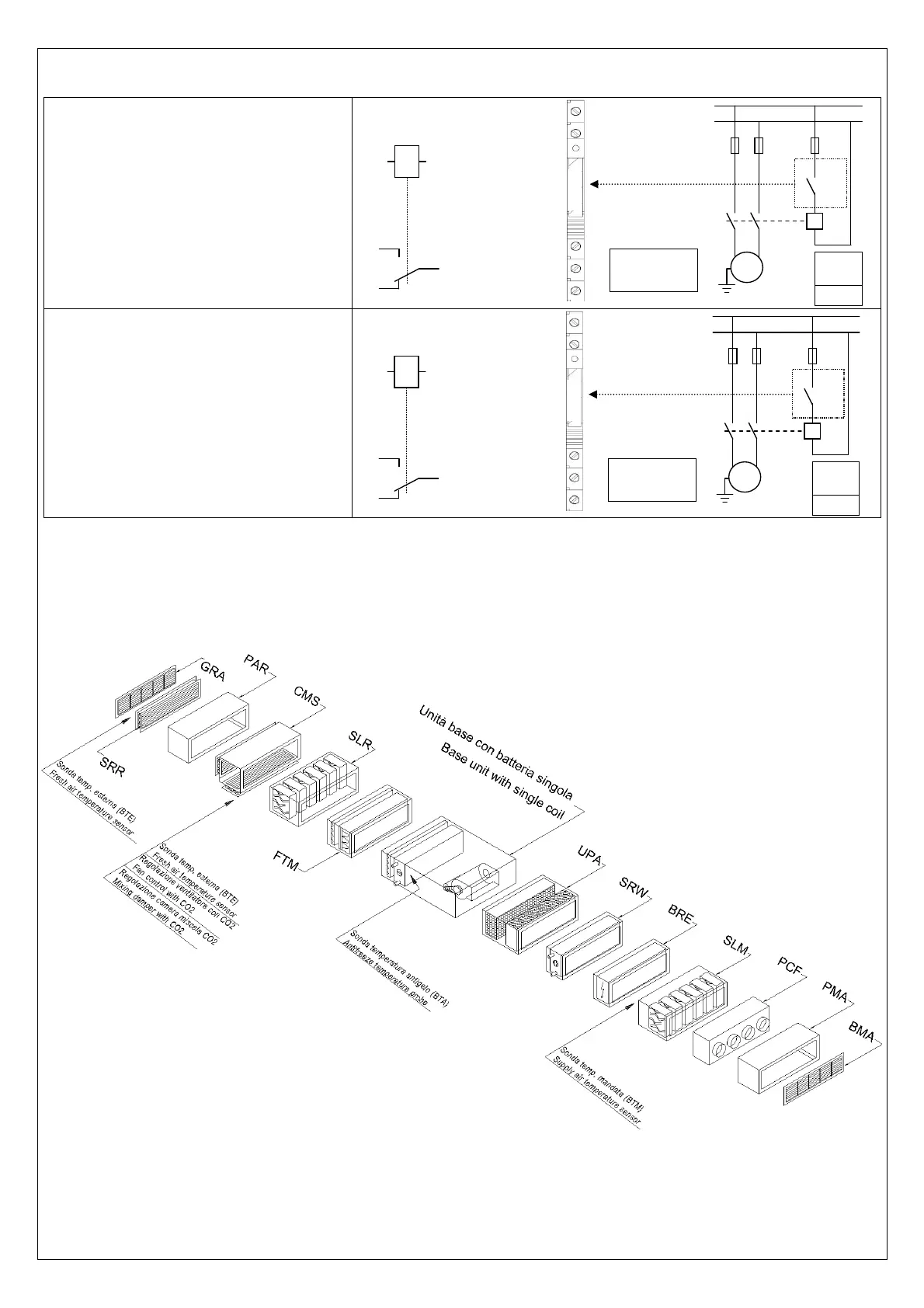
RELE-RELAY
Relè pompa fredda o promiscua
Relay pump cold or change-over
Pompe relais froid ou promiscuité
Relay kalt pumpe oder promiskuitiv
Relais pompe froideoumixte
Max Current
6A(AC1 230V)
1A(AC15 230V)
RELAY
KAPF
12
11
14
A2
A1
Aperto-Open
Comune-Common
Chiuso-Close
12
11
14
A2
A1
KAPF
FUSE
KAPF
KM
11
14
KM
L1
N
PUMP
FUSE
M
1~
KM
Contattore
Contactor
Non fornito
not supplied
Relè pompa calda
Relay pump hot
Pompe relais hot
Relay heiß pumpe
Reais pompe chaude
Max Current
6A(AC1 230V)
1A(AC15 230V)
RELAY
KAPC
12
11
14
A2
A1
Aperto-Open
Comune-Common
Chiuso-Close
12
11
14
A2
A1
KAPC
FUSE
KAPC
KM
11
14
KM
L1
N
PUMP
FUSE
M
1
~
KM
Contattore
Contactor
Non fornito
not supplied

Table of Contents

Related product manuals