EasyManua.ls Logo

LSIS XBC-DN40SU - Point Relay Output Module

LSIS XBC-DN40SU
384 pages
Print Icon
To Next Page IconTo Next Page
To Next Page IconTo Next Page
To Previous Page IconTo Previous Page
To Previous Page IconTo Previous Page
Loading...
Chapter 7 Input/Output Specifications
7-62
7.5.3 16 point relay output module
Model
Specification
Relay output module
XBE-RY16A
Output point
16 point
Insulation method
Relay insulation
Rated load voltage/ current
DC24V 2A (Resistive load) / AC220V 2A (COS = 1), 5A/COM
Min. load voltage/current
DC5V / 1
Max. load voltage/current
AC250V, DC125V
Off leakage current
0.1 (AC220V, 60 )
Max. On/Off frequency
3,600 times/hr
Surge absorber
None
Service
life
Mechanical
20 millions times or more
Electrical
Rated load voltage / current 100,000 times or more
AC200V / 1.5A, AC240V / 1A (COS = 0.7) 100,000 times or more
AC200V / 1A, AC240V / 0.5A (COS = 0.35) 100,000 times or more
DC24V / 1A, DC100V / 0.1A (L / R = 7 ) 100,000 times or more
Response
time
Off On
10 or less
On Off
12 or less
Common method
8 point / COM
Proper cable size
Stranded cable 0.3~0.75 (External diameter 2.8 or less)
Current consumption
420 (when all point On)
Operation indicator
Output On, LED On
External connection method
9 point terminal block connector x 2 ea
Weight
130g
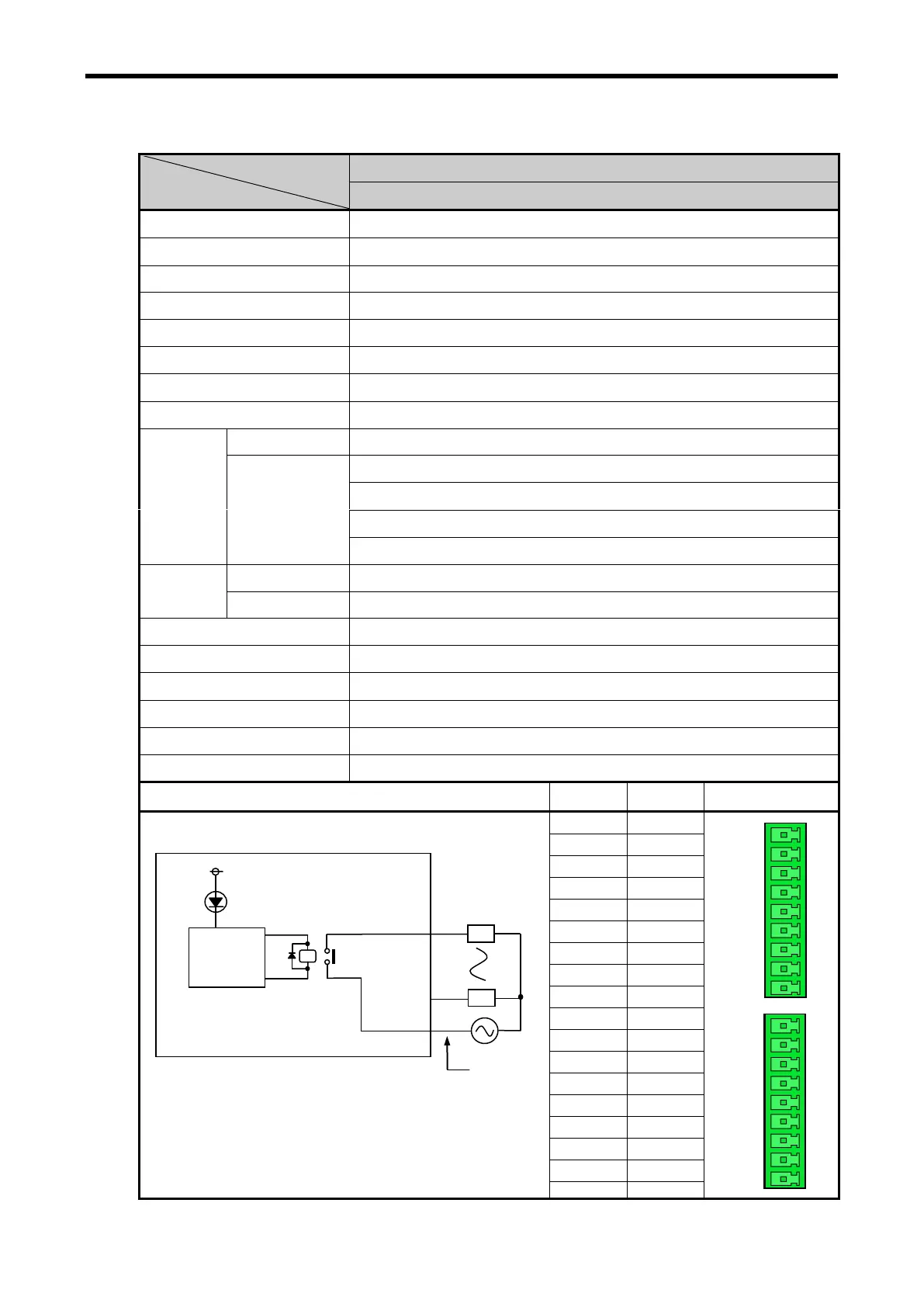
Circuit configuration
No.
Contact
Type
TB1
0
TB2
1
TB3
2
TB4
3
TB5
4
TB6
5
TB7
6
TB8
7
TB9
COM
TB1
8
TB2
9
TB3
A
TB4
B
TB5
C
TB6
D
TB7
E
TB8
F
TB9
COM
RY
Internal
circuit
L
Terminal block no.
L
E
D
TB1
TB9
L
TB8
TB1
TB2
TB3
TB4
TB5
TB6
TB7
TB8
TB9
TB1
TB2
TB3
TB4
TB5
TB6
TB7
TB8
TB9
DC5V
www.behaotomasyon.com
www.behaotomasyon.com

Table of Contents

Related product manuals