EasyManua.ls Logo

LSIS XBC-DN40SU - Appendix 2 Dimension

LSIS XBC-DN40SU
384 pages
Print Icon
To Next Page IconTo Next Page
To Next Page IconTo Next Page
To Previous Page IconTo Previous Page
To Previous Page IconTo Previous Page
Loading...
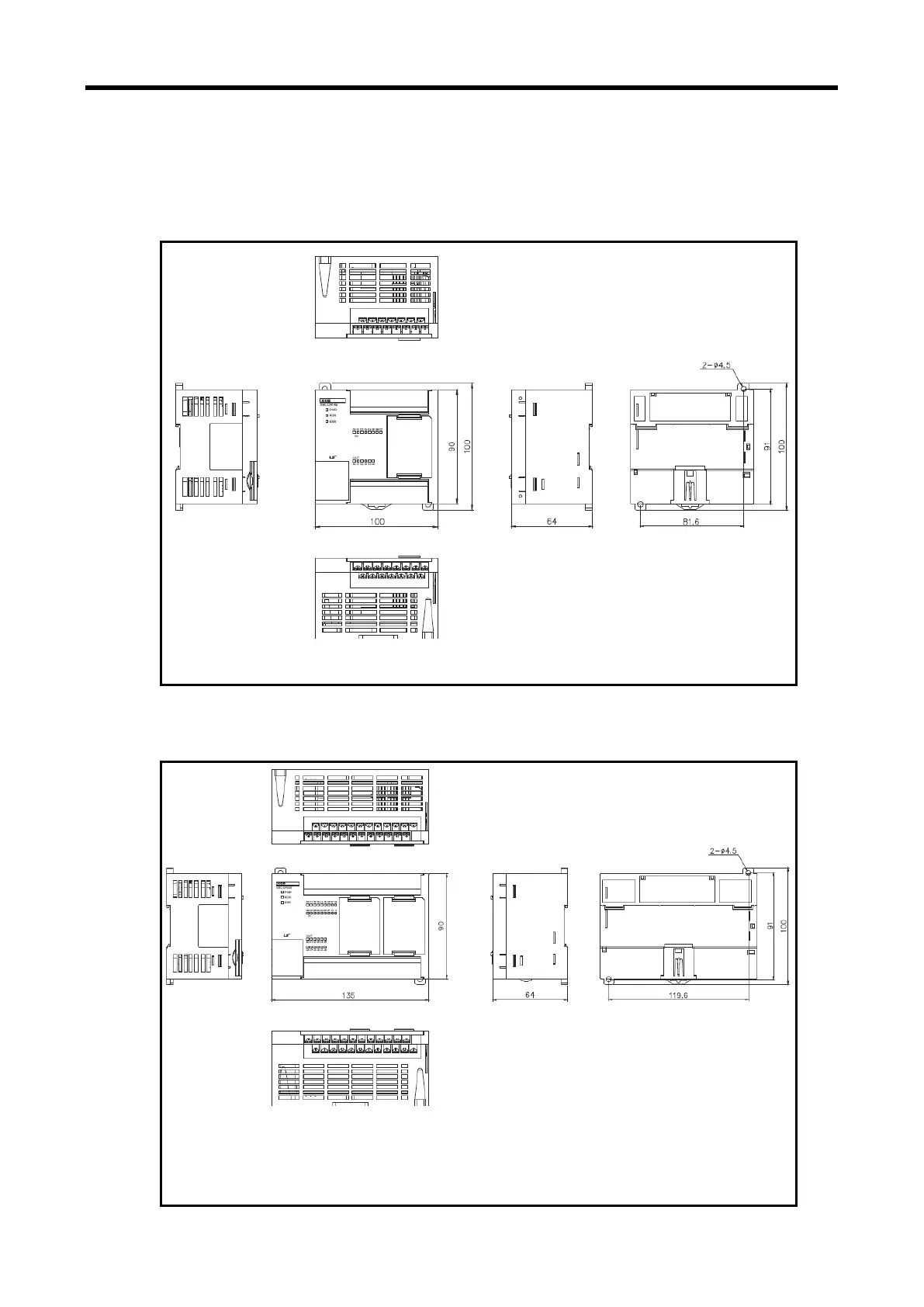
Appendix 2 Dimension
App.2
Appendix 2 Dimension (Unit: mm)
(1) Economy type main unit (E type)
-. XBC-DR10/14E, XBC-DN10/14E, XBC-DP10/14E
-. XBC-DR20/30E, XBC-DN20/30E, XBC-DP20/30E
www.behaotomasyon.com
www.behaotomasyon.com

Table of Contents

Related product manuals