EasyManua.ls Logo

Manitowoc Grove 5540F - Page 317

Manitowoc Grove 5540F
412 pages
Print Icon
To Next Page IconTo Next Page
To Next Page IconTo Next Page
To Previous Page IconTo Previous Page
To Previous Page IconTo Previous Page
Loading...
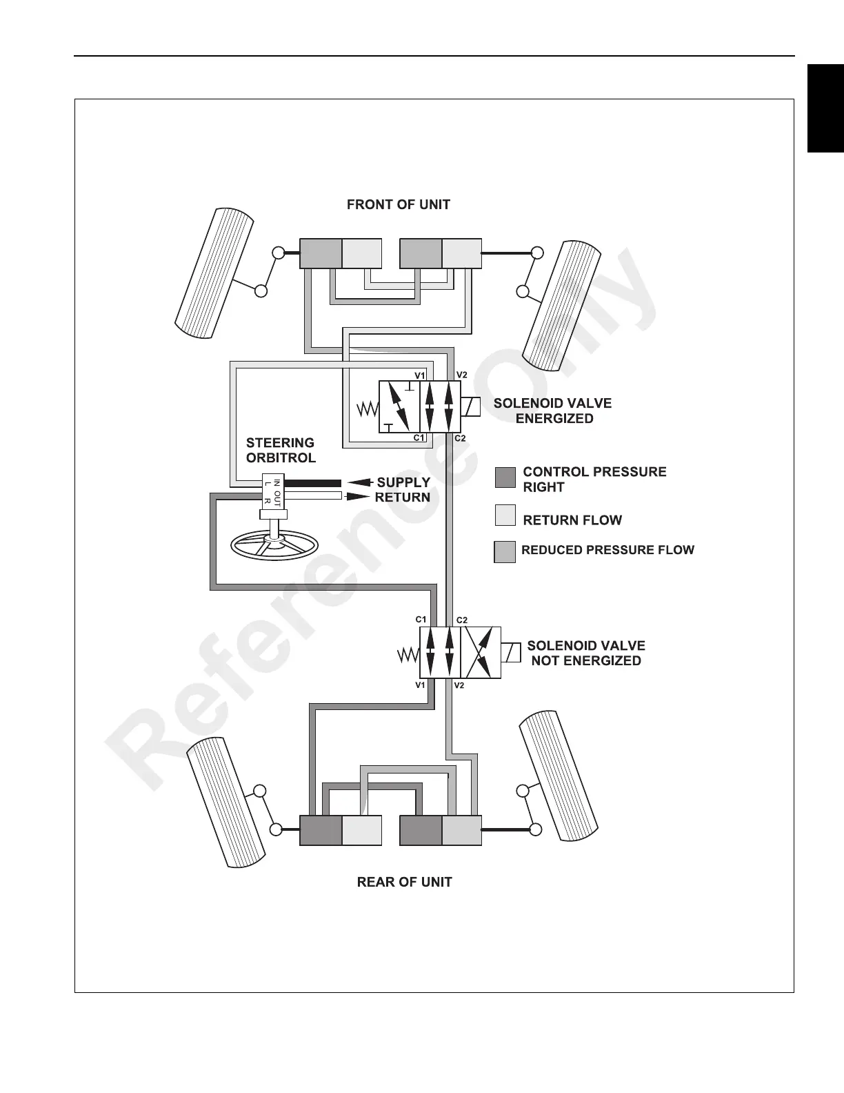
GROVE Published 10-21-2010, Control# 198-04 10-3
5540F/YB5515 SERVICE MANUAL STEERING SYSTEM
10
FIGURE 10-2
a0324
Right Turn in 4 Wheel Steer Mode
Reference Only

Table of Contents

Other manuals for Manitowoc Grove 5540F

Related product manuals