EasyManua.ls Logo

Mastervolt MPPT Solar ChargeMaster 25

Mastervolt MPPT Solar ChargeMaster 25
20 pages
To Next Page IconTo Next Page
To Next Page IconTo Next Page
To Previous Page IconTo Previous Page
To Previous Page IconTo Previous Page
Loading...
MPPT Solar ChargeMaster 25 User and Installation Manual
19
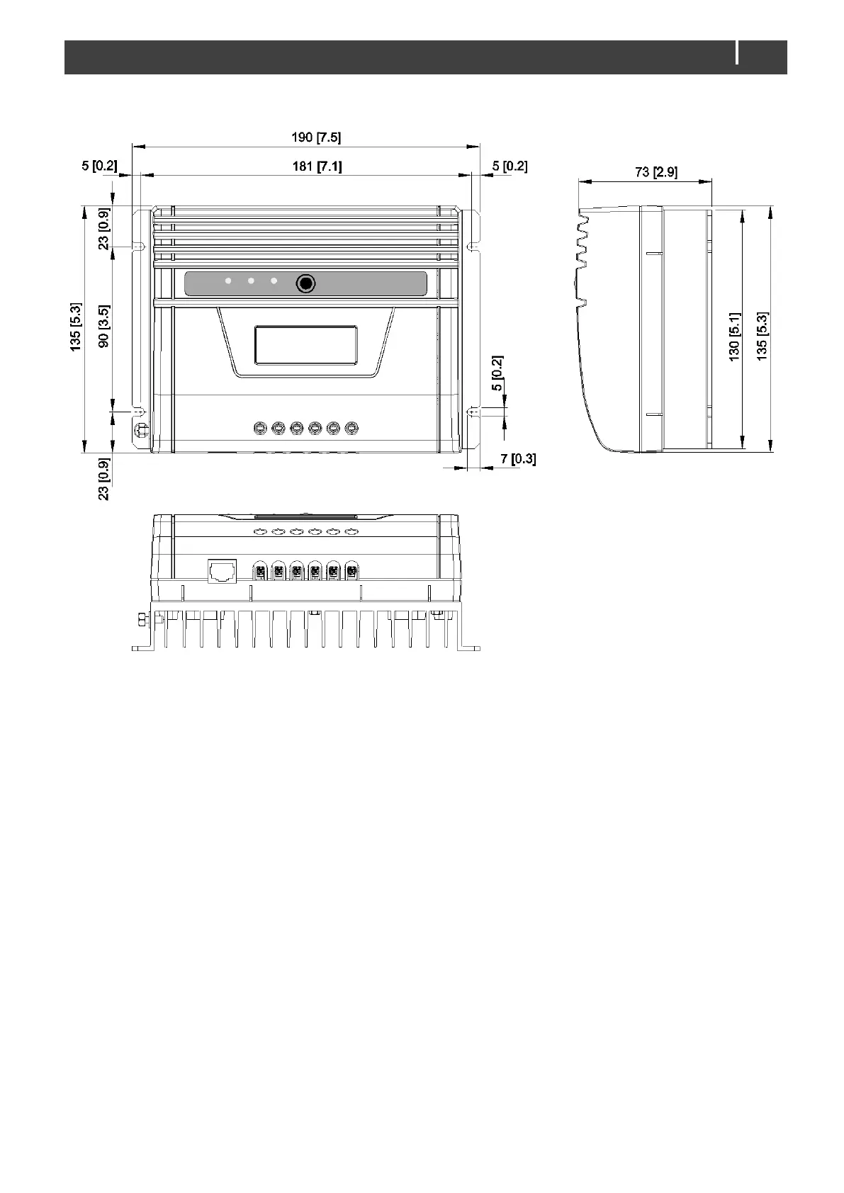
6.2 DIMENSIONS
Figure 16: Dimensions of the Solar ChargeMaster in mm [inches]

Related product manuals