EasyManua.ls Logo

McQuay SEASONCON ALP-080C

McQuay SEASONCON ALP-080C
59 pages
To Next Page IconTo Next Page
To Next Page IconTo Next Page
To Previous Page IconTo Previous Page
To Previous Page IconTo Previous Page
Loading...
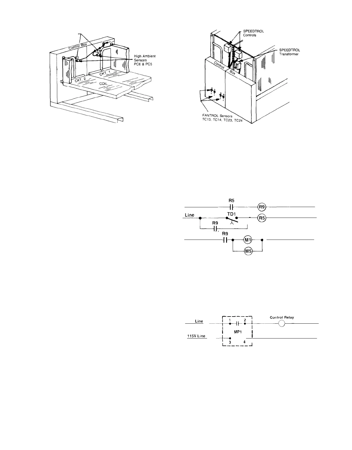
Figure 22.
FANTROL Sensors.
PC22
&
PC12
Figure 23.
COMPRESSOR LOCKOUT
Compressor lockout consists of an adjustable 0 to 6 minute
time delay. It is wired in series with the
R5
relay that energizes
the
R9
relay starting the compressor. Its purpose is to pre-
vent rapid compressor cycling when cooling demands are er-
ratic. The circuit illustrated is for the compressor circuit
#1
control circuit. The control circuit for compressor circuit
#2
is wired the same way. Five minutes is recommended for the
compressor lockout time delay.
When the unit thermostat no longer calls for cooling and
the compressor contactor have opened, the lockout time
delay breaks open the circuit, preventing compressor restart.
The circuit remains open for a period of 5 minutes so that,
if the unit thermostat should call for cooling before the delay
period has expired, the compressor will not restart. After 5
minutes the time delay will close its contacts to complete the
circuit to
R5
energizing
R9
and starting the compressor.
When
R9
is energized another set of contacts will shunt
around
TD1,
allowing
TD1
to reset open for timing out the
next compressor cycle.
To check the control, the compressor must be running in-
itially. Move the
pumpdown
switch PS1 or PS2 to the “manual
pumpdown” position. Immediately after the compressor has
stopped running, move the
pumpdown
switch back to the
“auto pumpdown” position. The compressor should not
restart for 5 minutes.
Line
Neutral
,net~~
-
I@
Neutral
‘---II-----J
Line
-.
7;
m
Neutral
COMPRESSOR MOTOR PROTECTOR
The solid-state compressor motor protector module incor-
porates a two-minute “time off” relay utilizing the bleed down
capacitor principle. Any time the protection system opens or
power to the module is interrupted, the two-minute “time off”
delay is triggered, and the module will not reset for two
minutes. Once the two-minute period is passed, the motor
protector contacts 1 and 2 reset, provided the protection
system is satisfied and power is applied to the module.
NOTE: If the power circuit is broken once the two-minute
period is passed the pilot circuit will reset without delay when
power is reapplied.
l------
24V Ltne
Neutral
I
MPl
I
115v
Line
--
-t-
.
Neutral
12___4_
1
IM 269 / Page 53

Related product manuals