EasyManua.ls Logo

McQuay WDC - Page 38

McQuay WDC
84 pages
Print Icon
To Next Page IconTo Next Page
To Next Page IconTo Next Page
To Previous Page IconTo Previous Page
To Previous Page IconTo Previous Page
Loading...
38 Product Manual PM WSC/WDC
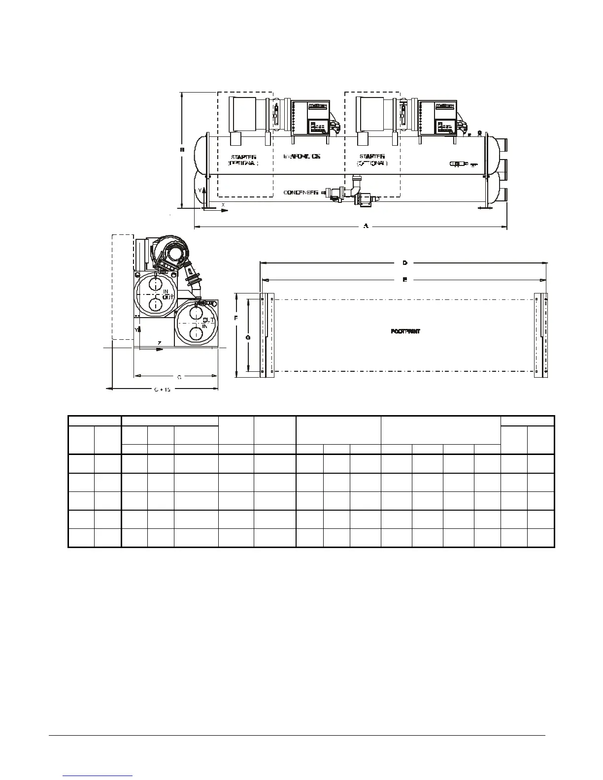
WDC 063, 320 to 600 tons
VESSEL CODE OVERALL LENGTH OVERALL CONNECTIONS
1&3 2 HEAD CONN WIDTH W/O
EVAP COND PASS PASS .BOTH ENDS
OVERALL
HEIGHT
STARTER
CENTER OF GRAVITY FOOTPRINT
A A A B C X Y Z D E F G
EVAP
2
PASS
COND
2
PASS
E2416 C2416
218
(5544)
214
(5426)
218
(5544)
80
(2032)
58
(1470)
91
(2318)
36
(911)
17
(425)
199
(5048)
196
(4972)
58
(1470)
50
(1267)
8 8
E2416 C2616
218
(5544)
214
(5426)
218
(5544)
80
(2032)
58
(1470)
91
(2324)
35
(895)
17¼
(438)
199
(5048)
196
(4972)
58
(1470)
50
(1267)
8 8
E2616 C2416
218
(5544)
214
(5426)
218
(5544)
80
(2032)
58
(1470)
91
(2324)
36
(911)
16
(419)
199
(5048)
196
(4972)
58
(1470)
50
(1267)
8 8
E2616 C2616
218
(5544)
214
(5426)
218
(5544)
80
(2032)
58
(1470)
92
(2340)
35
(899)
17
(435)
199
(5048)
196
(4972)
58
(1470)
50
(1267)
8 8
E3016 C3016
221
(5623)
214
(5445)
221
(5623)
90
(2280)
64
(1619)
95
(2410)
40
(1029)
21
(537)
199
(5048)
196
(4972)
64
(1619)
56
(1416)
10 10
Note: See notes on page 33.

Related product manuals