EasyManua.ls Logo

McQuay WDC - Page 39

McQuay WDC
84 pages
Print Icon
To Next Page IconTo Next Page
To Next Page IconTo Next Page
To Previous Page IconTo Previous Page
To Previous Page IconTo Previous Page
Loading...
Product Manual PM WSC/WDC 39
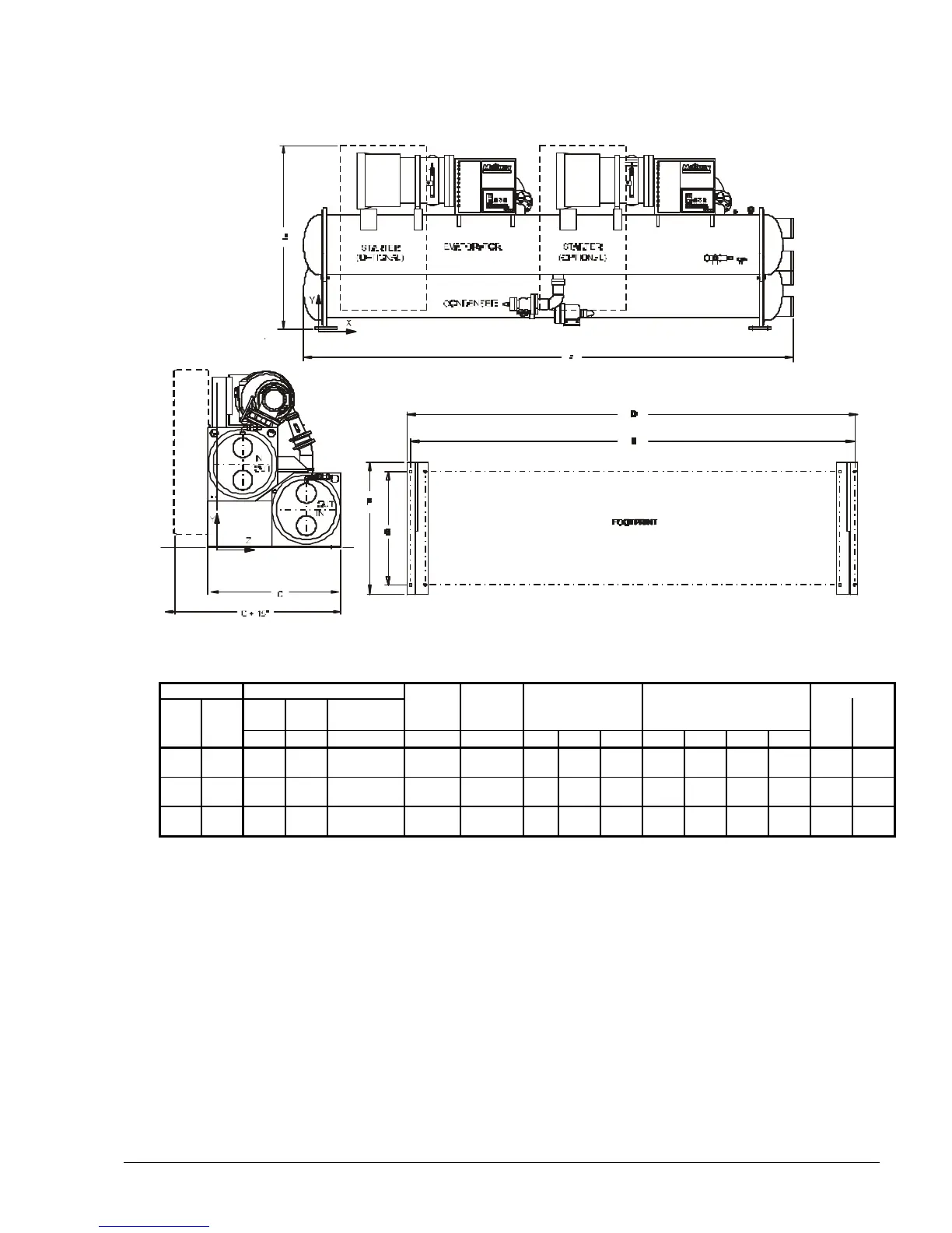
WDC 079, 600 to 700 tons
VESSEL CODE OVERALL LENGTH OVERALL CONNECTIONS
1&3 2 HEAD CONN WIDTH W/O
EVAP COND PASS PASS BOTH ENDS
OVERALL
HEIGHT
STARTER
CENTER OF GRAVITY FOOTPRINT
A A A B C X Y Z D E F G
EVAP
2
PASS
COND
2
PASS
E3016 C3016
221
(5620)
214
(5442)
221
(5620)
94
(2407)
57
(1454)
93
(2369)
44
(1127)
19
(492)
199
(5050)
196
(4974)
57
(1453)
49
(1250)
10 10
E3616 C3016
224
(5696)
218
(5531)
224
(5696)
100
(2530)
71
(1808)
94
(2388)
45
(1149)
32
(803)
199
(5050)
196
(4974)
57
(1453)
49
(1250)
12 10
E3616 C3616
224
(5698)
218
(5531)
224
(5698)
106
(2686)
74
(1886)
94
(2392)
48
(1232)
32
(822)
199
(5050)
196
(4974)
74
(1886)
66
(1682)
12 12
Note: See notes on page 33.

Related product manuals