EasyManua.ls Logo

McQuay WDC - Page 40

McQuay WDC
84 pages
Print Icon
To Next Page IconTo Next Page
To Next Page IconTo Next Page
To Previous Page IconTo Previous Page
To Previous Page IconTo Previous Page
Loading...
40 Product Manual PM WSC/WDC
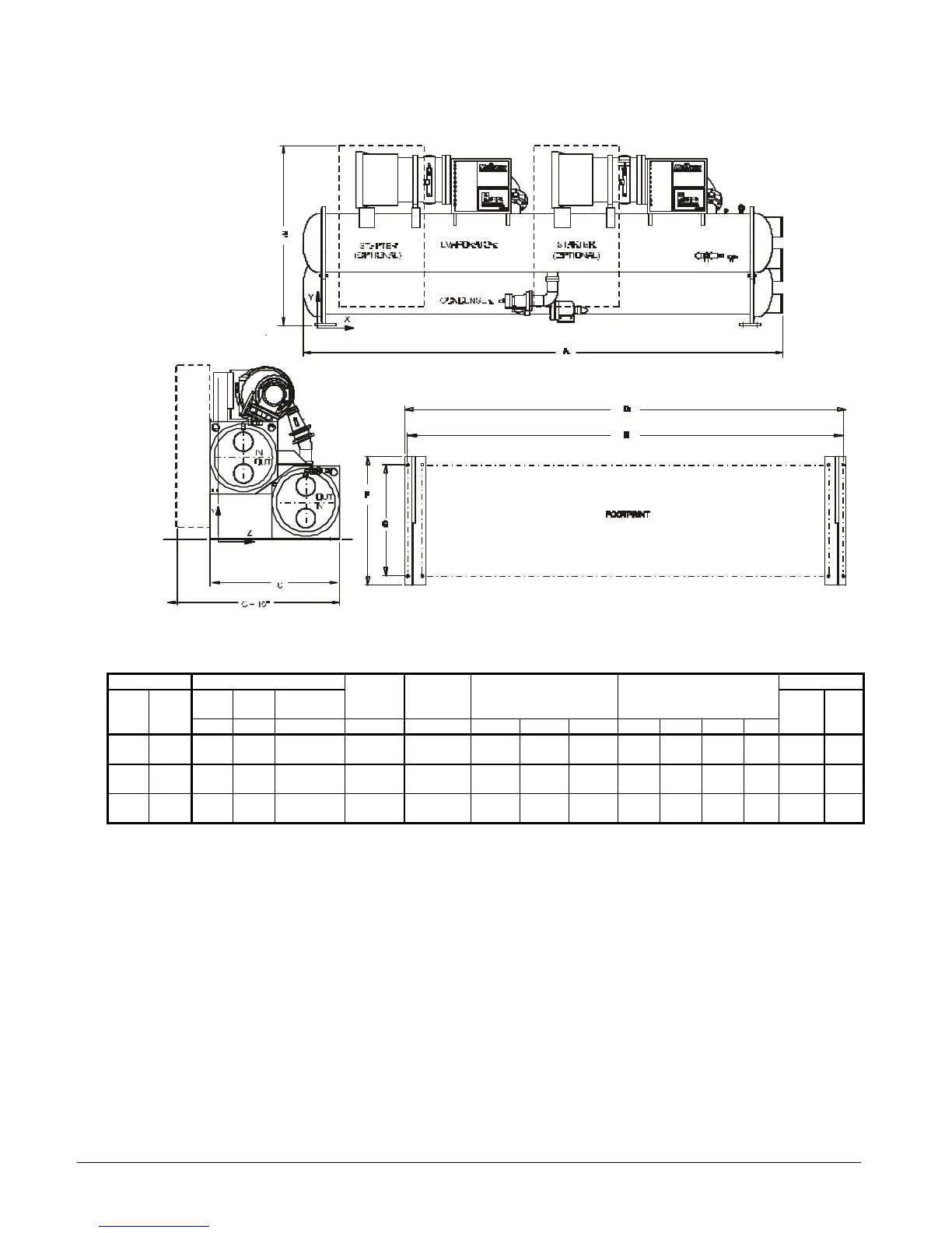
WDC 087, 700 to 1200 tons
VESSEL CODE OVERALL LENGTH OVERALL CONNECTIONS
1&3 2 HEAD CONN WIDTH W/O
EVAP COND PASS PASS .BOTH ENDS
OVERALL
HEIGHT
STARTER
CENTER OF GRAVITY FOOTPRINT
A A A B C X Y Z D E F G
EVAP
2
PASS
COND
2
PASS
E3016 C3016
221
(5620)
214
(5442)
221
(5620)
95
(2410)
57
(1454)
93
(2353)
46
(1172)
18
(467)
199
(5050)
196
(4974)
57
(1453)
49
(1250)
10 10
E3616 C3016
224
(5698)
218
(5531)
224
(5698)
100
(2530)
72
(1808)
93
(224)
47
(1187)
32
(806)
199
(5050)
196
(4974)
57
(1453)
49
(1250)
12 10
E3616 3616
224
(5698)
218
(5531)
224
(5698)
106
(2686)
74
(1886)
94
(2384)
50
(1273)
32
(822)
199
(5050)
196
(4974)
74
(1886)
66
(1682)
12 12
Note: See notes on page 33.

Related product manuals