EasyManua.ls Logo

Mendota D30 - Hearth Pad Requirement

Mendota D30
82 pages
Print Icon
To Next Page IconTo Next Page
To Next Page IconTo Next Page
To Previous Page IconTo Previous Page
To Previous Page IconTo Previous Page
Loading...
85-03-01071 D30 DEEP TIMBER Page 20
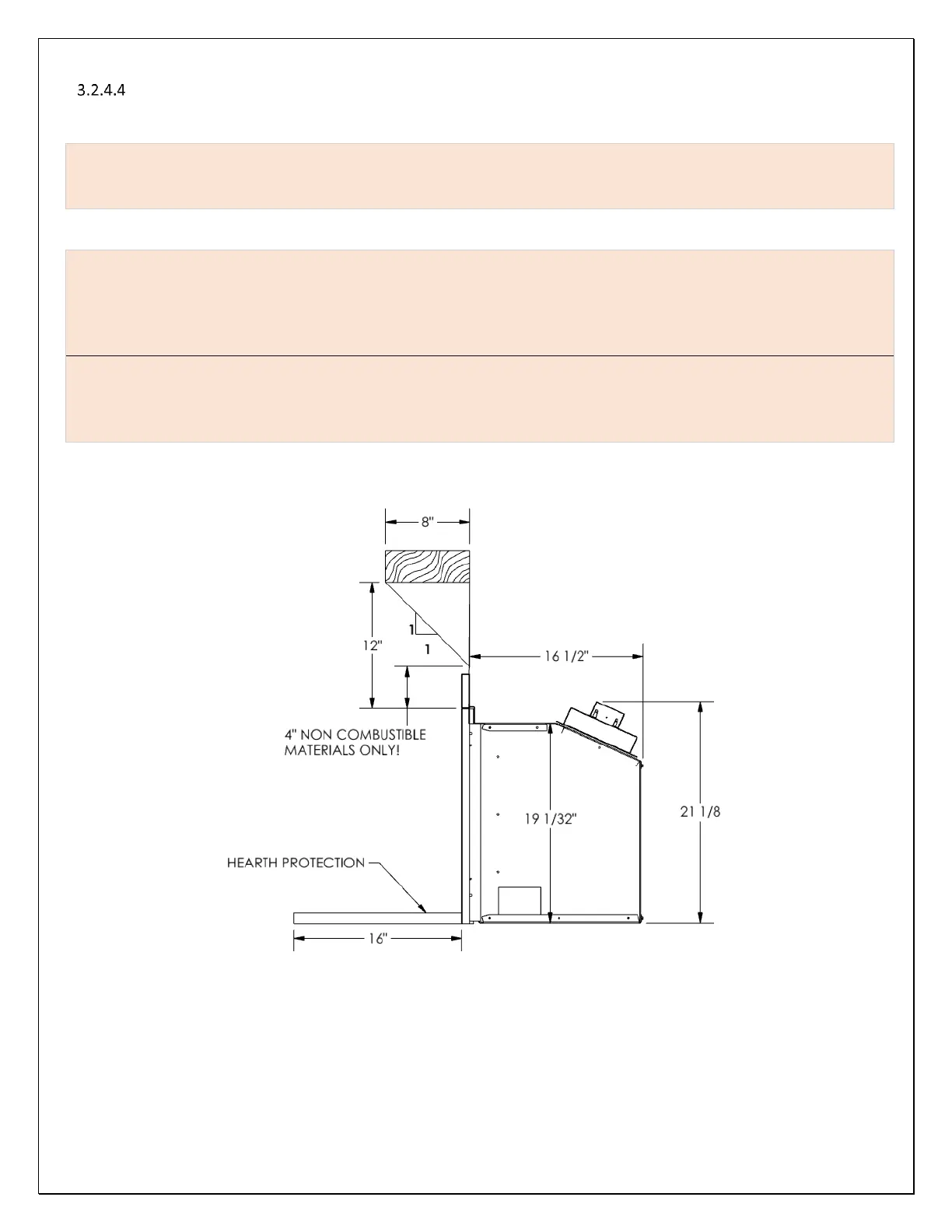
Hearth Pad Requirement
A non-combustible hearth protector with a thermal insulation rating of R-1 is required when installing this fireplace insert
directly on the floor and must extend a minimum of 16" in front of the fireplace insert.
For every 1 the fireplace insert is raised off the floor, the depth of the required hearth protector may be
reduced by 2. If fireplace insert is raised off the floor 6" or more, no hearth protector is required for fire
protection.
Pre-existing non-combustible hearth pads are approved. New hearth pads installed are required to have a thermal insulation
value of R-1.
Caution: The fireplace insert creates localized heat and causes thermal expansion of adjacently installed
flooring and wall materials. Vinyl floors and floating Engineered wood floors may warp if installed in front
of this unit even when this fireplace insert is raised 6 or more due to local heating up of the floor
materials. Never use vinyl or Engineered wood flooring in the hearth pad area in front of this fireplace
insert unless you plan to raise this unit 12 or more above the floor level.
Caution: Modern carpets use polypropylene, nylon or polyester fibers in the upper visible layer. These fibers
when exposed to radiant heat can curl and stiffen. It is not possible to prevent radiation effects to the
carpet fibers even when this unit is raised high. Avoid installing carpets in the hearth pad area in front of
this Fireplace insert unless this fireplace insert is raised at least 12 inches above the carpet level.
Figure 3-14 HEARTH PROTECTON PAD

Related product manuals