EasyManua.ls Logo

Merlin Slide 600 - Wiring; 15 Wiring Diagram

Merlin Slide 600
44 pages
Print Icon
To Next Page IconTo Next Page
To Next Page IconTo Next Page
To Previous Page IconTo Previous Page
To Previous Page IconTo Previous Page
Loading...
16
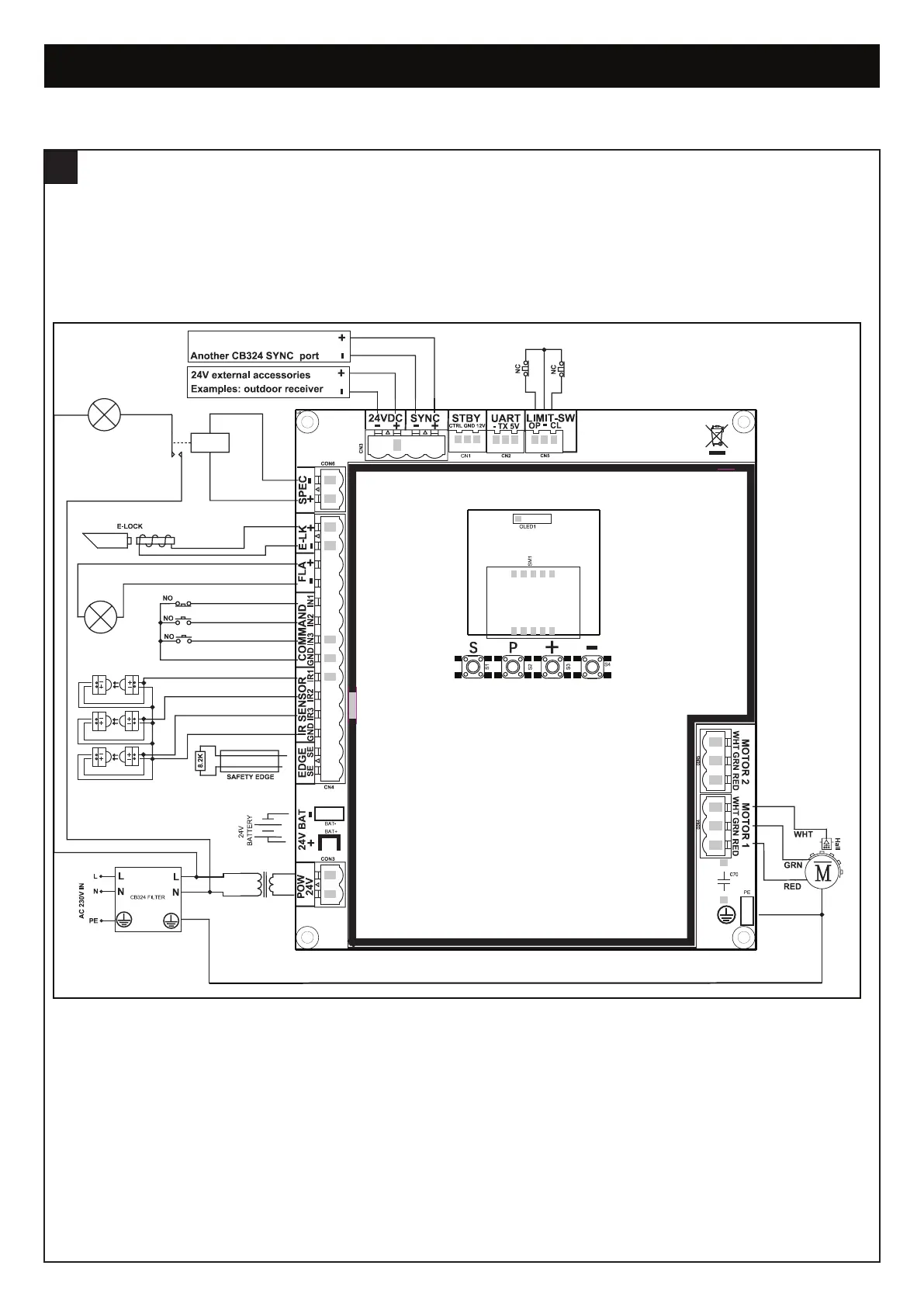
WIRING
WIRING DIAGRAM
15
12
10
13
5 5
5
5
9
10
12
10
0
0
0
0
4321
1
2
3
3 12
1
2
12
13
14
4
11
10
9
8
7
6
5
1
3
2
34 2 1
3
2
1
2 13
2 13
2
1
2
1
1
2
1
2
2
1
2
1
1
2
1
2
5
432
1
678910
2
1
11
1
2
11
1
1
Dual driver primary secondary SYNC
Dual driver primary secondary SYNC
IN1
IN1
IN2
IN2
IN3
IN3

Other manuals for Merlin Slide 600

Related product manuals