EasyManua.ls Logo

Midea LSBLG365/MCFN

Midea LSBLG365/MCFN
97 pages
To Next Page IconTo Next Page
To Next Page IconTo Next Page
To Previous Page IconTo Previous Page
To Previous Page IconTo Previous Page
Loading...
Flooded type water cooled screw chiller (PCB Control) MCAC-CTSM-2012-11
87
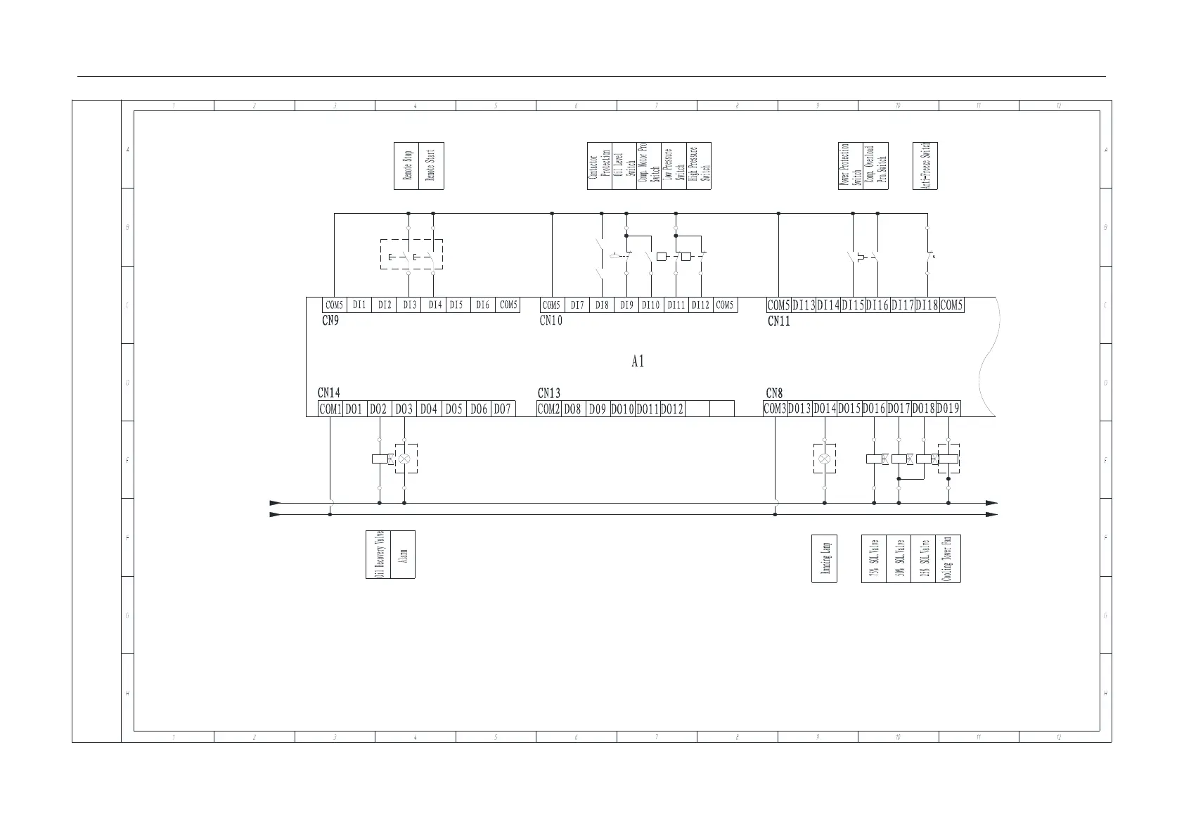
Appendix 3: Electrical Wiring Diagram LSBLG365-750/MCFN
X:31 X:33 X:35 X:5X:4
X:32 X:34 X:6X:3
309 311 313 315307
1YV3 1YV2
1YV1
SB1
SB2
X:13
X:12 X:15
206
208
1SL
X:41
214
1SF
X:43
216
P P
1SP2 1SP1
X:45
X:44 X:46
218 220
KR
222
FR
224
ST1
X:47
X:48
226
X:1
X:2
303
X:27
X:28
301
1SV5
X:42
202
202
202
L15
N
3/F2
3/E2
1/E12
1/F12
X:14
KM1
KM2
216
218
Note: The dotted area showns the field wiring

Related product manuals